Sustainable Fire Station Design: Windermere Fire Station No. 31 by gh3* + S2
Windermere Fire Station No. 31 in Edmonton exemplifies sustainable design and functionality in modern fire stations.
Windermere Fire Station No. 31, designed by gh3* + S2, is a cutting-edge fire station located in Edmonton, Canada. Completed in 2023, this 1532 m² facility showcases a blend of practical functionality and sustainable architecture, setting new standards for civic buildings.


The Design Challenge
Creating a fire station that is both expressive and sustainable was a key challenge for the architects. The City of Edmonton required a design that could meet strict environmental performance criteria, including generating 100% of its energy needs on-site and achieving 40% better energy efficiency and greenhouse gas emissions compared to the baseline using NECB 2011 standards.


Sustainable Features
Renewable Energy
The fire station's gently curving, south-facing roof is equipped with an extensive array of photovoltaic panels, underscoring its commitment to sustainability. These panels generate enough renewable energy to meet the building's total energy needs.



Geothermal Heating and Cooling
A geothermal heating and cooling system is incorporated to enhance energy efficiency further. This system, along with the building's well-insulated structure and high-performance windows and doors, significantly reduces energy consumption.



Environmental Performance
Orientation and Lighting
The building’s southern orientation maximizes natural light, reducing the need for artificial lighting and lowering energy demand. The apparatus bay, painted white, increases interior daylight levels, promoting a healthy working environment.



Bi-Folding Doors
To minimize heat loss, the facility uses bi-folding and quick-closing apparatus bay doors. These innovative doors help maintain a stable indoor temperature, enhancing overall energy efficiency.



Interior Design and Functionality
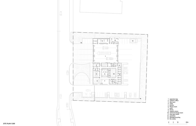
The unified mass of the fire station houses two main programmatic elements: the apparatus bay for trucks and equipment, and domestic and sleeping spaces for firefighters. The domestic area features a corridor circuit design, with change rooms and a fitness center in the middle, and sleeping areas, a kitchen, lounge, and offices around the perimeter.



Landscape Design
The landscape design integrates a bioswale stormwater management system that blends seamlessly with the site's functional demands. This system manages stormwater efficiently while complementing the aesthetic appeal of the staff and visitor parking areas, fire truck entry and exit aprons, and other landscaped spaces.


Windermere Fire Station No. 31 exemplifies how modern fire stations can combine practical functionality with sustainable design. By meeting stringent environmental performance criteria and incorporating advanced renewable energy systems, gh3* + S2 have created a fire station that not only serves its community but also stands as a model for sustainable civic architecture.


All photographs are work of Raymond Chow
Popular Articles
Popular articles from the community
Alton Cliff House: A Harmonious Retreat by f2a Architecture in Lake Country, Canada
Alton Cliff House blends corten steel, prefabrication, and sustainable design, creating a luxurious, energy-efficient retreat perched on Canadian cliffs.
Marvila Apartment Renovation in Lisbon: A Bright Minimalist Attic Transformation by KEMA Studio
Bright attic transformed into minimalist Lisbon apartment with skylights, sustainable materials, open plan layout, and industrial-inspired interior design elements.
Free Architecture Competitions You Can Enter Right Now
No entry fees, real prizes. Here are the best free architecture competitions open for submissions in 2026.
TGK Nirasaki Plant: A Smart Factory Blending Technology, Landscape, and Wellness
Smart factory in Japan blending IoT manufacturing, scenic trail design, natural ventilation, and landscape integration to enhance user experience and sustainability.
Similar Reads
You might also enjoy these articles
Filtering Space: A Gradual Spatial Experience
From urban intensity to spatial calm.
The Ken Roberts Memorial Delineation Competition (Krob)
As the most senior architectural drawing competition currently in operation anywhere in the world, it draws hundreds of entries each year, awarding the very best submissions in a series of medium-based categories.
Waterfront Redevelopment and Urban Revitalization in Mumbai: Forging a New Dawn for Darukhana
A transformative waterfront redevelopment project reimagining Darukhana’s shipbreaking heritage into an inclusive urban future.
OUT-OF-MAP: A Call for Postcards on Feminist Narratives of Public Space
Rhizoma Design and Research Lab invites artists, designers, architects, researchers, and students to reflect on how feminist perspectives can reshape public space. Selected works will be exhibited in Barcelona, October 2026. Submissions open until 15 April 2026.
Explore Architecture Competitions
Discover active competitions in this discipline
The International Standard for Design Portfolios
The Global Benchmark for Architecture Dissertation Awards
The Global Benchmark for Graduation Excellence
Challenge to reimagine the Iron Throne
Comments (0)
Please login or sign up to add comments
No comments yet. Be the first to comment!