Sustainable Home Renovation: Shruthi and Sunith's House by Biome Environmental Solutions
An eco-conscious renovation of Shruthi and Sunith's House integrates sustainability, functionality, and aesthetic innovation in Hyderabad, India.
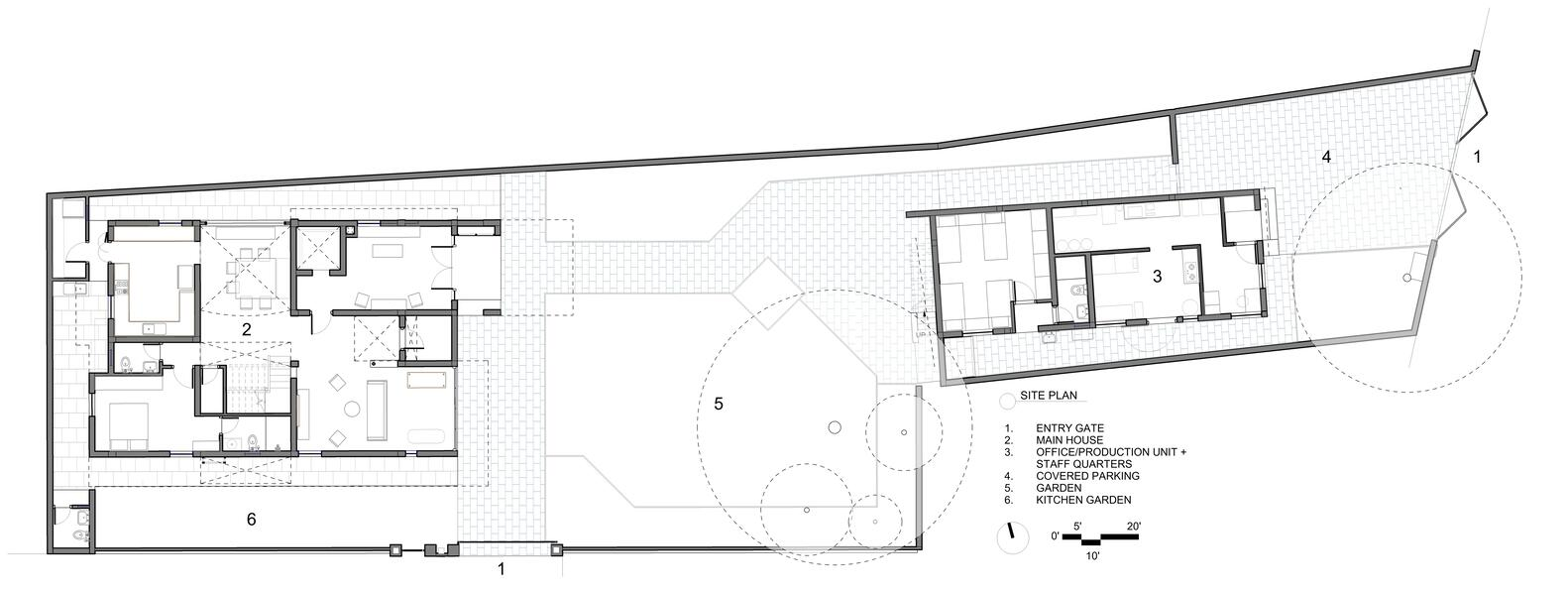
Located in the heart of Hyderabad, India, Shruthi and Sunith's House is an exemplar of sustainable home renovation and architectural innovation. Designed by Biome Environmental Solutions, under the leadership of Sharath Nayak and Siddharath Achaya, this 4550-square-foot residence beautifully integrates contemporary needs with ecological sensibility. By renovating and extending an existing structure rather than opting for complete demolition, the project showcases a harmonious blend of functionality, aesthetics, and environmental consciousness.



Balancing Heritage and Contemporary Needs
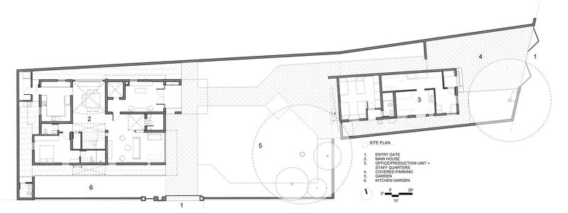
The property originally consisted of two structures: a two-story house and a small clinic, separated by a lush garden shaded by mango trees. The architects chose to retain and remodel these existing structures, reflecting the homeowners’ desire for a modern living space while minimizing waste generation. The decision to preserve the original framework highlights the project's commitment to sustainability, blending economic and ecological benefits.




Functional Enhancements and Spatial Redesign
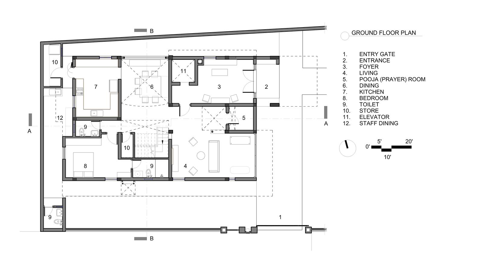
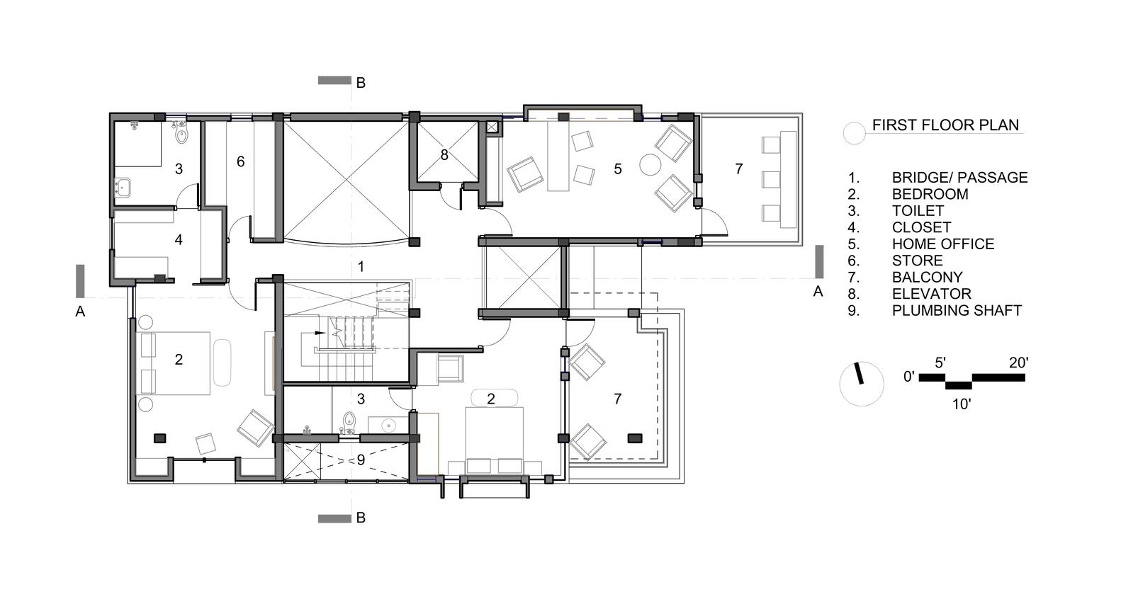
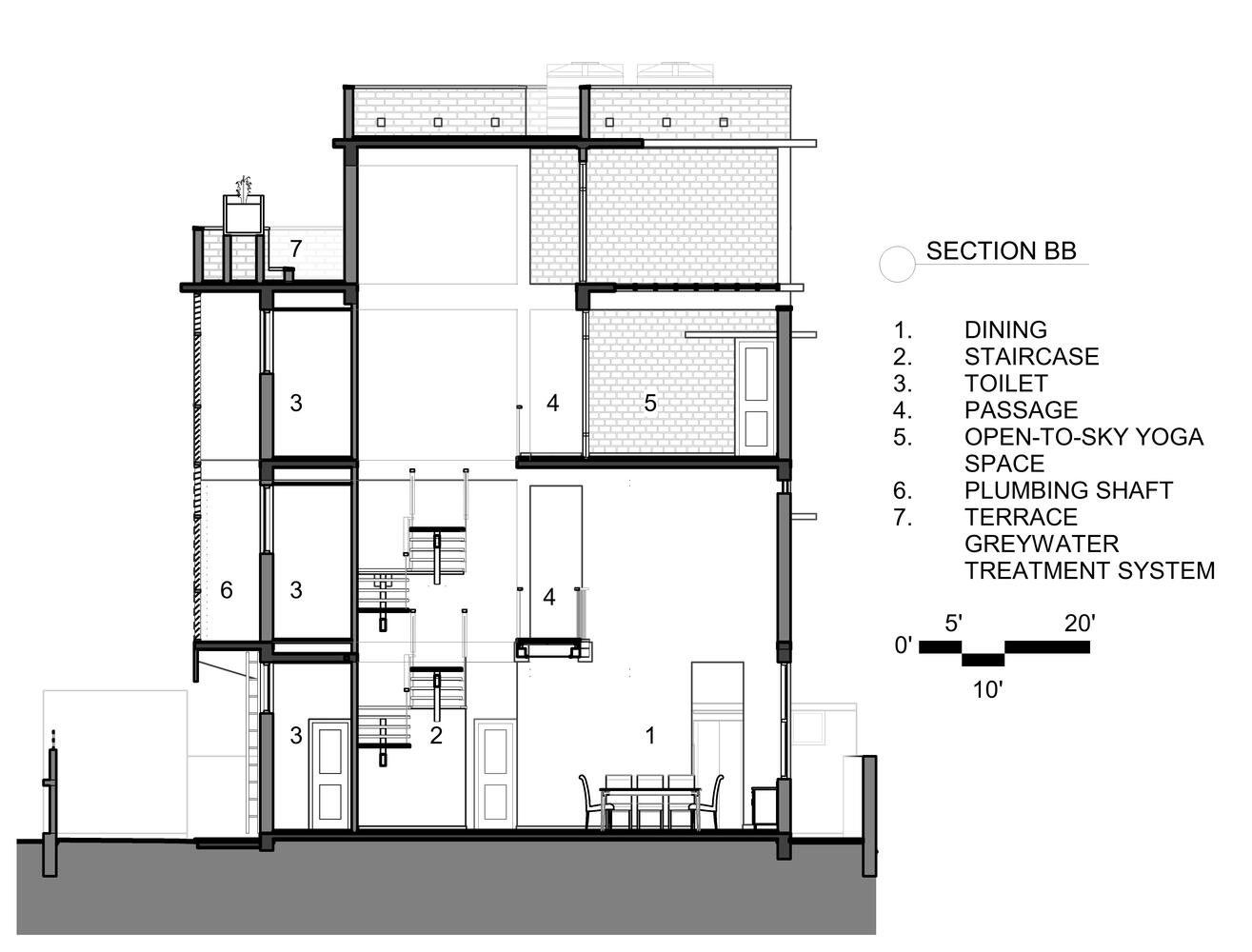
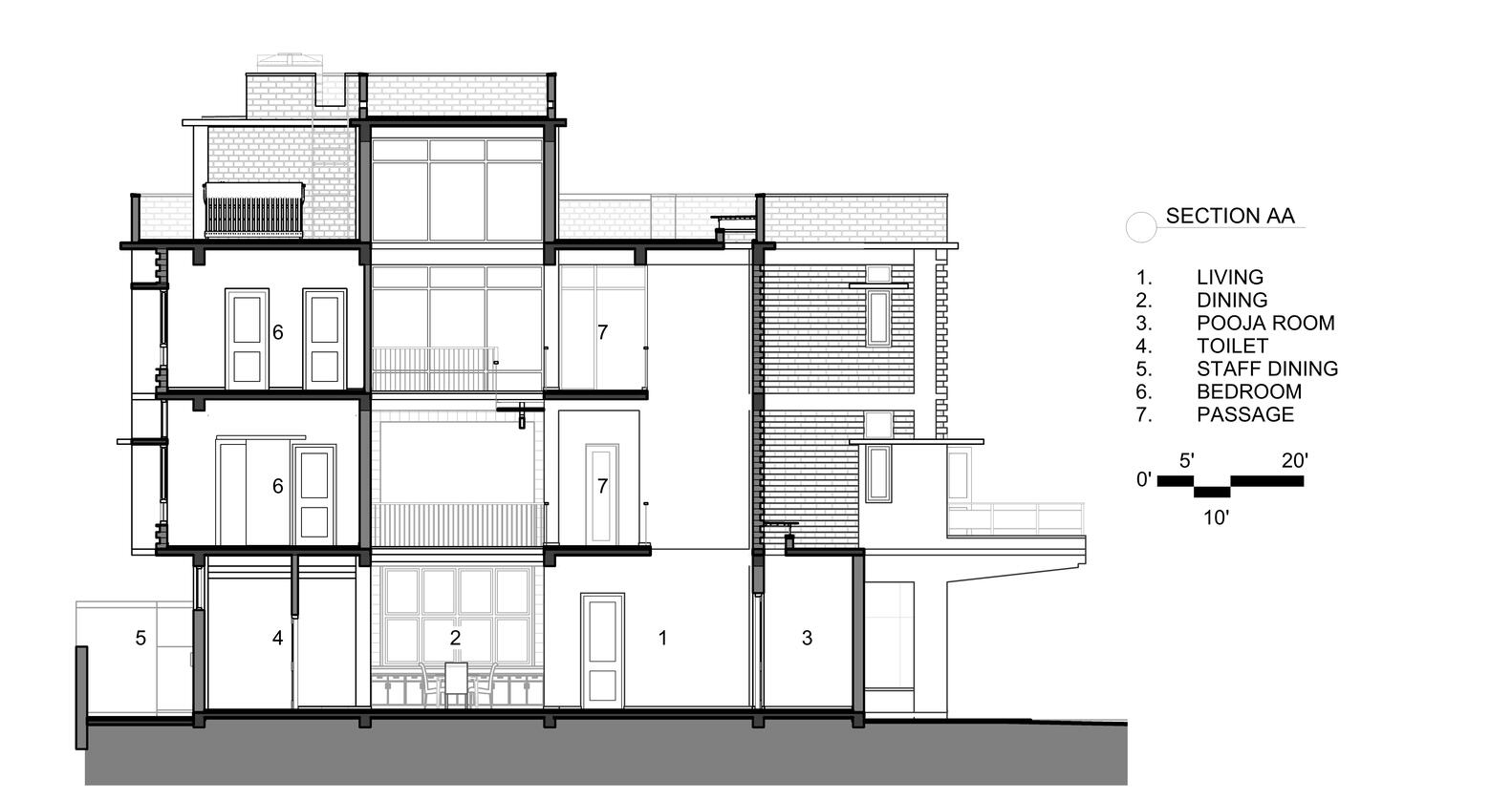
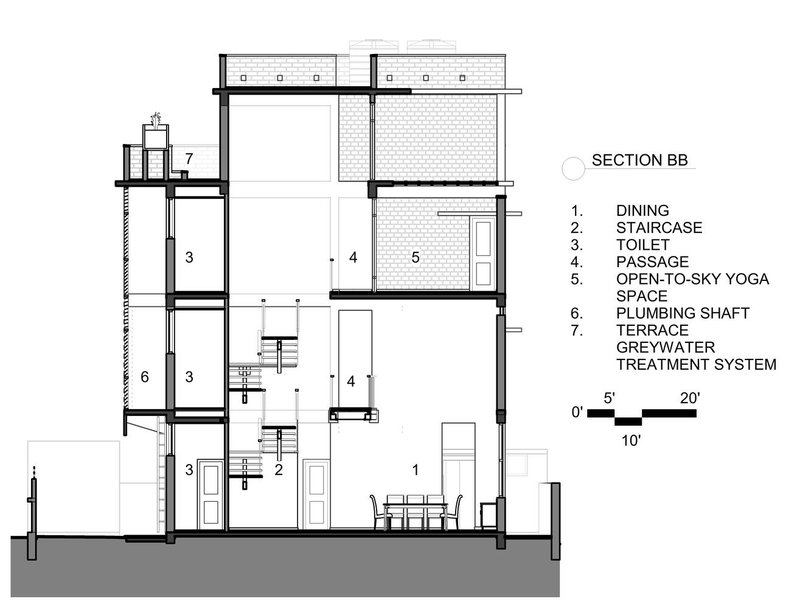
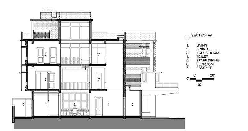
While maintaining the basic layout of the original structure, the architects made thoughtful changes to optimize functionality. The ground and first floors underwent careful modifications, including trimming excess circulation spaces and enlarging openings to create additional rooms. A small hall on the first floor was removed to introduce a double-height space for the dining area below, enhancing the spatial experience.



A semi-circular concrete staircase was replaced with a compact, elegant metal and wood staircase that connects all floors through an open triple-height volume. This redesign also allowed for the addition of toilets and an elevator shaft carved out of the foyer, ensuring accessibility and convenience for all residents.

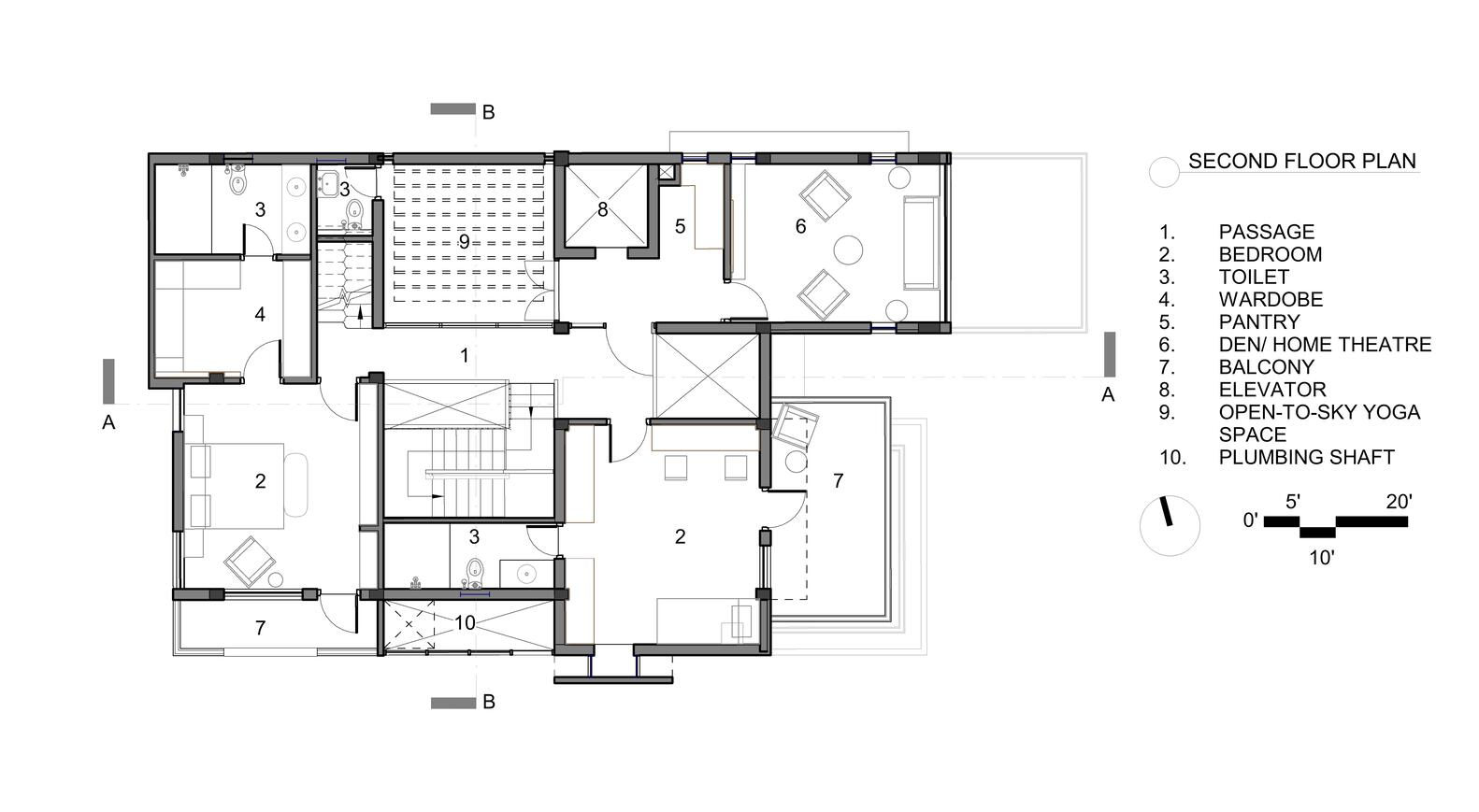
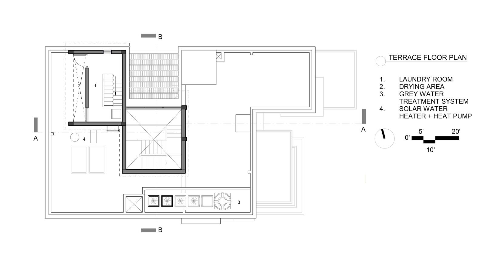
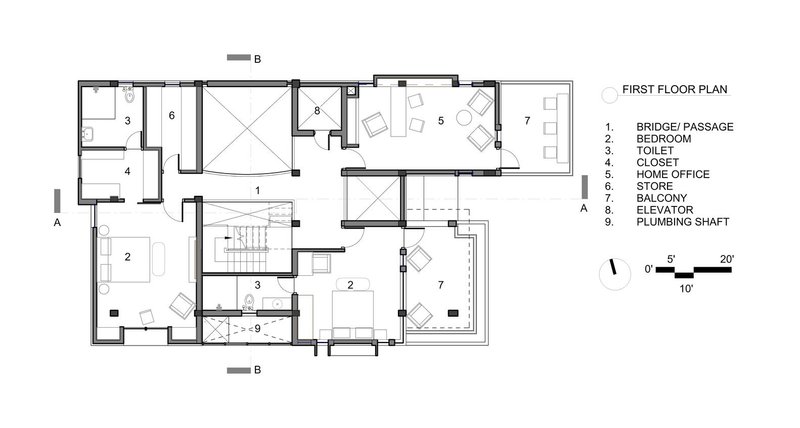
The second floor is a new addition, tailored to meet the family’s contemporary lifestyle. It houses a children’s bedroom, a home theatre with a pantry, and an open-to-sky yoga space. These additions are designed to meet both leisure and wellness needs while maintaining the coherence of the overall design.

Material Innovation and Aesthetic Appeal
The construction integrates eco-friendly materials and innovative techniques to address material shortages during the COVID-19 pandemic. Compressed stabilized earth blocks were used for new walls, creating an alternating striated pattern that is both visually striking and thermally efficient. This pattern helps self-shade the facade, reducing solar heat gain and enhancing energy efficiency.


The contrast between the old and new is accentuated through a ribbon window strip separating white plastered walls from exposed earth block walls. This design element extends into a louvered screen on the south side, providing light and ventilation while concealing plumbing lines and toilet windows.


Sustainability Features
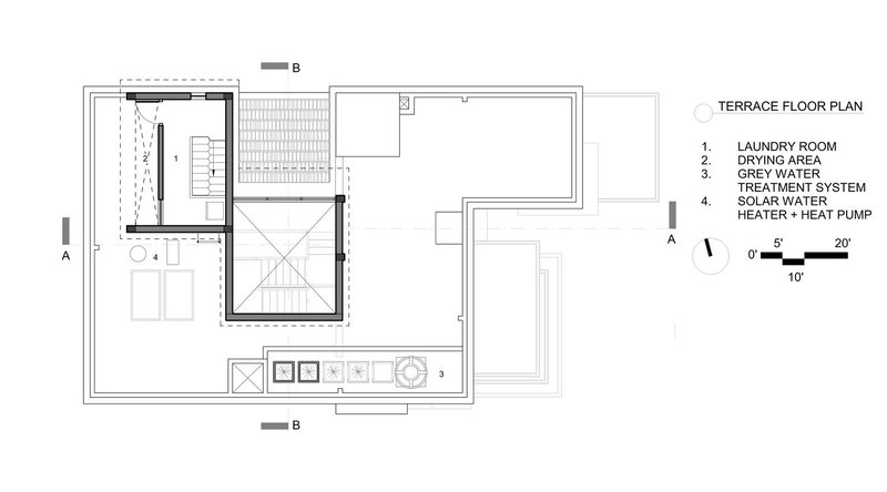
Beyond its architectural and aesthetic achievements, the project emphasizes sustainability through water conservation and waste management. Rainwater harvesting systems collect water from terraces, while greywater from bathrooms and wash areas is recycled using a reed bed system for reuse in gardening and flushing. These measures ensure that the renovated property remains water-secure, addressing a critical urban challenge.


The clinic building, transformed into a production space and staff quarters, retains its original marble flooring while adopting drywall partitions to minimize material use. A weatherproof clay tile roof covers the parking area, further demonstrating the project’s commitment to natural aesthetics and functionality.


Integrating Nature and Modernity
The house opens outward to the garden on its eastern side, where cantilevered balconies and terraces invite natural light and create a seamless connection with the outdoors. Double and triple-height spaces, combined with fluted glass windows and salvaged pergolas, shield the interiors from neighboring buildings while maintaining privacy and natural ventilation.

The integration of open spaces and natural materials fosters a sense of tranquility and well-being, reflecting the homeowners’ aspiration for a home that harmonizes with its surroundings.

A Model for Sustainable Urban Living
Shruthi and Sunith's House exemplifies the potential of sustainable home renovation in urban environments. By preserving the existing structure, the project minimizes waste and respects the ecological footprint of construction. Its innovative use of materials, focus on natural light and ventilation, and incorporation of water management systems serve as a blueprint for environmentally conscious design.


This house is more than just a renovation; it is a celebration of sustainability, functionality, and aesthetic ingenuity. It offers a vision of urban living that balances contemporary demands with ecological responsibility, setting a benchmark for future architectural endeavors.


All Photographs are works of Suryan // Dang
Popular Articles
Popular articles from the community
Alton Cliff House: A Harmonious Retreat by f2a Architecture in Lake Country, Canada
Alton Cliff House blends corten steel, prefabrication, and sustainable design, creating a luxurious, energy-efficient retreat perched on Canadian cliffs.
Inverted Architecture Installation by Studio Link-Arc: Exploring the Intersection of Architecture and Living Organisms
Inverted Architecture Installation by Studio Link-Arc blends mycelium, sustainability, inverted design, ecological cycles, and urban adaptive architecture in Shenzhen.
Split House: A Compact Urban Home Blending Privacy, Light, and Flexible Living in Japan
Compact Japanese home featuring DOMA space, flexible café potential, passive lighting, privacy zoning, and sustainable urban living design.
Solar Steam: A Climate-Responsive Architecture That Redefines the Monument
A climate-responsive memorial architecture that transforms heat, decay, and time into a living system reflecting humanity’s ecological impact.
Similar Reads
You might also enjoy these articles
The Ken Roberts Memorial Delineation Competition (Krob)
As the most senior architectural drawing competition currently in operation anywhere in the world, it draws hundreds of entries each year, awarding the very best submissions in a series of medium-based categories.
Waterfront Redevelopment and Urban Revitalization in Mumbai: Forging a New Dawn for Darukhana
A transformative waterfront redevelopment project reimagining Darukhana’s shipbreaking heritage into an inclusive urban future.
OUT-OF-MAP: A Call for Postcards on Feminist Narratives of Public Space
Rhizoma Design and Research Lab invites artists, designers, architects, researchers, and students to reflect on how feminist perspectives can reshape public space. Selected works will be exhibited in Barcelona, October 2026. Submissions open until 15 April 2026.
Documentation Work on Buddhist Wooden Temple
Architectural syncretism and cultural hybridity: A comparative study of the Buddhist temples in Chattogram Hill tracks
Explore Architecture Competitions
Discover active competitions in this discipline
The International Standard for Design Portfolios
The Global Benchmark for Architecture Dissertation Awards
The Global Benchmark for Graduation Excellence
Challenge to reimagine the Iron Throne
Comments (0)
Please login or sign up to add comments
No comments yet. Be the first to comment!