Sustainable Kindergarten Design: A Closer Look at Saint-Ouen-Du-Tilleul's Innovative Approach
The article explores the innovative, sustainable kindergarten design in Saint-Ouen-Du-Tilleul, highlighting eco-friendly materials and bioclimatic features.
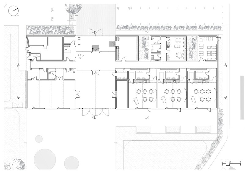
In the heart of Saint-Ouen-du-Tilleul, France, a remarkable example of sustainable kindergarten design stands as a testament to eco-responsible architecture. Designed by ACAU Architects and completed in 2022, this 800 m² educational facility sets a new standard for day care and kindergarten buildings. With a focus on sustainability, the project showcases how modern architecture can harmonize with nature while providing a nurturing environment for young children.





The Philosophy Behind the Design
The kindergarten in Saint-Ouen-Du-Tilleul is strategically located next to the town hall and a multipurpose hall, fully integrating into the city center while maintaining privacy and security for the children. The design principle revolves around creating a living space shielded from external views yet open to nature, promoting a healthy, eco-friendly lifestyle from a young age.





Eco-Responsible Construction Materials
The use of natural materials is at the forefront of the kindergarten's design. A wooden frame, wood wool insulation, natural lime plaster by fermacell, and interior coatings in spruce wood panels emphasize the commitment to sustainability. These materials not only ensure a healthier indoor environment but also contribute to the building's overall eco-friendly footprint.





Bioclimatic Features Enhancing the Learning Environment
The Winter Garden Courtyard
Central to the kindergarten's design is the winter garden courtyard. This polycarbonate-encased space serves multiple functions: a gathering area for children, a natural light source, and a bioclimatic tool. It passively heats the school during winter through the greenhouse effect and ventilates the building in summer, showcasing innovative solutions to common architectural challenges.





Lighting and Nature Integration
The main corridor of the school is designed to maximize light, reducing the need for artificial lighting and creating a warm, inviting atmosphere. Indoor patios further enhance this effect, bringing light and nature into the heart of the building. This approach not only saves energy but also connects children with the natural world.



Sustainable Features and Functional Design
The kindergarten's architecture goes beyond just aesthetics; it incorporates functional features designed with children's needs in mind. Integrated wooden furniture provides a calm and warm learning environment while serving practical purposes such as seating, storage, and organization. Double-pitched roofs reflect the suburban houses in the surrounding area, helping the kindergarten blend with its environment while providing comfortable indoor spaces.






A Model for Future Kindergartens
The kindergarten in Saint-Ouen-Du-Tilleul by ACAU Architects represents a paradigm shift in educational architecture. By prioritizing sustainability, bioclimatic design, and natural materials, this project provides a healthier, more inspiring environment for children to grow and learn. It stands as a model for future kindergartens worldwide, proving that sustainable kindergarten design is not only feasible but beneficial for our children and the planet.






All photographs are work of Nicolas Da Silva Lucas
Popular Articles
Popular articles from the community
Rede Arquitetos Builds an Open-Air School in Fortaleza That Doubles as a Neighborhood Living Room
Educar II SESC-CE folds sports, dance, and community gathering into a courtyard campus wrapped in mesh and tropical color.
TGK Nirasaki Plant: A Smart Factory Blending Technology, Landscape, and Wellness
Smart factory in Japan blending IoT manufacturing, scenic trail design, natural ventilation, and landscape integration to enhance user experience and sustainability.
Filtering Space: A Gradual Spatial Experience
From urban intensity to spatial calm.
Marvila Apartment Renovation in Lisbon: A Bright Minimalist Attic Transformation by KEMA Studio
Bright attic transformed into minimalist Lisbon apartment with skylights, sustainable materials, open plan layout, and industrial-inspired interior design elements.
Similar Reads
You might also enjoy these articles
Filtering Space: A Gradual Spatial Experience
From urban intensity to spatial calm.
The Ken Roberts Memorial Delineation Competition (Krob)
As the most senior architectural drawing competition currently in operation anywhere in the world, it draws hundreds of entries each year, awarding the very best submissions in a series of medium-based categories.
Waterfront Redevelopment and Urban Revitalization in Mumbai: Forging a New Dawn for Darukhana
A transformative waterfront redevelopment project reimagining Darukhana’s shipbreaking heritage into an inclusive urban future.
OUT-OF-MAP: A Call for Postcards on Feminist Narratives of Public Space
Rhizoma Design and Research Lab invites artists, designers, architects, researchers, and students to reflect on how feminist perspectives can reshape public space. Selected works will be exhibited in Barcelona, October 2026. Submissions open until 15 April 2026.
Explore Architecture Competitions
Discover active competitions in this discipline
The International Standard for Design Portfolios
The Global Benchmark for Architecture Dissertation Awards
The Global Benchmark for Graduation Excellence
Challenge to reimagine the Iron Throne
Comments (0)
Please login or sign up to add comments
No comments yet. Be the first to comment!