Sustainable Material Architecture: Brown House by BLDUS
Brown House in Washington is an innovative example of sustainable material architecture, promoting healthy living and energy efficiency.
Redefining Urban Living with Sustainable Materials
Brown House, designed by BLDUS and located in Capitol Hill, Washington, is a remarkable example of sustainable material architecture. Completed in 2023, this single-family home features a healthy material palette designed to promote both environmental responsibility and healthy living. The project stands out as a model of how contemporary architecture can combine innovative materials with energy-efficient practices, offering a solution to urban housing challenges while contributing to the broader sustainability movement.



A Healthy Material Palette
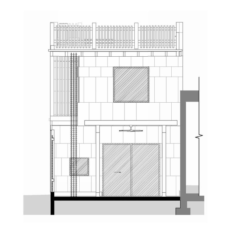
The design of Brown House utilizes an array of natural, durable materials including black locust wood, cork cladding, hemp insulation, and bamboo structural walls. These materials were carefully selected not only for their sustainability but also for their ability to create a healthy environment for the inhabitants. Black locust wood, known for its strength and durability, forms protective slats on the exterior, contributing to privacy and safety. Inside, bamboo panels are stained with PolyWhey, a by-product of the cheese industry, and cork is used for both exterior cladding and interior ceiling finishes, providing an earthy, natural feel throughout the home.




The use of these materials does more than just support the aesthetics of the design—it enhances the overall healthiness of the living space. Materials like cork and hemp create an atmosphere that is grounded in nature, and this connection to natural resources helps people form a deeper connection to their surroundings, improving their overall well-being.




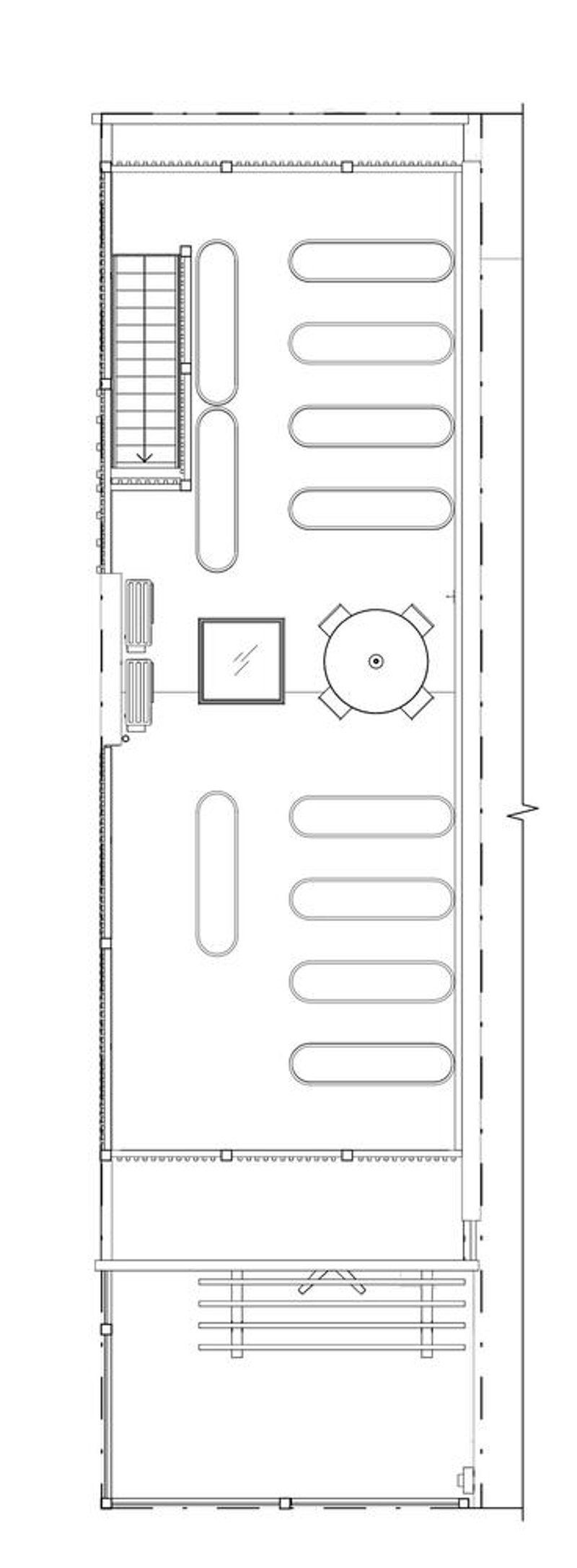
Efficient and Practical Design for Modern Living
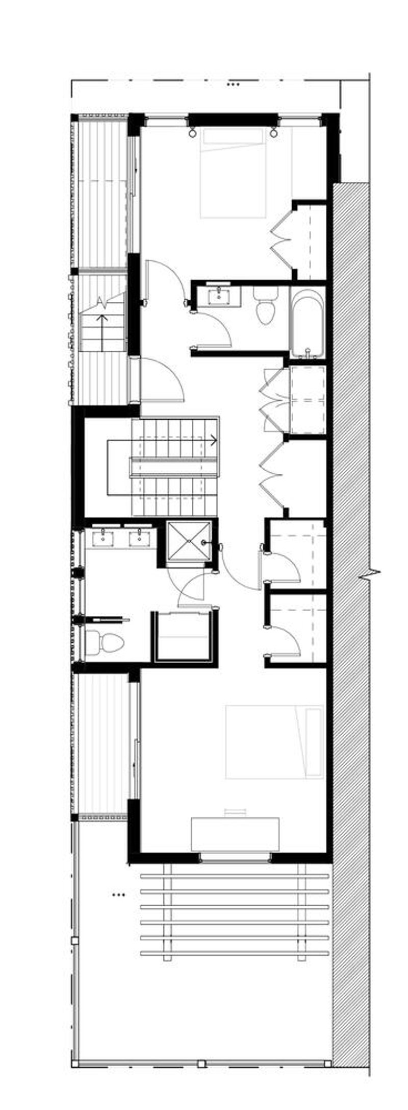
One of the defining features of Brown House is its practical and efficient design. The layout of the house promotes long-term living with the flexibility to accommodate the needs of its inhabitants. A bedroom-bathroom suite on the ground floor allows for the possibility of living entirely on one level if needed. Meanwhile, a central switchback stair leads to the second floor and the rooftop garden, which is designed to provide the house's occupants with the ability to grow much of their food during the year.




This focus on efficiency extends to the material choices as well. The hybrid bamboo-wood structural panels used in the house are not only sustainable but also cost-effective, providing a low-carbon footprint without sacrificing performance. Additionally, cellulose, cork, and hemp are used as insulation, helping the house stay warm in winter and cool in summer while minimizing the need for energy consumption.





Sustainable Systems and Urban Impact
Brown House goes beyond material selection and includes thoughtful systems for sustainable living. The rooftop garden, equipped with planter beds, allows the occupants to cultivate a significant portion of their diet using rainfall for irrigation. Rainwater from the roof is collected in cisterns and used to water the plants on the north facade and in the south garden, promoting a fully integrated and sustainable environment.




This home also plays an important role in addressing urban density challenges. In Washington, D.C., recent legislation encourages the development of alley houses as a solution to the housing shortage. Brown House is an example of how such developments can provide innovative, sustainable housing options in dense urban areas, while promoting environmental consciousness.






A Step Toward Sustainable Urban Living
With its innovative use of sustainable materials, energy-efficient design, and commitment to promoting healthy living, Brown House serves as a model for the future of architecture in urban environments. This home not only offers an aesthetically pleasing and comfortable living space but also contributes to a broader conversation about sustainability in design. By integrating nature and technology, Brown House proves that responsible architecture can create spaces that are both beautiful and functional, while reducing our environmental impact.










All Photographs are works of Ty Cole
Popular Articles
Popular articles from the community
Magic Box Office Barcelona Innovative Sustainable Workplace Design
Innovative sustainable office design featuring triangular form, ceramic façade, flexible interiors, natural light optimization, and creative workspace for modern work culture.
20 Most Popular Commercial Architecture Projects of 2025
From sustainable market concepts to heritage factories, the commercial buildings and proposals that drew the most attention on uni.xyz this year.
Filtering Space: A Gradual Spatial Experience
From urban intensity to spatial calm.
Similar Reads
You might also enjoy these articles
Filtering Space: A Gradual Spatial Experience
From urban intensity to spatial calm.
The Ken Roberts Memorial Delineation Competition (Krob)
As the most senior architectural drawing competition currently in operation anywhere in the world, it draws hundreds of entries each year, awarding the very best submissions in a series of medium-based categories.
Waterfront Redevelopment and Urban Revitalization in Mumbai: Forging a New Dawn for Darukhana
A transformative waterfront redevelopment project reimagining Darukhana’s shipbreaking heritage into an inclusive urban future.
OUT-OF-MAP: A Call for Postcards on Feminist Narratives of Public Space
Rhizoma Design and Research Lab invites artists, designers, architects, researchers, and students to reflect on how feminist perspectives can reshape public space. Selected works will be exhibited in Barcelona, October 2026. Submissions open until 15 April 2026.
Explore Architecture Competitions
Discover active competitions in this discipline
The International Standard for Design Portfolios
The Global Benchmark for Architecture Dissertation Awards
The Global Benchmark for Graduation Excellence
Challenge to reimagine the Iron Throne
Comments (0)
Please login or sign up to add comments
No comments yet. Be the first to comment!