Sustainable Multi-Generational Housing: A New Era at Generatorn Housing by Spridd Architects, Secretary Architecture, and Septembre Architecture
Generatorn Housing in Linköping exemplifies sustainable multi-generational living, integrating eco-friendly design with community-focused spaces for students and seniors.
In the heart of Linköping, Sweden, the Generatorn Housing project emerges as a pioneering example of sustainable multi-generational housing, blending modern design with eco-friendly technologies. This unique collaboration between three architectural firms aims to redefine urban living for students and seniors alike.



Understanding Sustainable Multi-Generational Housing
What is Multi-Generational Housing?
Multi-generational housing is designed to support the needs of multiple age groups within the same community. This approach facilitates social interaction and support between generations, enhancing the quality of life for all residents.



Benefits of Sustainability in Housing
Sustainable housing minimizes environmental impact through energy efficiency, use of sustainable materials, and innovative building techniques. It promotes a healthier living environment and reduces operational costs.



Design and Architecture of Generatorn Housing
Collaborative Design Process
The design of Generatorn Housing was born from a collaborative process involving Spridd Architects, Secretary Architecture, and Septembre Architecture. This partnership fostered a creative synergy that led to a design which respects individual authorship while promoting a unified architectural vision.



Architectural Features
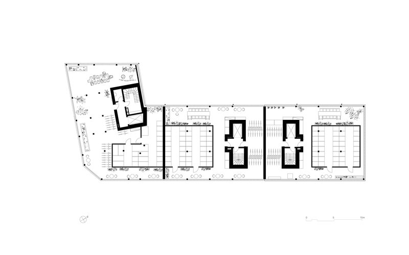
Innovative Layout
The housing complex features a mix of student and senior apartments, encouraging a vibrant, intergenerational community. Communal spaces such as the Felleshuset provide areas for interaction and social activities, strengthening community bonds.


Sustainability Features
Eco-Friendly Building Materials
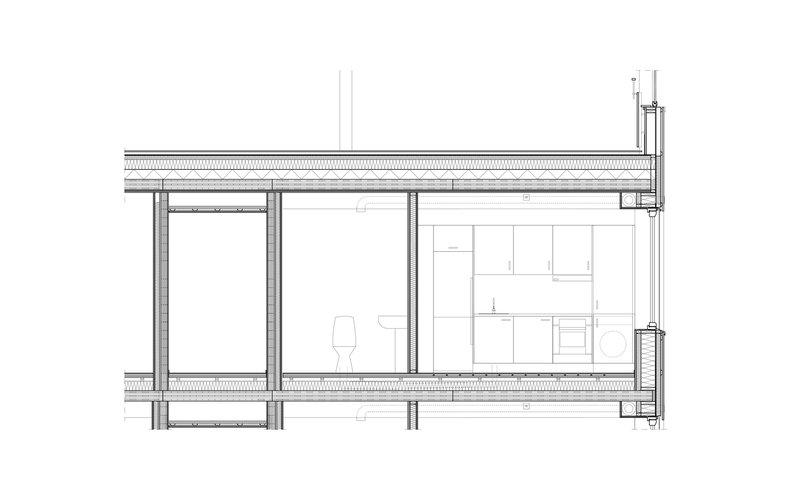
The structure’s framework consists of Cross-Laminated Timber (CLT), chosen for its low carbon footprint compared to traditional building materials like concrete. This choice underscores the project's commitment to environmental sustainability.



Energy Efficiency
Generatorn Housing is designed as a plus-energy building, generating more energy than it consumes. This is achieved through high-performance solar panels and individual ventilation controls in each apartment, showcasing advanced energy solutions in residential design.



Community Impact and Social Sustainability
Fostering Intergenerational Interaction
The project’s layout and amenities are designed to encourage interaction between students and seniors, fostering a supportive community environment. This approach enhances social well-being and reduces feelings of isolation among residents.


Integration with the Local Environment
Generatorn Housing is seamlessly integrated into the local community of Vallastaden, with design elements that reflect the cultural and environmental ethos of the area. This integration helps the building complement its surroundings and serve as a model for future developments.


Generatorn Housing by Spridd Architects, Secretary Architecture, and Septembre Architecture represents a significant advancement in sustainable multi-generational housing. Through innovative design and sustainability practices, this project not only provides comfortable and efficient living spaces but also fosters a dynamic and supportive community environment. As cities continue to grow and diversify, Generatorn Housing stands as a beacon of how architectural ingenuity can harmonize with environmental stewardship to enhance urban living.

All photographs are work of Johan Dehlin
Popular Articles
Popular articles from the community
Louis Malle Cinema: A Limestone Cultural Landmark Revitalizing Community Life in Prayssac
Limestone cinema extension with public forecourt, blending heritage and modern design to create flexible cultural spaces and strengthen community interaction.
Flamboyant House by Juliana Camargo + Prumo Projetos
Modern Brazilian house integrating existing tree, pool, and volumes with glass, wood, and transitional spaces blending interior, exterior, and landscape seamlessly.
An Miên Lumière Cafe by xưởng xép, Ho Chi Minh City, Vietnam
An industrial-inspired café where layered steel and warm light create a dynamic, immersive environment shaped by reflection, depth, and perception.
Solar Steam: A Climate-Responsive Architecture That Redefines the Monument
A climate-responsive memorial architecture that transforms heat, decay, and time into a living system reflecting humanity’s ecological impact.
Similar Reads
You might also enjoy these articles
The Ken Roberts Memorial Delineation Competition (Krob)
As the most senior architectural drawing competition currently in operation anywhere in the world, it draws hundreds of entries each year, awarding the very best submissions in a series of medium-based categories.
Waterfront Redevelopment and Urban Revitalization in Mumbai: Forging a New Dawn for Darukhana
A transformative waterfront redevelopment project reimagining Darukhana’s shipbreaking heritage into an inclusive urban future.
OUT-OF-MAP: A Call for Postcards on Feminist Narratives of Public Space
Rhizoma Design and Research Lab invites artists, designers, architects, researchers, and students to reflect on how feminist perspectives can reshape public space. Selected works will be exhibited in Barcelona, October 2026. Submissions open until 15 April 2026.
Documentation Work on Buddhist Wooden Temple
Architectural syncretism and cultural hybridity: A comparative study of the Buddhist temples in Chattogram Hill tracks
Explore Architecture Competitions
Discover active competitions in this discipline
The International Standard for Design Portfolios
The Global Benchmark for Architecture Dissertation Awards
The Global Benchmark for Graduation Excellence
Challenge to reimagine the Iron Throne
Comments (0)
Please login or sign up to add comments
No comments yet. Be the first to comment!