Nordic Office of Architecture Breaks a Nursery into a Village of Timber Gables in Denmark
Savannen Nursery in Blovstrød scatters gabled volumes around courtyards, giving children a landscape scaled to their world.
A nursery is, in a very literal sense, the first piece of architecture most people experience. It shapes how a child understands enclosure, light, and the boundary between inside and out. So it is worth paying attention when a firm like Nordic Office of Architecture refuses to treat a daycare as a single monolithic box and instead fragments the program into a cluster of small, gabled timber houses gathered around shared courtyards and open lawns. Savannen Nursery in Blovstrød, Denmark, reads less like an institution and more like a tiny settlement, one where the architecture itself becomes a teaching tool about scale, nature, and community.
The move is disarmingly simple. Rather than stacking functions inside a single envelope, the architects distribute group rooms, activity spaces, and support areas across a series of linked pitched-roof volumes. Each unit is clad floor to ridge in vertical timber boards, giving the whole ensemble a material consistency that holds the composition together even as it disperses across the site. The result is a nursery that children can read: distinct houses connected by thresholds and outdoor rooms, a legible world at a legible scale.
A Village, Not a Building



From a distance, Savannen reads as a collection of houses rather than a single institution. The gabled volumes sit on an open lawn, their dark timber profiles punctuated by young trees and playground equipment. There is no grand entrance facade, no singular front. Instead, the nursery presents itself from every direction as a loose grouping of familiar forms, much the way a child might draw a row of houses.
That informality is deliberate. By breaking down the nursery's mass, the architects avoid the institutional character that so many educational buildings default to. Each volume feels approachable. The spaces between them, sometimes paved, sometimes grassed, become as important as the rooms inside. Children move through a landscape of thresholds rather than corridors.
Courtyards as Outdoor Classrooms



The arrangement of volumes generates a series of courtyards that vary in character. Some are paved with pale gravel and furnished with timber picnic benches, suited for structured outdoor activities. Others are left as open lawn. A shade sail stretches across one terrace, creating a sheltered zone for eating or gathering without enclosing it entirely. The courtyards feel protected without being enclosed, a difficult balance that the architects achieve through careful orientation and the overlapping sightlines between gabled facades.
For a nursery, these in-between spaces matter enormously. They allow children to be outdoors while remaining visible to caregivers inside. The large glazed openings facing the courtyards ensure that the boundary between supervision and freedom is soft, not policed by walls.
Timber Skin, Consistent Language



Vertical timber cladding wraps every volume from foundation to ridge, interrupted only by narrow ribbon windows and the occasional recessed doorway. The boards weather at different rates depending on exposure, which means the nursery will develop a patchy, silvered patina over time. That aging is a feature, not a flaw. It gives children a tactile lesson in material change, and it ties the building visually to the landscape around it.
The detailing is restrained. At the gable peaks, small paired windows and black-framed skylights puncture the timber skin, admitting light deep into the roof structures. The metal roofing sits flush with the cladding, reinforcing the sharpness of each volume's silhouette. Solar panels on the south-facing slopes are the most visible concession to the building's sustainability ambitions, integrated into the roof plane without disrupting the profile.
Interiors Scaled to Small Bodies



Inside, the gable form is not merely structural. It is spatial. The pitched ceilings of each volume give the group rooms a domestic scale, amplified by herringbone acoustic panels that soften sound while drawing the eye upward. Skylights punch through the ridge, flooding spaces with diffused daylight and reducing the need for artificial lighting during the day.
The furniture and storage are designed as architecture in miniature. House-shaped plywood cubbies with slatted timber gables echo the building's exterior language. Sliding panels allow children to open and close compartments, turning storage into play. The palette stays muted: birch plywood, grey resilient flooring, and vertical timber accent walls. Nothing competes with the activity of the children themselves.
Color, Kitchen, and the Social Core


A blue kitchen island in one of the open-plan spaces is one of the few moments of bold color, and it works precisely because the surrounding palette is so disciplined. The kitchen becomes a social anchor, a place where children can watch food being prepared or participate in cooking activities. Wall-mounted desks nearby turn the same room into a workspace, allowing the architecture to support multiple modes of use without reconfiguration.
Elsewhere, the plywood storage walls serve double duty as room dividers. Their slatted timber gable tops reach toward the ceiling without touching it, preserving visual continuity and airflow between zones. The polished concrete floor in circulation areas contrasts with the softer finishes in the group rooms, creating a subtle material cue that helps children orient themselves.
Landscape as Infrastructure



The wildflower meadow that borders the nursery is not decorative. It is part of a deliberate landscape strategy that integrates stormwater management, biodiversity, and play. Children run through tall grasses, engaging with a planted environment that changes with the seasons. The young trees dotting the lawns will, in a decade, provide canopy shade that the buildings currently lack, meaning the design anticipates a maturation that is unusual in institutional projects.
Swing sets and simple play structures are scattered across the site rather than confined to a single fenced enclosure. The landscape treats the entire grounds as a play surface, blurring the line between structured recreation and free exploration. It is the kind of approach that requires trust in children's competence, and the architecture supports that trust by providing clear sightlines from every indoor space to the outdoors.
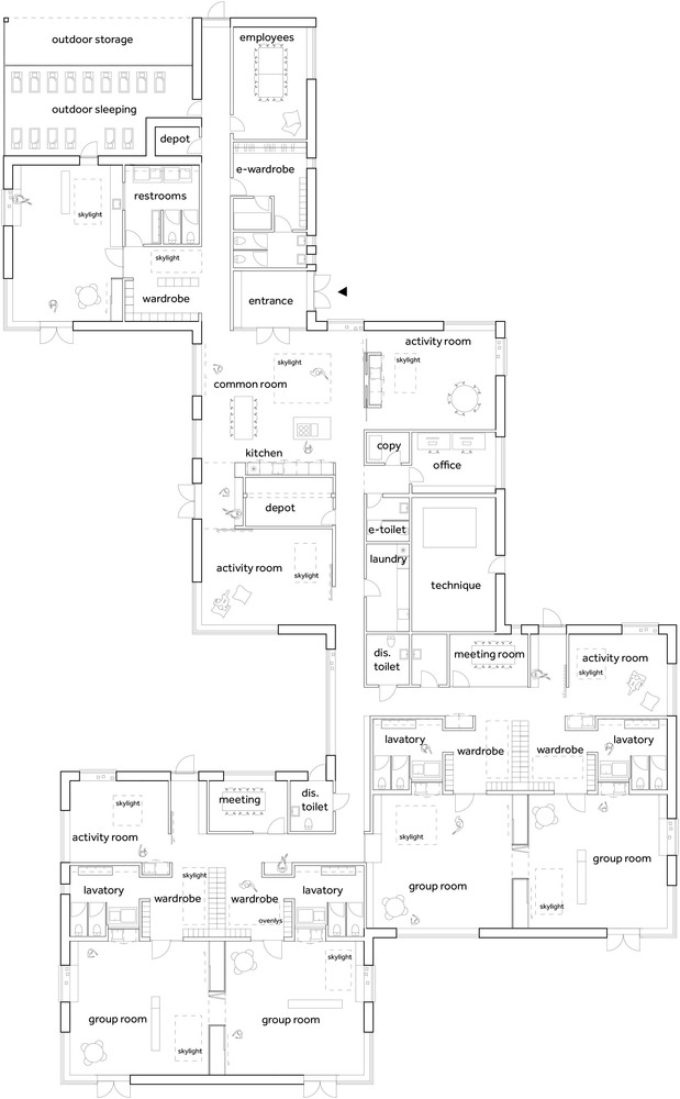
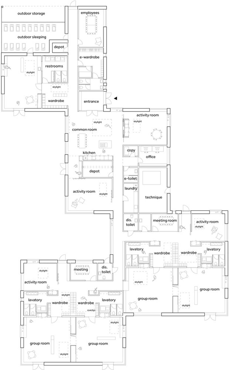
Plans and Drawings








The exploded axonometric reveals the structural logic: simple timber frames supporting pitched roofs over open floor plates, with interior partitions inserted independently. The process diagram illustrates the design strategy in four steps: partition the program, downscale each element, arrange the volumes around outdoor spaces, and refine the configuration. It is a remarkably transparent methodology, one that makes the compositional decisions legible even to a non-specialist audience.
The floor plan confirms that the cluster is not arbitrary. Group rooms and activity spaces orient toward the courtyards and lawns, while support areas, kitchens, and staff rooms occupy the interior of the plan where direct outdoor access is less critical. The site plan shows the nursery nestled within a broader residential district, with organic water features and soft landscaping mediating between the building and its suburban context.
Why This Project Matters
Savannen Nursery demonstrates that sustainability in children's architecture is not just about solar panels and timber certifications. It is about designing at the right scale. By fragmenting the building into village-like clusters, Nordic Office of Architecture creates an environment where children can develop spatial literacy, where they learn to navigate between distinct places rather than drifting through a single open floor. The timber construction and passive strategies are commendable, but the real contribution is the insistence that architecture for children should be legible, tactile, and grounded in the landscape.
Too many nurseries default to the brightly colored shed: a big room with a fence around it. Savannen takes the opposite position. It argues that early childhood environments deserve the same compositional rigor as any civic building, and that the best way to respect young users is to give them architecture they can understand. The cluster of gables, the wildflower borders, the house-shaped cubbies: none of this is accidental. It is a coherent argument for designing down to a child's eye level, and it is convincing.
Savannen Nursery by Nordic Office of Architecture, Blovstrød, Denmark. Photography by Kirstine Mengel and Imarken.
About the Studio
Share Your Own Work on uni.xyz
If projects like this are the kind of work you want to make, uni.xyz is a place to publish your own, find collaborators, and enter design competitions.
Popular Articles
Popular articles from the community
Gunawarman 35: Jakarta's Corner of Quiet Complexity
WOFF's mixed-use building in Jakarta pairs translucent glass block walls with a buff brick cylinder to hold coffee, wellness, and work under one roof.
Residence BB 214: Quiet Precision in Ludhiana
Minimalist Architecture & Design Studio composes a residence of white volumes, filtered light, and deliberate restraint in Punjab's urban fabric.
Guangzhou's Twin Towers Interiors Move Like Water
DuShe Architectural Design shapes the lobbies of a massive Guangzhou transit hub with undulating ceilings and deep geological materiality.
MAKER architecten Rewire a 1972 Brutalist Dormitory on the VUB Campus as a Living Lab
A modular renovation strategy in Belgium breathes new life into Willy Van Der Meeren's modernist student housing without erasing its concrete bones.
Similar Reads
You might also enjoy these articles
Filtering Space: A Gradual Spatial Experience
From urban intensity to spatial calm.
The Ken Roberts Memorial Delineation Competition (Krob)
As the most senior architectural drawing competition currently in operation anywhere in the world, it draws hundreds of entries each year, awarding the very best submissions in a series of medium-based categories.
Waterfront Redevelopment and Urban Revitalization in Mumbai: Forging a New Dawn for Darukhana
A transformative waterfront redevelopment project reimagining Darukhana’s shipbreaking heritage into an inclusive urban future.
OUT-OF-MAP: A Call for Postcards on Feminist Narratives of Public Space
Rhizoma Design and Research Lab invites artists, designers, architects, researchers, and students to reflect on how feminist perspectives can reshape public space. Selected works will be exhibited in Barcelona, October 2026. Submissions open until 15 April 2026.
Explore Architecture Competitions
Discover active competitions in this discipline
The International Standard for Design Portfolios
The Global Benchmark for Architecture Dissertation Awards
The Global Benchmark for Graduation Excellence
Challenge to reimagine the Iron Throne
Comments (0)
Please login or sign up to add comments
No comments yet. Be the first to comment!