Sustainable Residential Architecture: Life Cycle House by Steffen Welsch Architects
Life Cycle House by Steffen Welsch Architects is an example of sustainable residential architecture that integrates passive design and eco-friendly materials.
Introduction to Sustainable Residential Architecture
Sustainable residential architecture focuses on creating homes that harmonize with their environment, minimizing their ecological footprint while enhancing comfort and functionality. Steffen Welsch Architects "Life Cycle House" exemplifies this approach, combining passive solar design, resource-conscious materials, and a deep respect for both natural surroundings and the existing architectural context. The Life Cycle House is not just a home but a statement about the future of sustainable living.


The Design Philosophy of Life Cycle House
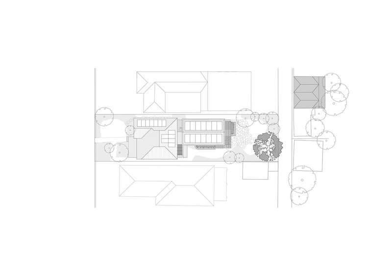
Life Cycle House was designed with sustainability at its core, guided by the principles of passive solar design and life cycle assessment. Steffen Welsch Architects employed a simple, modest addition to the existing home, moving the structure to the side to preserve open space. This approach reduced material usage, avoided over-glazing, and strategically placed doors and windows to optimize natural light and airflow. The result is a space that embraces nature while offering maximum comfort and minimal energy consumption.


Passive Solar Design and Energy Efficiency
One of the standout features of the Life Cycle House is its passive solar design, a crucial element of sustainable residential architecture. The building minimizes its reliance on artificial heating and cooling by using the natural environment to regulate internal temperatures. The winter garden acts as a thermal buffer, and the pond outside the lounge serves as a natural cooler. Above the dining area, a netted void functions as a thermal chimney, helping to optimize airflow and reduce the need for mechanical ventilation.


This strategic integration of passive solar techniques ensures that the Life Cycle House maintains a comfortable interior climate year-round while reducing energy consumption and reliance on fossil fuels.


Materials and Low Embodied Carbon Design
Sustainability in residential architecture goes beyond energy efficiency; it extends to the materials used in construction. The Life Cycle House emphasizes low embodied carbon materials, with stone flooring chosen for its ability to optimize thermal comfort and reduce radiant heat. The timber structure, in addition to being locally sourced, provides natural insulation and blends seamlessly with the surrounding environment. Every material decision was made with the intent to reduce the building's global warming potential, resulting in a reduction of 79% compared to the Australian average.


Social and Environmental Impact of Sustainable Design
Sustainable residential architecture also considers the broader social and environmental impacts of a home. The Life Cycle House design was informed by a desire to engage with the surrounding neighborhood. The architects opened the front of the house, extending the verandah to create an inviting space for interaction. Upstairs, carefully curated views of neighboring trees and buildings allow the residents to feel connected to the community while enjoying privacy and comfort inside.

This thoughtful approach helps integrate the home into its context, balancing the need for personal space with a sense of community. The result is a home that is as much about the surrounding environment and neighborhood as it is about the individual needs of its residents.

Integration of Nature and Architecture
The Life Cycle House embraces the natural world both inside and outside. By creating an extension that dissolves into an articulated timber structure, the design connects the building to the garden, reflecting a contemporary aesthetic while respecting the architectural traditions of the area. The use of natural materials like timber, stone, and glass allows the home to interact with its environment, offering beautiful views of the landscape while reducing the home's impact on it.


This integration of nature into the architectural design not only enhances the aesthetic appeal but also contributes to the home's sustainability. The surrounding garden and the materials used in the structure help maintain a natural balance, offering both beauty and function.


A Functional and Personalized Home
Sustainable residential architecture also needs to be functional and comfortable. Life Cycle House was designed to be adaptable to the changing needs of the family. The zoning of the home was carefully considered, with the original house accommodating home offices and essential living spaces, while the rear extension was dedicated to communal areas and children's spaces. This thoughtful zoning ensures that the home can evolve with the family’s needs over time, making it both a sustainable and flexible living space.

The interior of the home features warm, natural materials that create a comfortable and inviting atmosphere. The open-plan design encourages interaction while offering enough private spaces for the family to retreat. As the owners described it, the house is nurturing, warm, and welcoming, providing a sense of calm and joy through its connection with nature.

Life Cycle House as a Model for Sustainable Residential Architecture
Life Cycle House by Steffen Welsch Architects represents the future of sustainable residential architecture. It showcases how careful design decisions—ranging from passive solar strategies to the use of low-carbon materials—can create a home that is not only energy-efficient but also attuned to its environment. By blending modern design with traditional forms, Life Cycle House is a true testament to the possibility of achieving a harmonious balance between functionality, sustainability, and aesthetic beauty.







All photographs are works of Tatjana Plitt
Popular Articles
Popular articles from the community
Alton Cliff House: A Harmonious Retreat by f2a Architecture in Lake Country, Canada
Alton Cliff House blends corten steel, prefabrication, and sustainable design, creating a luxurious, energy-efficient retreat perched on Canadian cliffs.
Inverted Architecture Installation by Studio Link-Arc: Exploring the Intersection of Architecture and Living Organisms
Inverted Architecture Installation by Studio Link-Arc blends mycelium, sustainability, inverted design, ecological cycles, and urban adaptive architecture in Shenzhen.
Gads Hill Early Learning Center by JGMA: Adaptive Reuse Shaping Community-Focused Educational Architecture
Adaptive reuse transforms fragmented structure into vibrant early learning center with playful façade, natural light, and community-focused sustainable design.
Atelier Macri Concept Store Interior Design by CASE-REAL
Atelier Macri store features a "ko" counter, walnut wood details, cork displays, blending retail, gallery, and seamless customer experiences.
Similar Reads
You might also enjoy these articles
Free Architecture Competitions You Can Enter Right Now
No entry fees, real prizes. Here are the best free architecture competitions open for submissions in 2026.
Top 15 Architecture Competitions to Enter in 2026
From student-friendly idea competitions to prestigious international awards, here are the best architecture competitions open for entries in 2026. Updated regularly.
DIY & Engineering in Computational Design : Enter the BeeGraphy Design Awards
Showcase Your Creativity with Computational Design and Open Source Projects

Innovative Design Solutions: Award-Winning Projects from Recent Architecture Competitions
Exploring award-winning architectural projects shaping the future of design, sustainability, and community.
Explore Architecture Competitions
Discover active competitions in this discipline
The International Standard for Design Portfolios
The Global Benchmark for Architecture Dissertation Awards
The Global Benchmark for Graduation Excellence
Challenge to reimagine the Iron Throne
Comments (0)
Please login or sign up to add comments
No comments yet. Be the first to comment!