Sustainable Retreat Architecture in Coonoor: VAY by Biome Environmental Solutions
Discover VAY, a sustainable retreat in Coonoor, blending modern architecture with nature to create an eco-conscious luxury experience.
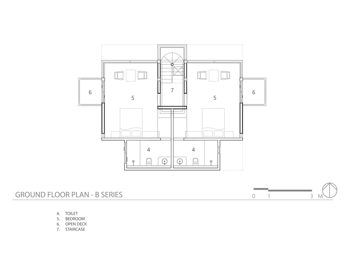
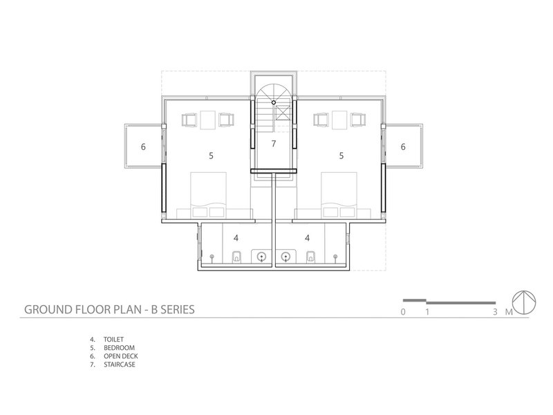
Nestled in the serene landscapes of the Nilgiris, VAY, a retreat lodge designed by Biome Environmental Solutions, harmoniously combines architecture, sustainability, and wellness. This 2022 project, situated on a historic tea estate in Huligal, India, serves as a Vedanta, Ayurveda, and Yoga Retreat, offering 39 thoughtfully designed rooms along with communal spaces such as a reception area and a restaurant. The architectural brilliance of VAY lies in its seamless integration with the steeply sloping terrain, maximizing both aesthetic appeal and environmental sensitivity.


Blending Architecture with the Terrain
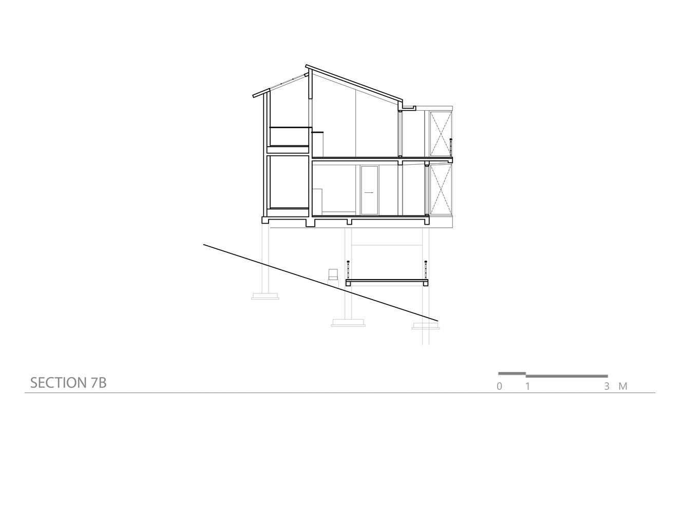
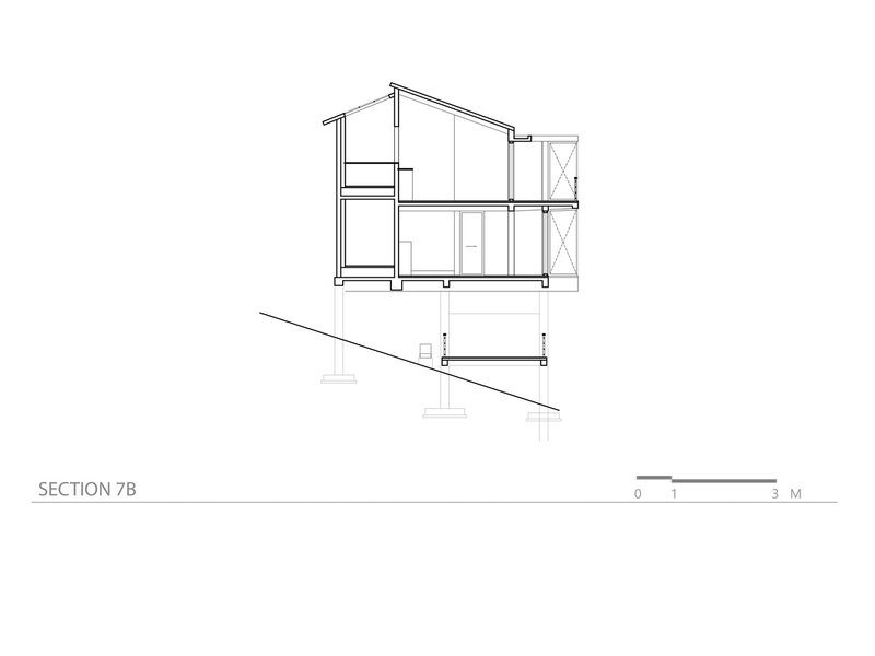
The design approach of VAY embraces the natural challenges posed by the steep site. Each building’s orientation was carefully determined on-site to optimize the breathtaking views of the surrounding valleys and hills. To minimize the ecological impact, the structures reduce their footprint by strategically cantilevering the front sections. This innovation eliminates the need for extensive stilts and minimizes disruption to the rocky terrain.

The rear sections of the villas are constructed with exposed reinforced cement concrete (RCC), which acts as a counterweight while also retaining the uphill soil. In contrast, the front portions are made entirely of glass, creating a striking aesthetic that opens up uninterrupted views of the northern scenery. This lightweight design reduces structural load and enhances the sense of immersion in nature.

Material Choices Reflecting Sustainability
Biome Environmental Solutions has a history of employing local and sustainable materials like compressed stabilized earth blocks and rammed earth. However, VAY required an alternative approach due to the scarcity of suitable soil on the rocky site and local regulations prohibiting soil transportation. Instead, the design team opted for a mix of RCC and glass, complemented by wire-cut brick walls on the villa sides. This combination balances the sleek, modern appearance of glass with the grounding warmth of brick, transitioning seamlessly between the light, open fronts and the solid, heavy rears.

For communal structures like the restaurant and reception, a wooden superstructure resting on an RCC frame was employed. This not only enhances the visual distinction from the villas but also creates a warm and inviting atmosphere.

Innovative Water Management and Landscape Integration
Rainwater harvesting is a central feature of VAY’s sustainable design. Each villa’s sloping roof channels rainwater through stainless steel pipes integrated with the staircase, collecting it in RCC tanks that are part of the cantilevered structures. This innovative solution negates the need for underground tanks while making efficient use of space.

The landscape design complements the built environment by incorporating natural streams, local flora, amphitheaters, and stone pathways. These elements ensure a seamless blend between man-made structures and the natural environment, fostering a sense of tranquility and balance throughout the site.

Balancing Aesthetics, Functionality, and Environmental Responsibility
VAY exemplifies how architecture can respect and enhance its environment while offering a luxurious and functional retreat experience. By thoughtfully reducing its ecological footprint and employing innovative materials and construction techniques, the project achieves a delicate balance between modern design and sustainability.

The retreat also serves as a model for integrating wellness-oriented spaces into natural landscapes, creating an immersive experience that connects guests to the surrounding beauty. From its strategic site planning to its meticulous material choices, VAY stands as a testament to the transformative potential of sustainable architecture.

A Retreat in Harmony with Nature
VAY by Biome Environmental Solutions is more than just a retreat lodge; it is a celebration of architecture’s ability to coexist with and honor the natural world. Through its innovative design and sustainable practices, VAY not only offers a serene escape but also sets a benchmark for environmentally conscious hospitality projects.

All Photographs are work of Vivek Muthuramalingam
Popular Articles
Popular articles from the community
20 Most Popular Commercial Architecture Projects of 2025
From sustainable market concepts to heritage factories, the commercial buildings and proposals that drew the most attention on uni.xyz this year.
Gunawarman 35: Jakarta's Corner of Quiet Complexity
WOFF's mixed-use building in Jakarta pairs translucent glass block walls with a buff brick cylinder to hold coffee, wellness, and work under one roof.
Residence BB 214: Quiet Precision in Ludhiana
Minimalist Architecture & Design Studio composes a residence of white volumes, filtered light, and deliberate restraint in Punjab's urban fabric.
MAKER architecten Rewire a 1972 Brutalist Dormitory on the VUB Campus as a Living Lab
A modular renovation strategy in Belgium breathes new life into Willy Van Der Meeren's modernist student housing without erasing its concrete bones.
Similar Reads
You might also enjoy these articles
Filtering Space: A Gradual Spatial Experience
From urban intensity to spatial calm.
The Ken Roberts Memorial Delineation Competition (Krob)
As the most senior architectural drawing competition currently in operation anywhere in the world, it draws hundreds of entries each year, awarding the very best submissions in a series of medium-based categories.
Waterfront Redevelopment and Urban Revitalization in Mumbai: Forging a New Dawn for Darukhana
A transformative waterfront redevelopment project reimagining Darukhana’s shipbreaking heritage into an inclusive urban future.
OUT-OF-MAP: A Call for Postcards on Feminist Narratives of Public Space
Rhizoma Design and Research Lab invites artists, designers, architects, researchers, and students to reflect on how feminist perspectives can reshape public space. Selected works will be exhibited in Barcelona, October 2026. Submissions open until 15 April 2026.
Explore Architecture Competitions
Discover active competitions in this discipline
The International Standard for Design Portfolios
The Global Benchmark for Architecture Dissertation Awards
The Global Benchmark for Graduation Excellence
Challenge to reimagine the Iron Throne
Comments (0)
Please login or sign up to add comments
No comments yet. Be the first to comment!