Sustainable Rural Living: P+E House by Voilá!
A contemporary rural house blending industrial aesthetics with modern family living, designed for sustainability and comfort.
The P+E House, designed by Voilá!, is a contemporary residential project located in Barbastro, Spain. Completed in 2023, this house embodies the essence of sustainable rural living, blending industrial and agricultural architectural elements with modern family life.


Concept and Inspiration
Rural Landscape Influence
Inspired by the surrounding rural landscape, the P+E House draws its design from the simple, industrial, and agricultural buildings that dot the periphery between city and countryside. This concept aims to create a home that reflects the area's heritage while providing a joyful and functional living space for a modern family.


The Farm Concept
The core idea of the P+E House is rooted in the concept of "a farm." This recreational land in a peripheral neighborhood mimics the appearance of nearby industrial and agricultural structures, creating a unique blend of rural charm and contemporary design.


Architectural Layout and Design
Strategic Placement and Compliance
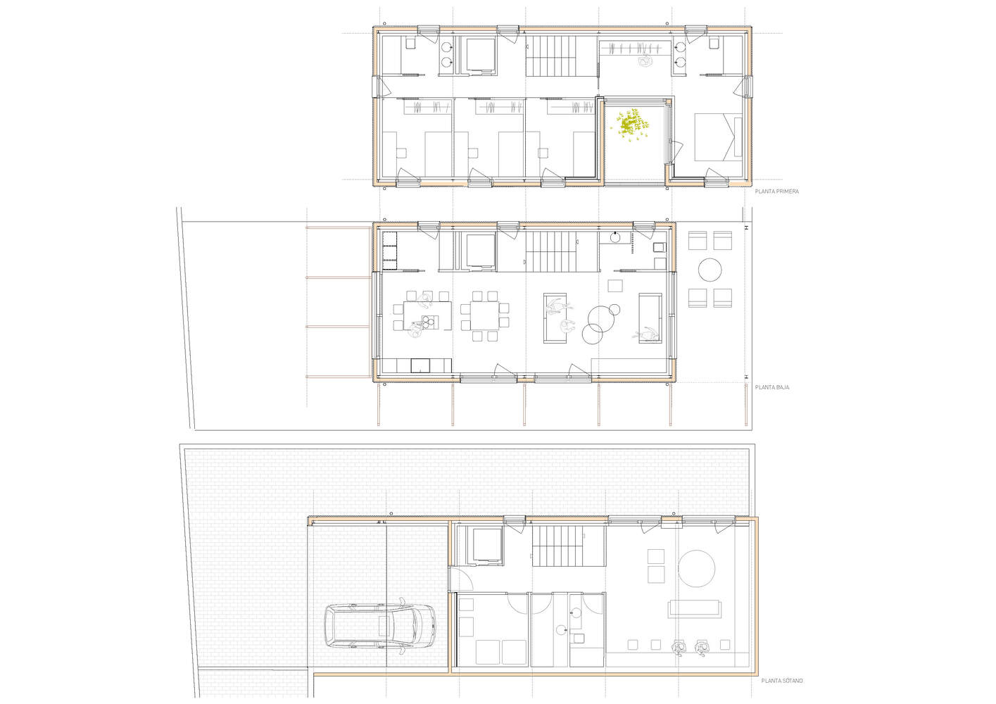
In adherence to urban planning regulations, the house is positioned at the northern end of the plot, freeing up the southern strip for a garden. The design includes a ground floor, first floor, and a basement illuminated by a patio strip along the northern boundary. This strategic placement ensures compliance with buildability limits and maximizes available space.


Fragmented Volume and Terraces
To address cubic meter limitations, the volume of the house is fragmented, creating additional terrace spaces. This design not only adds aesthetic value but also enhances the functionality and livability of the home.


Functional and Sustainable Features
Longitudinal Axis and Functional Zoning
The functional layout unfolds along a longitudinal axis, with the main living spaces facing south towards the garden. The northern strip houses service areas, such as circulation spaces and wet rooms. Despite its simple volume, the house generates complex spaces through strategic volume emptying on each floor.



Passive House Standards
The P+E House is designed with a high degree of compactness, insulation, and airtightness, adhering to passive house standards. This ensures energy efficiency and sustainability, crucial aspects of modern rural living.


Material Palette
The exterior features a profiled sheet metal finish used on both facades and roofs, reflecting the industrial aesthetic. Inside, the use of wood introduces warmth and comfort, creating a welcoming living environment that balances the rugged exterior.



The P+E House by Voilá! is a remarkable example of sustainable rural house design. By integrating elements of the rural landscape with modern architectural practices, this house offers a unique and functional living space that resonates with the spirit of its surroundings. Its thoughtful design and adherence to passive house standards make it a model for sustainable residential architecture.


All photographs are work of Nacho Cordero
Popular Articles
Popular articles from the community
Inverted Architecture Installation by Studio Link-Arc: Exploring the Intersection of Architecture and Living Organisms
Inverted Architecture Installation by Studio Link-Arc blends mycelium, sustainability, inverted design, ecological cycles, and urban adaptive architecture in Shenzhen.
Split House: A Compact Urban Home Blending Privacy, Light, and Flexible Living in Japan
Compact Japanese home featuring DOMA space, flexible café potential, passive lighting, privacy zoning, and sustainable urban living design.
Gads Hill Early Learning Center by JGMA: Adaptive Reuse Shaping Community-Focused Educational Architecture
Adaptive reuse transforms fragmented structure into vibrant early learning center with playful façade, natural light, and community-focused sustainable design.
Fifth NRE Jazz Club – De Bever Architecten: Eindhoven’s Revitalized Cultural Hub
Historic gas factory transformed into Fifth NRE Jazz Club blending modern sustainability, jazz culture, dining, and heritage architecture seamlessly.
Similar Reads
You might also enjoy these articles
The Ken Roberts Memorial Delineation Competition (Krob)
As the most senior architectural drawing competition currently in operation anywhere in the world, it draws hundreds of entries each year, awarding the very best submissions in a series of medium-based categories.
Waterfront Redevelopment and Urban Revitalization in Mumbai: Forging a New Dawn for Darukhana
A transformative waterfront redevelopment project reimagining Darukhana’s shipbreaking heritage into an inclusive urban future.
OUT-OF-MAP: A Call for Postcards on Feminist Narratives of Public Space
Rhizoma Design and Research Lab invites artists, designers, architects, researchers, and students to reflect on how feminist perspectives can reshape public space. Selected works will be exhibited in Barcelona, October 2026. Submissions open until 15 April 2026.
Documentation Work on Buddhist Wooden Temple
Architectural syncretism and cultural hybridity: A comparative study of the Buddhist temples in Chattogram Hill tracks
Explore Architecture Competitions
Discover active competitions in this discipline
The International Standard for Design Portfolios
The Global Benchmark for Architecture Dissertation Awards
The Global Benchmark for Graduation Excellence
Challenge to reimagine the Iron Throne
Comments (0)
Please login or sign up to add comments
No comments yet. Be the first to comment!