Sustainable Super-High-Rise Office Design in Wuhan: 1 CORPORATE AVENUE by Pelli Clarke & Partners
Exploring 1 CORPORATE AVENUE by Pelli Clarke & Partners, a sustainable, towering office landmark in Wuhan, China.
Rising majestically at the confluence of the Yangtze and Han rivers, 1 CORPORATE AVENUE stands as a landmark in Wuhan, China. Designed by the renowned Pelli Clarke & Partners and completed in 2022, this towering edifice is not only the tallest office tower in Hubei Province but also a beacon of sustainable architectural design.




Architectural Inspiration and Vision
Drawing inspiration from the historic sampan ships of the Yangtze River, the design of 1 CORPORATE AVENUE and its companion towers in the Wuhan Tiandi Business Center reflects the dynamic and forward-looking spirit of Wuhan. The complex aims to redefine the urban landscape, merging business and tourism into a vibrant community hub.






Design Elements and Sustainability
The main tower's facade is a modern reinterpretation of traditional Chinese architecture, blending ornate window patterns with Western compositions. Materials range from modern aluminum and glass to stone aged for centuries, symbolizing a bridge between history and the future. This project stands out for its commitment to sustainability, achieving WELL Building Certification and pioneering the "Green Power" program.









Urban Integration and Public Spaces
The Wuhan Tiandi Business Center seamlessly integrates with the city's fabric, offering a human-centric design that combines urban squares, pedestrian streets, and lush green spaces. The ground floor plaza serves as a lively public venue, complemented by a rooftop garden that houses cafes, restaurants, and play areas.

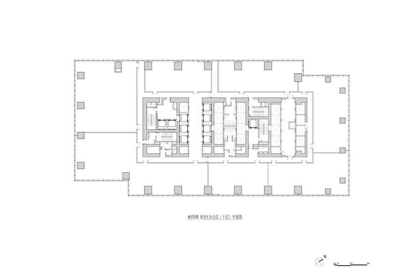
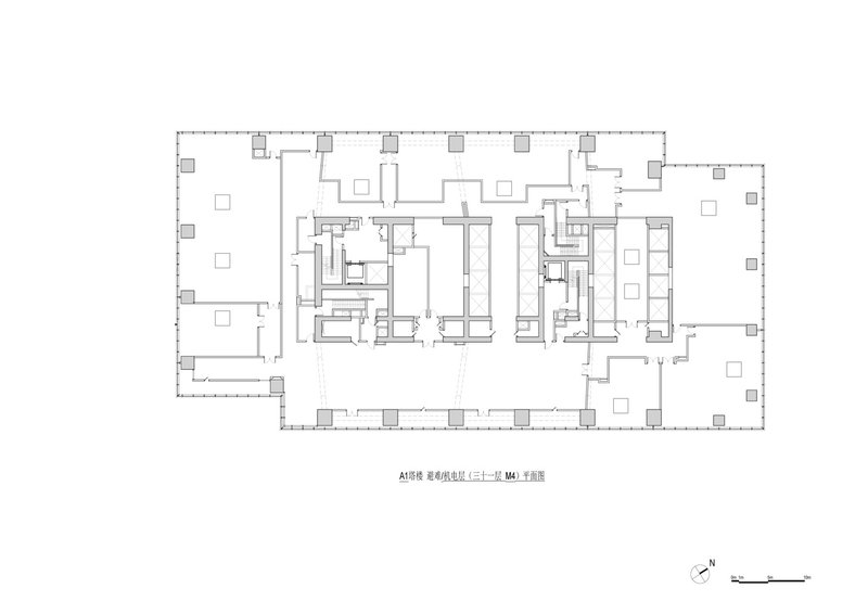
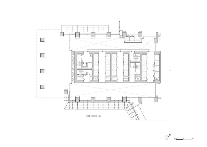
Office Space and Environmental Certification
1 CORPORATE AVENUE provides Class A+ office spaces with efficient floor plans and optimized views. Within just over a year of opening, it has attracted various headquarters and enterprises, covering over 45,000 m^2 in signed areas. The building's environmental initiatives, including WELL Building Certification, underscore its role in promoting sustainable development in urban office design.
1 CORPORATE AVENUE by Pelli Clarke & Partners is more than an architectural marvel; it's a sustainable super-high-rise that sets new standards for office buildings in Wuhan and beyond. With its unique design, commitment to sustainability, and integration into the urban landscape, it not only enhances the city's skyline but also fosters a vibrant, eco-friendly business community.














All Photographs are the work of Zefeng Zhang, CreatAR, Pelli Clarke & Partners
Popular Articles
Popular articles from the community
Solar Steam: A Climate-Responsive Architecture That Redefines the Monument
A climate-responsive memorial architecture that transforms heat, decay, and time into a living system reflecting humanity’s ecological impact.
An Miên Lumière Cafe by xưởng xép, Ho Chi Minh City, Vietnam
An industrial-inspired café where layered steel and warm light create a dynamic, immersive environment shaped by reflection, depth, and perception.
Flamboyant House by Juliana Camargo + Prumo Projetos
Modern Brazilian house integrating existing tree, pool, and volumes with glass, wood, and transitional spaces blending interior, exterior, and landscape seamlessly.
On the Brooks House by Monsoon Collective – A Contemporary Kerala Home Rooted in Tradition
Kerala home blending tradition and modernity with water-inspired design, brick architecture, courtyard planning, and sustainable rainwater harvesting strategies.
Similar Reads
You might also enjoy these articles
The Ken Roberts Memorial Delineation Competition (Krob)
As the most senior architectural drawing competition currently in operation anywhere in the world, it draws hundreds of entries each year, awarding the very best submissions in a series of medium-based categories.
Waterfront Redevelopment and Urban Revitalization in Mumbai: Forging a New Dawn for Darukhana
A transformative waterfront redevelopment project reimagining Darukhana’s shipbreaking heritage into an inclusive urban future.
OUT-OF-MAP: A Call for Postcards on Feminist Narratives of Public Space
Rhizoma Design and Research Lab invites artists, designers, architects, researchers, and students to reflect on how feminist perspectives can reshape public space. Selected works will be exhibited in Barcelona, October 2026. Submissions open until 15 April 2026.
Documentation Work on Buddhist Wooden Temple
Architectural syncretism and cultural hybridity: A comparative study of the Buddhist temples in Chattogram Hill tracks
Explore Architecture Competitions
Discover active competitions in this discipline
The International Standard for Design Portfolios
The Global Benchmark for Architecture Dissertation Awards
The Global Benchmark for Graduation Excellence
Challenge to reimagine the Iron Throne
Comments (0)
Please login or sign up to add comments
No comments yet. Be the first to comment!