Sustainable Tropical Home Design: AVA House by Irina Biletska
Explore AVA House by Irina Biletska, a sustainable tropical home design in Brazil that harmonizes with its lush surroundings.
Located in the serene coastal village of Serra Grande in southern Bahia, Brazil, AVA House by Irina Biletska exemplifies sustainable tropical home design. This article delves into the architectural strategies and materials that make this residence a model of eco-friendly living.


Project Overview
Design Philosophy
The primary goal of AVA House is to create a healthy, welcoming, and environmentally friendly living space that harmoniously integrates with the lush Atlantic Forest. The design prioritizes solutions that minimize dependence on conventional energy resources, making it a benchmark for sustainable tropical home design.


Thermal Comfort and Ventilation
Cross Ventilation
Maximizing cross ventilation is key to ensuring thermal comfort without relying on air conditioning. The intelligent use of solid brick cobogó facilitates continuous air circulation, keeping the interior cool and airy even on the hottest days.

Orientation and Natural Light
The house is oriented to the east, optimizing the use of natural light and cool ocean breezes. This orientation not only enhances the indoor climate but also reduces the need for artificial lighting during the day.

Sustainable Materials and Construction
Locally Sourced Materials
Adobe and Brick
Internally, adobe walls help regulate temperature and humidity, contributing to a comfortable living environment. The adobe bricks were produced on-site, reinforcing the project's commitment to sustainability from its inception.


Concrete, Wood, and Bamboo
The structure combines concrete, wood, and bamboo, with the latter sourced from a nearby farm. This combination ensures durability and a reduced environmental footprint.

Local Clay and Paint
The internal plaster and paint are made from local clay, enriched with Tabatinga, a characteristic white clay from the region. This choice not only adds aesthetic value but also aligns with sustainable building practices.

Eco-Friendly Flooring and Frames
Reclaimed Wood and Ceramic Tiles
The flooring, made from reclaimed wood and ceramic tiles, adds rustic charm and warmth to the spaces. Cumaru wood frames further ensure durability and natural beauty.

Ecological Sanitation and Energy Solutions
Water Management
AVA House adopts ecological sanitation practices, such as separating gray water and flush water, directing them to reuse and treatment systems like banana circles and biodigesters. This approach minimizes water waste and enhances sustainability.


Solar Heating System
Hot water is supplied by a solar heating system, significantly reducing the residence's environmental impact and reliance on non-renewable energy sources.


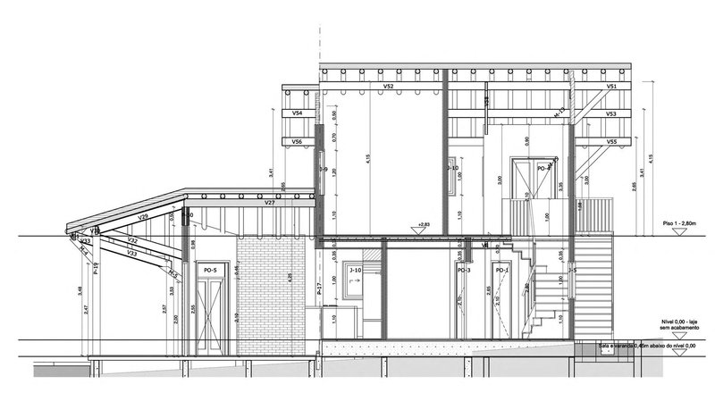
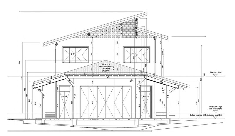
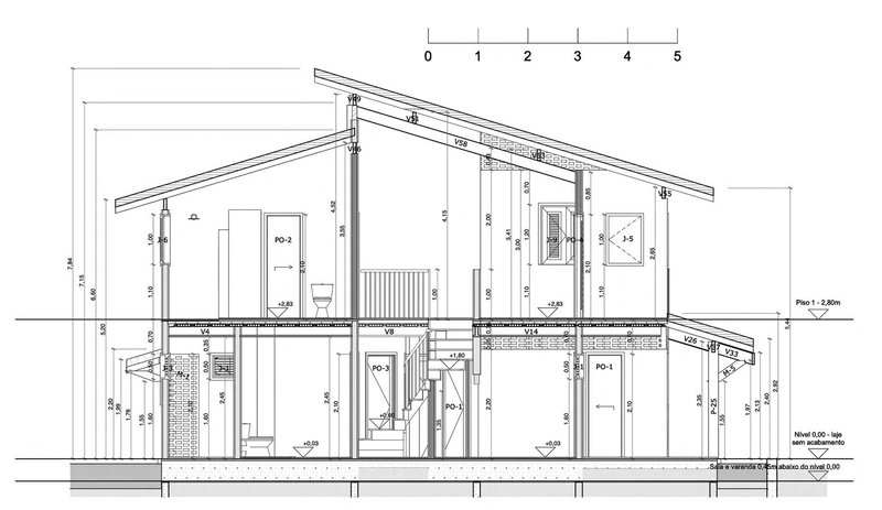
Architectural Layout and Connection with Nature
Integration with the Landscape
The house is designed to follow the gentle slope of the terrain, integrating seamlessly with the lush surroundings of the Mata Atlântica forest. This design not only provides natural shade but also fosters an intimate connection with nature.


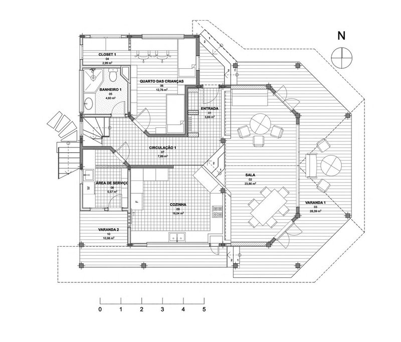
Spatial Organization
The residence is distributed over two levels. The ground floor hosts social and service areas, while the upper floor includes a master suite and a studio/office, which is used for activities such as a home office and music lessons.


AVA House by Irina Biletska is a leading example of sustainable tropical home design. By leveraging natural ventilation, locally sourced materials, and eco-friendly practices, the house offers a blueprint for environmentally conscious living in tropical climates. This project not only meets the immediate needs of its residents but also sets a new standard for sustainable architecture in the region.


All photographs are work of Maja Juzwiak
Popular Articles
Popular articles from the community
Architects Group RAUM Stacks Offset White Volumes into a Compact Office Tower in Busan
A 524-square-meter building on a tight corner lot in Haeundae plays with sunlight rights and shifting floor plates to create generous terraces.
boq architekti Fits a Gabled Family House onto a Tiny Moravian Hillside Plot with No Room for a Garden
A 115 square meter home in South Moravia trades a garden for a rooftop terrace and a fully glazed facade facing the village below.
BICA Arquitectos Buries a Coastal Home in a Man-Made Dune on Portugal's Tróia Peninsula
A 300-square-meter house of timber, sand mortar, and travertine dissolves into the dune landscape it helped regenerate on the Alentejo coast.
Paco Oria Estudio Rebuilds a 1949 Valencian Town House Around Timber, Terracotta, and a New Interior Patio
In Godella, Spain, a semi-detached house from the postwar era is stripped to its party walls and rebuilt with wood and ceramics.
Similar Reads
You might also enjoy these articles
Olio Towers: A Mid-Rise for Performers That Fuses Housing, Rehearsal, and Stage
Located blocks from Houston's Theater District, this modular tower stacks living units around a central performance atrium.
Oasis: Modular Green Housing Carved into Dhaka's Urban Fabric
A shortlisted Plugin Housing entry reclaims unauthorized settlements in Dhaka with stepped concrete volumes, green roofs, and ventilation-driven design.
Black Hole: A Floating Megastructure for the Post-Physical Era
Emiliano Mazzarotto envisions a spherical, self-scaling arena where e-sports, digital hotels, and holographic stadiums replace traditional public space.
Compact & Sustainable Living in Piraeus: A Four-Level Family Home Built Around Light and Air
A narrow townhouse in one of Greece's densest port cities uses a central atrium and passive strategies to house three generations under one roof.
Explore Architecture Competitions
Discover active competitions in this discipline
The International Standard for Design Portfolios
The Global Benchmark for Architecture Dissertation Awards
The Global Benchmark for Graduation Excellence
Challenge to reimagine the Iron Throne
Comments (0)
Please login or sign up to add comments
No comments yet. Be the first to comment!