Sustainable Wooden House Design: House Between the Trees by Peter Kjær Arkitekter
The House Between the Trees showcases sustainable wooden house design, integrating eco-friendly materials with nature-inspired architecture.
Embracing Nature in Sustainable Architecture
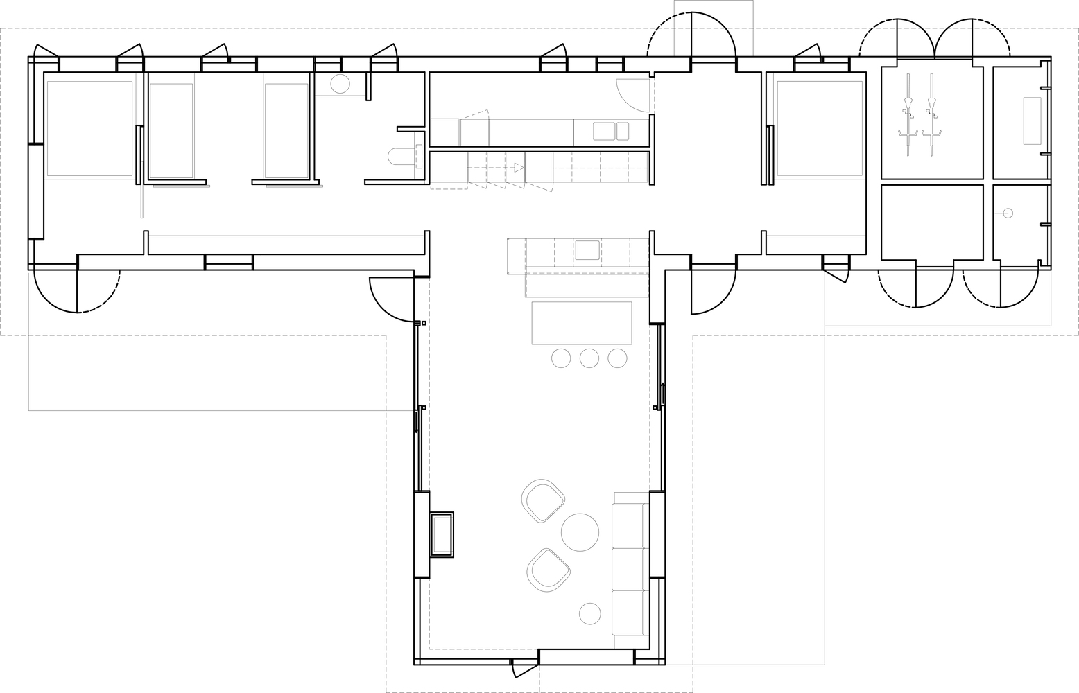
The House Between the Trees, designed by Peter Kjær Arkitekter, exemplifies the seamless integration of sustainable design and natural surroundings. Located in Denmark, this 167 m² summer house is a discreet T-shaped structure that harmonizes with the surrounding forest while incorporating environmentally conscious construction techniques. The house is a testament to how thoughtful design can address sustainability and aesthetics, creating a warm and inviting retreat.



Architectural Form and Layout
The house features an archetypal roof shape and a T-configuration that accommodates the natural layout of the lot's trees. Its design is carefully adapted to preserve the natural environment, minimizing disruption to the landscape. The structure includes two distinct wings: a bedroom wing that provides privacy and shields the home from the nearby road, and a family room wing that opens to the west. At the junction of these wings lies a kitchen that serves as the home's heart, connecting to terraces that capture sunlight throughout the day.



Thoughtful Use of Light and Space
Natural light plays a vital role in the design of the House Between the Trees. The kitchen is connected to a loft that welcomes morning light from the east, creating a tranquil and luminous space. The terraces, accessible from the kitchen and family room, extend the living spaces outdoors, offering views of the forest and opportunities to enjoy the changing light throughout the day.



Foundations of Sustainability
A significant focus of the project is on reducing its climate footprint. Conventional one-story wooden homes often rely heavily on concrete for foundations, contributing significantly to their environmental impact. However, the House Between the Trees employs a foundation of screwed piles and minimal concrete, reducing the use of traditional materials. A visible plinth beam, made with wooden formwork and concrete, highlights the aesthetic potential of this approach while maintaining durability.


The terrain deck, constructed without concrete, uses pressure-resistant insulation and floating floors made from floor chipboards and Douglas fir boards. This innovative construction method demonstrates how biogenic materials can replace conventional approaches, particularly in areas with height restrictions.


Natural Materials and Interior Detailing
Sustainability extends to the choice of materials used throughout the house. Douglas fir is a central material, framing windows, tap bands, and other internal details. The interior walls are clad in thin east veneer, offering a durable and beautifully patinated surface, while soap-treated wooden surfaces add warmth and texture.

The house’s exterior reflects a commitment to breathable construction, with vapor retarders and wind barriers made from wood fiber. Blown-in wood fiber insulation provides effective thermal performance while maintaining ecological sensitivity. Linseed-oiled spruce clads the facades, and spruce boards with roofing felt complete the roof, further enhancing the building's natural aesthetic.

A Model for Future Sustainable Homes
The House Between the Trees by Peter Kjær Arkitekter is a benchmark for sustainable wooden house design. By reducing reliance on concrete, utilizing biogenic materials, and embracing natural light, the house minimizes its environmental footprint while providing a comfortable, functional, and aesthetically pleasing living space. It showcases how architecture can respect and enhance its natural surroundings, setting a standard for future sustainable homes.







All Photographs are work of James Silverman
Popular Articles
Popular articles from the community
BICA Arquitectos Buries a Coastal Home in a Man-Made Dune on Portugal's Tróia Peninsula
A 300-square-meter house of timber, sand mortar, and travertine dissolves into the dune landscape it helped regenerate on the Alentejo coast.
Architects Group RAUM Stacks Offset White Volumes into a Compact Office Tower in Busan
A 524-square-meter building on a tight corner lot in Haeundae plays with sunlight rights and shifting floor plates to create generous terraces.
H&P Architects Stack a Vertical River of Brick and Greenery in Hanoi
A perforated terracotta tower in Dong Anh channels water, light, and air through eight staggered levels of domestic life.
boq architekti Fits a Gabled Family House onto a Tiny Moravian Hillside Plot with No Room for a Garden
A 115 square meter home in South Moravia trades a garden for a rooftop terrace and a fully glazed facade facing the village below.
Similar Reads
You might also enjoy these articles
Olio Towers: A Mid-Rise for Performers That Fuses Housing, Rehearsal, and Stage
Located blocks from Houston's Theater District, this modular tower stacks living units around a central performance atrium.
Oasis: Modular Green Housing Carved into Dhaka's Urban Fabric
A shortlisted Plugin Housing entry reclaims unauthorized settlements in Dhaka with stepped concrete volumes, green roofs, and ventilation-driven design.
Black Hole: A Floating Megastructure for the Post-Physical Era
Emiliano Mazzarotto envisions a spherical, self-scaling arena where e-sports, digital hotels, and holographic stadiums replace traditional public space.
Compact & Sustainable Living in Piraeus: A Four-Level Family Home Built Around Light and Air
A narrow townhouse in one of Greece's densest port cities uses a central atrium and passive strategies to house three generations under one roof.
Explore Architecture Competitions
Discover active competitions in this discipline
The International Standard for Design Portfolios
The Global Benchmark for Architecture Dissertation Awards
The Global Benchmark for Graduation Excellence
Challenge to reimagine the Iron Throne
Comments (0)
Please login or sign up to add comments
No comments yet. Be the first to comment!