TAOA 798 Studio: A Modern Office Renovation Design in Beijing
The article explores the transformation of the TAOA 798 Studio into a modern office space with an emphasis on design and nature.
The TAOA 798 Studio in Chaoyang District, Beijing, is a remarkable example of office renovation design, skillfully blending modern aesthetics with natural elements. This renovation transforms an old, neglected structure into a vibrant, contemporary workspace, tailored specifically to the needs of designers. The architects, TAOA, focused on creating an inspiring, comfortable, and functional office space that embraces simplicity and elegance while addressing the challenges of an aging building.




The Concept Behind the Office Renovation Design
The design team at TAOA began by working within the existing constraints of the building's scale and structure. The goal was to reimagine the space as a modern office while maintaining the integrity of the original steel frame. The core vision was to create a space that was compact, yet elegant, with a focus on natural light and connectivity to nature. Despite being surrounded by urban infrastructure, the team utilized the available space to infuse the building with vitality and functionality.






The Exterior: A Harmonious Blend with the Surroundings
One of the most striking features of the office renovation design is the building's exterior, which is wrapped in anodized aluminum plates. These plates are reflective and soft, providing a gentle interaction with the surrounding environment. The perforated design of the west-facing facade allows light to filter through while offering privacy from the adjacent building. This semi-transparent quality gives the building a modern yet understated presence, blending seamlessly with the uneven brick walls of the neighborhood.





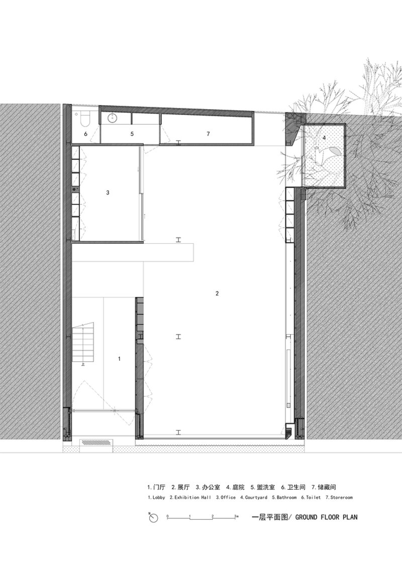
Interior Design and Space Functionality
The interior of the renovated office space is designed to foster creativity and collaboration. The three-story structure is organized to meet the different needs of the office environment. The first floor is dedicated to exhibition space, while the second floor serves as meeting and reception areas. The third floor is designed for individual workspaces. To enhance the connection between these levels, the design team removed part of the floor slab, creating an open foyer and vertical continuity.



As visitors move upwards, the space narrows and transitions, offering a sense of calm and clarity. The west-facing windows, stretching from the ground to the roof, allow natural light to flood the interior, providing a warm and inviting atmosphere. This design maximizes the use of natural resources, transforming the office into a bright and inspiring space.




Integrating Nature into the Office Design
One of the key features of the renovation is the integration of nature into the office space. The original building was squeezed between two neighboring structures, limiting natural light and outdoor access. However, during the demolition process, the team discovered a narrow gap between the buildings that was expanded into a small yard. A large, existing tree now serves as a focal point, bringing nature into the office environment.





To further enhance this connection to the outdoors, the design team added a balcony on the third floor, providing a serene space to relax under the tree. Additionally, the second floor was designed with a semi-outdoor terrace, offering employees a tranquil retreat from the daily hustle.




A Space for Creativity and Innovation
The renovated TAOA 798 Studio stands as a testament to the power of thoughtful office renovation design. By focusing on natural light, simplicity, and connectivity to nature, the design team has created a unique workspace that inspires creativity and fosters collaboration. This project highlights how architecture can breathe new life into an old structure while meeting the demands of a modern office.






Popular Articles
Popular articles from the community
Free Architecture Competitions You Can Enter Right Now
No entry fees, real prizes. Here are the best free architecture competitions open for submissions in 2026.
Gads Hill Early Learning Center by JGMA: Adaptive Reuse Shaping Community-Focused Educational Architecture
Adaptive reuse transforms fragmented structure into vibrant early learning center with playful façade, natural light, and community-focused sustainable design.
Alton Cliff House: A Harmonious Retreat by f2a Architecture in Lake Country, Canada
Alton Cliff House blends corten steel, prefabrication, and sustainable design, creating a luxurious, energy-efficient retreat perched on Canadian cliffs.
Solar Steam: A Climate-Responsive Architecture That Redefines the Monument
A climate-responsive memorial architecture that transforms heat, decay, and time into a living system reflecting humanity’s ecological impact.
Similar Reads
You might also enjoy these articles
The Ken Roberts Memorial Delineation Competition (Krob)
As the most senior architectural drawing competition currently in operation anywhere in the world, it draws hundreds of entries each year, awarding the very best submissions in a series of medium-based categories.
Waterfront Redevelopment and Urban Revitalization in Mumbai: Forging a New Dawn for Darukhana
A transformative waterfront redevelopment project reimagining Darukhana’s shipbreaking heritage into an inclusive urban future.
OUT-OF-MAP: A Call for Postcards on Feminist Narratives of Public Space
Rhizoma Design and Research Lab invites artists, designers, architects, researchers, and students to reflect on how feminist perspectives can reshape public space. Selected works will be exhibited in Barcelona, October 2026. Submissions open until 15 April 2026.
Documentation Work on Buddhist Wooden Temple
Architectural syncretism and cultural hybridity: A comparative study of the Buddhist temples in Chattogram Hill tracks
Explore Architecture Competitions
Discover active competitions in this discipline
The International Standard for Design Portfolios
The Global Benchmark for Architecture Dissertation Awards
The Global Benchmark for Graduation Excellence
Challenge to reimagine the Iron Throne
Comments (0)
Please login or sign up to add comments
No comments yet. Be the first to comment!