Terra Firma: A Beacon of Sustainable Urban Architecture in Africa
This article delves into Terra Firma, an architectural project in Ghana that reshapes sustainable urban living in Africa.
A New Vision for Bolgatanga, Ghana
Nestled a mere stone's throw from the pulsating heart of Bolgatanga, Ghana, the Terra Firma project stands as a testament to the future of sustainable urban architecture in Africa. This runner-up entry from Earth Made, crafted by the visionary minds of Robert Holton and Declan Wilkerson, is not merely an architectural endeavor but a bold statement in community inclusion and innovative design.

Integrating Live/Work Clusters for Community Cohesion
Embracing the Existing Urban Fabric
Terra Firma’s ethos is woven into the very tapestry of its surroundings, merging seamlessly with the live/work clusters that dot the landscape. By incorporating these communal patterns into its design, Terra Firma offers a unique and complementary space that is open to all, extending a warm embrace to current residents and future inhabitants alike.

A Closer Look at the Site and Building Roof Plan
The thoughtful segmentation into four distinct structures promotes movement, porosity, and connectivity, transforming the original massing into a breathable and interactive space.

Cluster Analysis: The Blueprint of Community
Cluster A to D: Diagramming Community Interactions
The community-centric design of Terra Firma is captured in clusters A through D, each a microcosm of Bolgatanga's spirit. These clusters, composed of houses, shops, and marketplaces, are the lifeblood of the community, fostering a self-sustaining ecosystem that thrives on interaction and exchange.

The Conceptual Massing Diagram: A Community Tapestry
In Bolgatanga, community means everything. Terra Firma’s design reflects this philosophy, creating spaces where residents can gather, trade, and connect with their agrarian roots, further solidifying its role as a beacon of sustainable urban architecture in Africa.

Architectural Plans and Sections: A Story in Every Layer
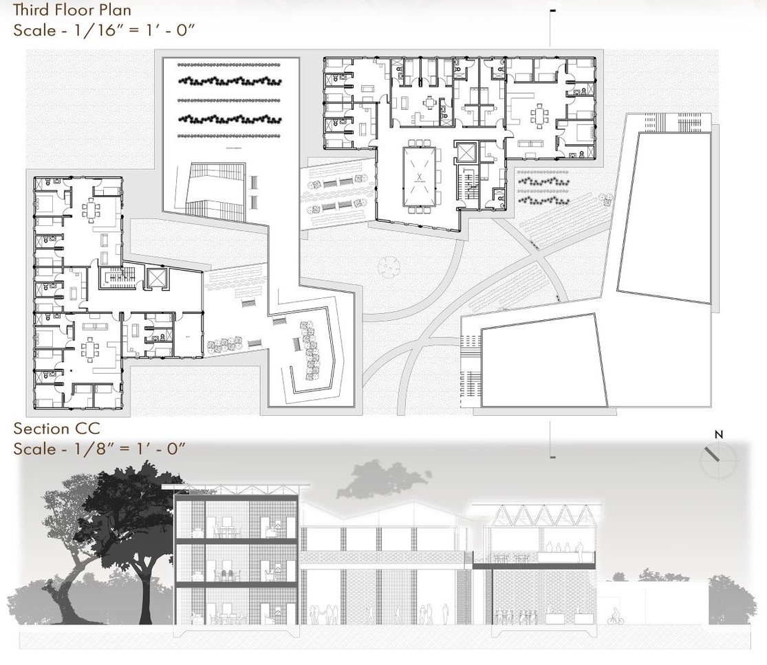
From Ground to Sky: The Plans of Terra Firma
Each floor of Terra Firma tells a tale of community and interaction. The designs are meticulously planned to offer communal spaces for gardening, recreation, and social gatherings, with pathways that carve individual sections for various activities.
Cross-Sections: The Anatomy of Sustainable Design
The cross-sections reveal the ingenuity behind Terra Firma’s sustainable design, showcasing the open voids that promote air circulation and natural light, essential features in the sustainable urban architecture in Africa.

The Heart of Terra Firma: Sustainable Practices and Community Spaces
Sustainable Building Techniques: The CEB Production Process
Terra Firma employs a structural system that integrates Compressed Earth Blocks (CEBs) with concrete, marrying traditional building methods with modern engineering. This not only enhances the structure's sustainability but also roots it deeply in local building practices.
The Fabric of Life: Apartment Types and Communal Areas
The project features a variety of apartment types, each equipped with essential amenities and designed to foster community engagement. The rooftop communal areas serve as urban oases, accessible via monumental staircases or pedestrian ramps, symbolizing the interconnectedness that is the hallmark of sustainable urban architecture in Africa.
Terra Firma is more than just a physical space; it's a forward-thinking solution that redefines the live/work cluster model for urban Africa. It stands as a pioneering project in sustainable urban architecture in Africa, paving the way for future developments that are deeply integrated with their communities, respectful of their environments, and vibrant in their execution.

Popular Articles
Popular articles from the community
An Miên Lumière Cafe by xưởng xép, Ho Chi Minh City, Vietnam
An industrial-inspired café where layered steel and warm light create a dynamic, immersive environment shaped by reflection, depth, and perception.
A Contemporary Take on Iranian Residential Architecture
A modern interior design in Mashhad that reinterprets brick, light, and spatial flow to create a warm, contemporary residential architecture.
Atelier Macri Concept Store Interior Design by CASE-REAL
Atelier Macri store features a "ko" counter, walnut wood details, cork displays, blending retail, gallery, and seamless customer experiences.
Inverted Architecture Installation by Studio Link-Arc: Exploring the Intersection of Architecture and Living Organisms
Inverted Architecture Installation by Studio Link-Arc blends mycelium, sustainability, inverted design, ecological cycles, and urban adaptive architecture in Shenzhen.
Similar Reads
You might also enjoy these articles
The Ken Roberts Memorial Delineation Competition (Krob)
As the most senior architectural drawing competition currently in operation anywhere in the world, it draws hundreds of entries each year, awarding the very best submissions in a series of medium-based categories.
A Contemporary Take on Iranian Residential Architecture
A modern interior design in Mashhad that reinterprets brick, light, and spatial flow to create a warm, contemporary residential architecture.
Franche-Comté Advanced School of Engineering by Dominique Coulon & associés, Besançon
A flexible engineering school immersed in woodland, combining concrete minimalism, adaptable spaces, and natural light to support evolving educational environments.
Documentation Work on Buddhist Wooden Temple
Architectural syncretism and cultural hybridity: A comparative study of the Buddhist temples in Chattogram Hill tracks
Explore Conceptual Architecture Competitions
Discover active competitions in this discipline
Comments (0)
Please login or sign up to add comments
No comments yet. Be the first to comment!