The Art of Transformation: A Deep Dive into the "House of Trusses" by Rocco Arquitetos
Exploring the transformative renovation of a Brazilian residence, "House of Trusses" by Rocco Arquitetos, through design ingenuity.
In the heart of Ibiúna, Brazil, the "House of Trusses" by Rocco Arquitetos stands as a testament to the power of architectural renovation. This project, which transformed a modest country residence into a striking example of design and functionality, offers a compelling narrative on how architectural ingenuity can redefine living spaces. Giancarlo Rocco, the lead architect, navigated through budget constraints and client demands with a creative approach that not only met but exceeded expectations.


The Essence of Architectural Renovation
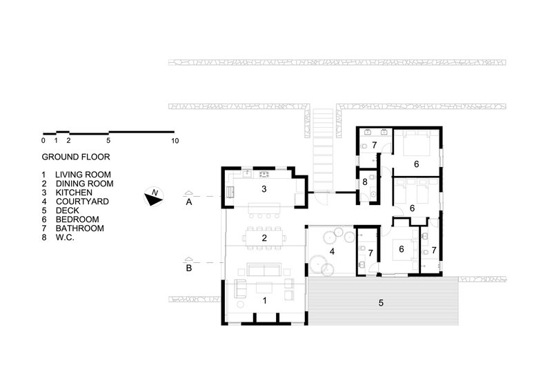
The "House of Trusses" project is an embodiment of architectural renovation at its finest. The clients' primary needs were straightforward: a fluid, open space with three suites, an upgrade from the original layout of three bedrooms with only one suite. This requirement set the stage for a dramatic reconfiguration of the home's interior architecture.


Strategic Design Decisions
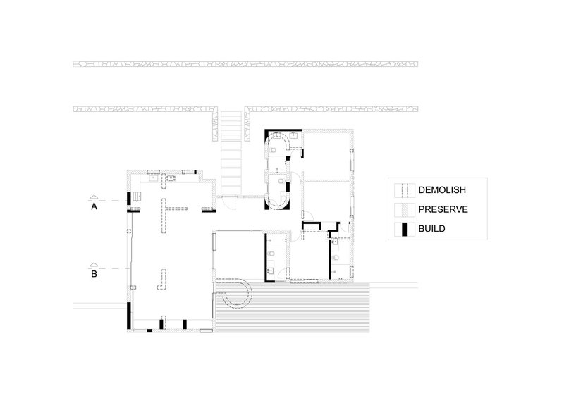
Rocco Arquitetos took a bold step by demolishing internal masonry to merge the living room, kitchen, and balcony into a single, expansive area. This decision facilitated a seamless flow between common areas, enhancing the home's sense of openness and connectivity. The kitchen, now at one end of the space, was expanded to accommodate a gas barbecue, while a fireplace at the opposite end doubled as a television stand. The centerpiece of this transformed space is the dining table, symbolizing the heart of communal living.


Navigating Structural Challenges
The renovation posed significant structural challenges, particularly regarding the support beams of the slab and roof. The ingenious solution was to remove the slab entirely, revealing and elevating the beautiful wooden trusses that now define the home's aesthetic. This not only addressed the structural issues but also created an architectural feature that adds character and history to the residence.


Enhancing Connection with Nature
The design incorporated large sliding doors opening to the garden, blurring the lines between indoor and outdoor spaces. A wooden deck on the opposite side serves as a bridge between the living area and bedrooms, further emphasizing the home's integration with its natural surroundings.

A Model for Future Renovations
The "House of Trusses" by Rocco Arquitetos is a prime example of how architectural renovation can breathe new life into existing structures. Through strategic design and structural ingenuity, this project has transformed a simple country residence into a modern, functional, and aesthetically pleasing home. It stands as a model for future renovations, demonstrating that with creativity and understanding of architectural principles, any space can be reimagined and revitalized.
In the realm of architecture and design, the "House of Trusses" project by Rocco Arquitetos underscores the transformative power of architectural renovation. This case study not only serves as inspiration for architects and designers but also for homeowners looking to reimagine their spaces. As we continue to explore the potential of renovation in the architectural field, projects like this remind us of the endless possibilities that lie in the thoughtful reconfiguration of existing structures.



All photographs are work of Manuel Sá
Popular Articles
Popular articles from the community
Fausto Terán and Toro Fuse Japanese Craft with Mexican Tradition in a Lakeside Retreat
Nakamura House pairs Shou-Sugi-Ban charred pine with handmade clay tile at the foot of Atlangatepec Lagoon in Mexico.
Ippolito Fleitz Group Identity Architects Turn Eight Floors in Shanghai into a Vertical Creative City
Publicis Groupe's new headquarters in Xintiandi reimagines the office as a courtyard-driven urban landscape stacked across eight floors.
Rojkind Arquitectos and Think Parametric Build a Glueless Pavilion from 67 Interlocking Panels
A serpentine fiber-cement installation in Chapultepec Park celebrates a decade of architectural media in Mexico City.
RDTH architekti Rips Out Nearly Every Wall in a Prague Apartment and Replaces Them with Furniture
A 101-square-meter post-war flat in Prague trades rigid partitions for a single rotated furniture block, curtains, and glass concrete.
Similar Reads
You might also enjoy these articles
Olio Towers: A Mid-Rise for Performers That Fuses Housing, Rehearsal, and Stage
Located blocks from Houston's Theater District, this modular tower stacks living units around a central performance atrium.
Oasis: Modular Green Housing Carved into Dhaka's Urban Fabric
A shortlisted Plugin Housing entry reclaims unauthorized settlements in Dhaka with stepped concrete volumes, green roofs, and ventilation-driven design.
Black Hole: A Floating Megastructure for the Post-Physical Era
Emiliano Mazzarotto envisions a spherical, self-scaling arena where e-sports, digital hotels, and holographic stadiums replace traditional public space.
Compact & Sustainable Living in Piraeus: A Four-Level Family Home Built Around Light and Air
A narrow townhouse in one of Greece's densest port cities uses a central atrium and passive strategies to house three generations under one roof.
Explore Architecture Competitions
Discover active competitions in this discipline
The International Standard for Design Portfolios
The Global Benchmark for Architecture Dissertation Awards
The Global Benchmark for Graduation Excellence
Challenge to design luxury tourism on rails
Comments (0)
Please login or sign up to add comments
No comments yet. Be the first to comment!