The Faba Restaurant
Basic information: Land area: 2013m2 Usable area: 1403,9m2 Biologically active surface: 1440,9m2 Number of places for guests: 87
Admission
The Faba restaurant was created with accommodations for guests of any age. We wanted to create a pleasant place that would be conducive to spending time together with the family and tailored to different needs of guests. In the project, we paid special attention to the human-nature relationship and its impact on human body. The story of Jack and the Magic Beans was also an important aspect, as we felt extremely inspired with the young hero's climbing over the plant and the way he experienced the space from that perspective.
Building
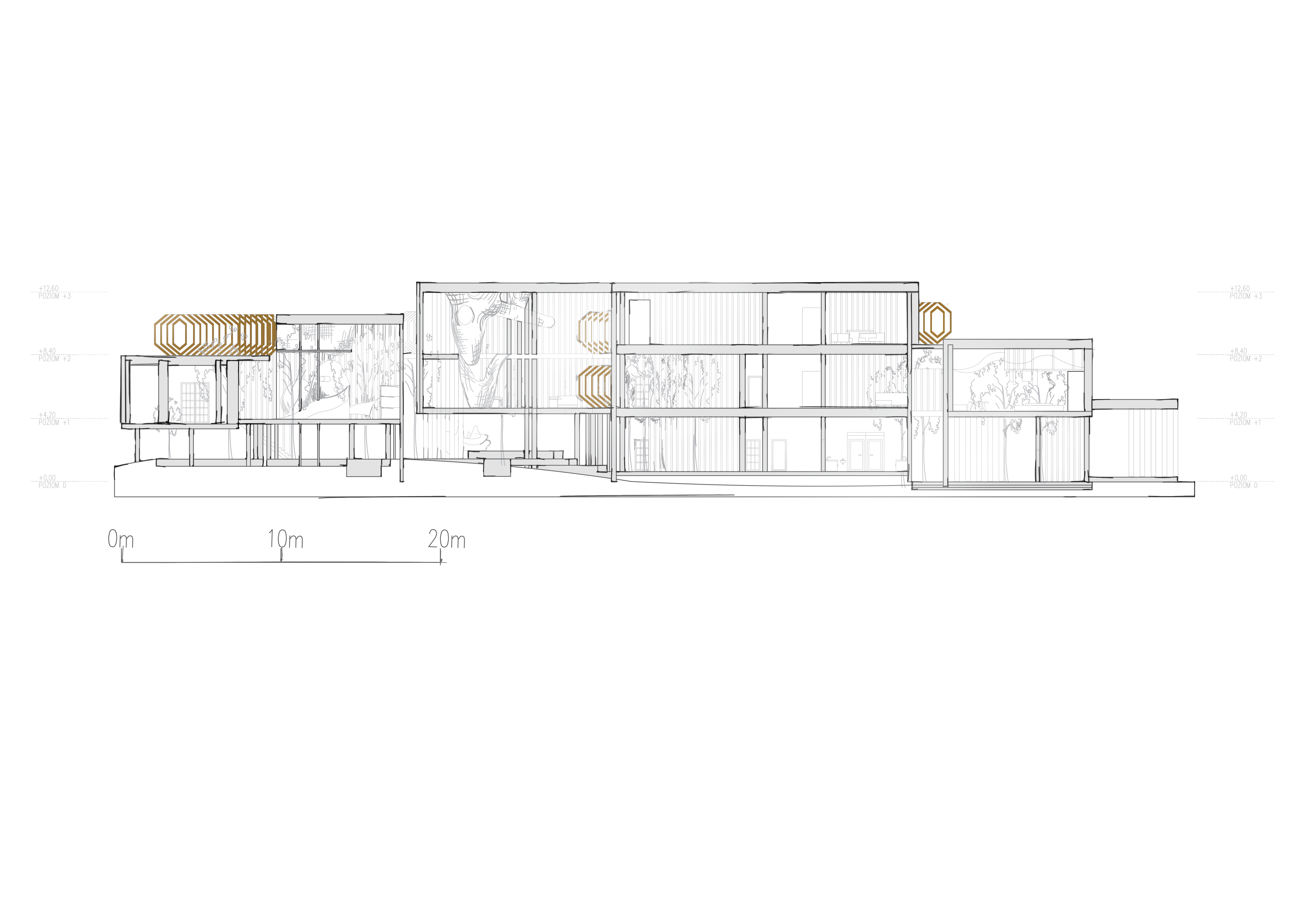
Our building consists of 7 independent buildings connected with each other by a communication route. Each object is triangular in shape with rounded corners, symbolizing the bean leaves. These triangles combine various functions which we have divided into categories, corresponding to various human needs: eating, drinking, playing, resting, communing with art and sanitary needs.
At the beginning, we decided to partially open the ground floor to provide a free garden space for guests. We noticed that there is a lack of greenery in the area which has a relaxing effect on us. Our solution to this problem was to raise the ground floor to the second floor. We wanted to achieve a micro park located in the middle of a highly urbanized part of the city. In our garden there are places to sit among flowering plants, which attract butterflies. We wanted this space to influence several human senses at the same time, so that guests could easily relax and rest surrounded by nature.
The main building is a restaurant where the need for food can be fulfilled. The property is on the ground and has an entrance from the south. An interesting element of the design is the spacious staircase arranged around the elevator that leads to the higher floors of the restaurant. Around it, we placed beans that fall around like a vine, creating an eye-catching structure. On the second and third floor there are seats for guests . The other buildings can be accessed from the upper storeys.
Another element of the establishment is the bar, a building located in the north-eastern part of the plot. The structure lays on the ground. On the first floor, we have included a place for deliveries and cellar , and on the second floor, a bar connected by a delivery elevator to the ground floor to facilitate the delivery of drinks. You can get to the bar from the restaurant or directly from the street by taking the staircase.
Noteworthy is also a small art gallery, located in the eastern part of the plot. It responds to the need for human contact with art and serves to promote ecological solutions in San Francisco. In the center of the building, we decided to place a tree to symbolize the unity of human with nature. The gallery is located on the eastern side of the street.
The building located in the south-eastern part of the plot serves as a covered terrace and is intended primarily for relaxation. Guests can go there to rest, drink coffee and read books, as we have placed a small library in the central part. We designed this triangle for people who need a quiet space and comfortable furniture on which they can easily rest.
Two buildings to the west of the restaurant are places designed for families with children, and they are responding to the need for fun. Both buildings are elevated to second floor and have the form of roofed terraces. There is a playground with a climbing wall and a net so that children can climb like fairy tale characters . There were also other symbols related to the story of Jack, namely golden eggs, which serve as a playhouse for the youngest. Trees, which play a structural and decorative role, pass through the terraces.
The facade of the restaurant was designed with glass and wood structures in mind.
Sanitary facilities
The main toilets are located in the restaurant building, and are also located on each floor. In addition, we designed a small toilet in the last building, located in the western part of the plot, so that parents with children on the playground have a shorter route to the sanitary facilities.
Communication line
Undoubtedly, an important role in the project is played by the communication route, which is the "stem" connecting all the buildings. Thanks to it, there is a possibility of easy and quick communication between all objects. We designed it with wood and glass in mind so that passersby could feel as if they were walking on a real stalk.
End
Faba is a unique restaurant that enriches the image of San Francisco and meets the needs of different guests. We wanted the walk around the building to be a journey similar to Jack’s from “Jack and the Beanstalk” fairy tale, enriched by contact with nature. This contact, especially in today's times of isolation, is extremely important, therefore, in our building greenery is in the foreground and appears both outside and inside the building, thus blurring the boundary of the two zones delineated by ceilings and walls.
Popular Articles
Popular articles from the community
Fifth NRE Jazz Club – De Bever Architecten: Eindhoven’s Revitalized Cultural Hub
Historic gas factory transformed into Fifth NRE Jazz Club blending modern sustainability, jazz culture, dining, and heritage architecture seamlessly.
On the Brooks House by Monsoon Collective – A Contemporary Kerala Home Rooted in Tradition
Kerala home blending tradition and modernity with water-inspired design, brick architecture, courtyard planning, and sustainable rainwater harvesting strategies.
Gads Hill Early Learning Center by JGMA: Adaptive Reuse Shaping Community-Focused Educational Architecture
Adaptive reuse transforms fragmented structure into vibrant early learning center with playful façade, natural light, and community-focused sustainable design.
The Ken Roberts Memorial Delineation Competition (Krob)
As the most senior architectural drawing competition currently in operation anywhere in the world, it draws hundreds of entries each year, awarding the very best submissions in a series of medium-based categories.
Similar Reads
You might also enjoy these articles
Converge Hub – A Human-Centered and Sustainable Mobility Hub at the Urban Edge
Its open and permeable design promotes sustainable movement through walkable connections, green axes, and integrated public transport
51st Annual KRob - Ken Roberts Memorial Delineation Competition
Join us in celebrating 51 years in excellence in architectural representation! With $2,400 in prize money awarded across 8 categories, this prompt-less competition is accessible to all!
Explore Cultural Architecture Competitions
Discover active competitions in this discipline
The Global Benchmark for Architecture Dissertation Awards
The Global Benchmark for Graduation Excellence
Challenge to design an urban locus of culture and heritage
Bring back Drive In's








Comments (0)
Please login or sign up to add comments
No comments yet. Be the first to comment!