Studio Archohm Plants a Corrugated Metal A-Frame on an Indian Hilltop Overlooking the Ganges
A monsoon-ready cabin in Uttarakhand strips domesticity down to pitched steel, timber, and triangular frames trained on the river below.
Most retreats marketed as "in harmony with nature" amount to a glass box dropped on a scenic site. The Monsoon Cabin by Studio Archohm is a different proposition: a steeply gabled A-frame in Uttarakhand, India, that takes its cues from the agrarian rooflines of the region and the relentless rains that define its climate. Perched on a hilltop plot above a bend in the river, the cabin is simultaneously modest in footprint and assertive in silhouette, its corrugated metal skin slicing upward through the tree canopy like a blade set on edge.
What makes the project genuinely interesting is the way the A-frame section is not treated as a nostalgic gesture but as a piece of environmental logic. The steep pitch sheds monsoon water efficiently. The corrugated metal cladding, used on both the exterior shell and the interior walls, is cheap, locally available, and resilient to humidity. And the triangular gable ends are punched open with full-height glazing that frames the surrounding landscape as though it were a viewfinder. The cabin is small, deliberately so, and every decision reads as a response to site, weather, or material economy rather than style.
Siting and Silhouette


From the air, the relationship between the cabin and its terrain is legible at a glance. The building sits on a hilltop clearing surrounded by mature trees, with green farmland rolling away toward a river bend. The footprint is compact and linear, stretched along the ridge so that both gable ends catch views downhill. There is no sprawling terrace, no infinity pool, no performative landscape intervention. The site does the heavy lifting, and the architecture has the good sense to occupy as little of it as possible.
The silhouette is the project's calling card. The steeply pitched roof drops almost to the ground on both sides, creating a form that reads more as tent or origami fold than conventional house. At dusk, the glazed ground floor glows beneath the dark pitched volume, giving the impression that the roof is hovering above the landscape on a band of light.
The Glazed Gable and Triangular Frames


The triangular window walls at each gable end are the cabin's most distinctive architectural move. They function as enormous picture frames trained on the surrounding hillside and lake, their geometry dictated directly by the roof pitch. Looking out from inside, the converging lines of the frame compress and intensify the view, turning a generic panorama into a composed scene. Under overcast monsoon skies, the effect is cinematic: grey light filtering through low clouds, the landscape muted and soft.
From the outside, particularly at dusk, the glazed gable transforms the cabin into a lantern. The interior timber and warm artificial light glow through the triangular aperture, marking the building's presence on the hilltop without relying on scale or material extravagance.
Corrugated Metal as Interior Language



Studio Archohm makes no effort to hide the corrugated metal once you step inside. It lines walls and ceilings, its ribbed texture providing visual rhythm and a tactile quality that many architects would sand away in favor of something smoother. The material is paired with tongue-and-groove timber planks on ceilings and warm wood for stairs, shelving, and furniture, creating a palette that is industrial without being cold.
The open-plan living space on the ground floor exemplifies this approach. A cantilevered timber stair rises against a corrugated metal wall, while a black spiral staircase provides secondary vertical circulation. The bedroom upstairs continues the corrugated theme, its walls framing a black-framed window and a leather butterfly chair with the kind of studied informality that suggests every object was chosen for durability as much as comfort.
Inhabitable Edges


The A-frame section creates acute angles where roof meets floor, and the design wisely converts these otherwise dead zones into inhabitable nooks. A timber-lined window seat with built-in shelving occupies one such edge, flanked by full-height glazing overlooking the green hillside. At the opposite gable, another triangular window seat is tucked under the converging roof planes, providing a reading spot that feels sheltered yet visually open.
These moments are where the cabin is at its most persuasive. Rather than fighting the geometry of the pitched roof, the interiors lean into it, producing spaces with a low, enveloping quality that a conventional rectangular room could never achieve. It is a reminder that section, not plan, is often the more powerful generator of domestic atmosphere.
Kitchen, Dining, and the Ground Floor Loop


The dining area occupies the heart of the ground floor, anchored by a timber table and benches set on a black tile floor beside the timber stair. The material shift underfoot, from timber to tile, quietly marks the transition between social and private zones. The kitchen sits nearby in the linear plan, and the whole ground level reads as a single flowing space rather than a sequence of rooms.
Even the bathroom gets the triangular window treatment, with a ribbed metal ceiling overhead and a round soaking tub positioned to look out at the forest. It is a small touch, but it reinforces the cabin's central thesis: that the pitched roof section is not merely a structural choice but a spatial strategy applied consistently from living room to bathtub.
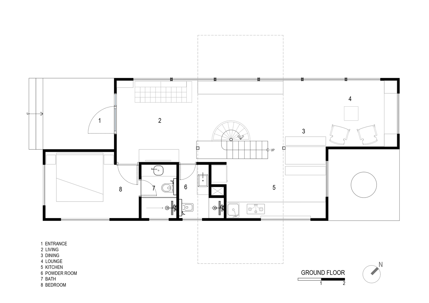
Plans and Drawings


The ground floor plan reveals the cabin's linear organization: entrance, living area, kitchen, and bedroom are arranged end to end within the narrow footprint, with the glazed gable ends anchoring each terminus. The first floor plan is even more compressed, housing a spiral stair, bathroom, and the circular tub within a sliver of usable area beneath the converging roof planes. Together, the drawings confirm what the photographs suggest: this is a building whose plan is subservient to its section, the steep pitch governing everything from room proportion to furniture placement.
Why This Project Matters
The Monsoon Cabin succeeds because it treats constraint as a design engine rather than an obstacle. The monsoon climate demands steep pitches and resilient cladding; the hilltop site demands a light footprint; the budget demands locally sourced, low-maintenance materials. Studio Archohm converts each of these pressures into an architectural decision that shapes the experience of the building from the inside out. The corrugated metal, the triangular windows, the inhabitable roof edges: none of these read as compromises.
In a market saturated with luxury retreats that impose a generic modernist vocabulary on any landscape that holds still long enough, the Monsoon Cabin offers a counter-model. It takes a regional building type, the pitched-roof agrarian shelter, and refines it with contemporary precision without stripping away the qualities that made it appropriate in the first place. The result is a cabin that feels both new and deeply rooted, a small building that punches well above its weight.
The Monsoon Cabin by Studio Archohm. Location: Uttarakhand, India. Category: Residential, Retreat. Studio: Studio Archohm.
About the Studio
Studio Archohm
Official website of Studio Archohm, one of the studios behind this project.
archohm.comShare Your Own Work on uni.xyz
If projects like this are the kind of work you want to make, uni.xyz is a place to publish your own, find collaborators, and enter design competitions.
Popular Articles
Popular articles from the community
TGK Nirasaki Plant: A Smart Factory Blending Technology, Landscape, and Wellness
Smart factory in Japan blending IoT manufacturing, scenic trail design, natural ventilation, and landscape integration to enhance user experience and sustainability.
Rede Arquitetos Builds an Open-Air School in Fortaleza That Doubles as a Neighborhood Living Room
Educar II SESC-CE folds sports, dance, and community gathering into a courtyard campus wrapped in mesh and tropical color.
Split House: A Compact Urban Home Blending Privacy, Light, and Flexible Living in Japan
Compact Japanese home featuring DOMA space, flexible café potential, passive lighting, privacy zoning, and sustainable urban living design.
Similar Reads
You might also enjoy these articles
Bamboo Housing Challenge 2026: Design Affordable, Sustainable Homes Using Bamboo
An international design competition by Bamboo U and IBUKU inviting architects and designers to reimagine affordable housing using bamboo — with the winning design built full-scale in Bali.
Computational Design & Education: Beegraphy Design Awards Introduces 7th Category (Featuring Jiyun's Innovative Approach)
Dive into Beegraphy’s 7th Design Awards category, where computational design meets education to create immersive, interactive learning tools, inspired by Jiyun’s work.
From Parametric Lighting to Urban Furniture: Join the 2nd Workshop in Beegraphy’s Computational Design Series
Dive into Cutting-Edge Design Techniques and Practical Applications with Industry Experts
Explore Architecture Competitions
Discover active competitions in this discipline
The International Standard for Design Portfolios
The Global Benchmark for Architecture Dissertation Awards
The Global Benchmark for Graduation Excellence
Challenge to reimagine the Iron Throne
Comments (0)
Please login or sign up to add comments
No comments yet. Be the first to comment!