Tianyuhe Rural Design Center: A Model of Rural Revitalization through Design
Exploring the Tianyuhe Rural Design Center by FARchitect, a model of sustainable architecture driving rural revitalization in Xi'an, China.
In the embrace of Xi'an's verdant expanses, the Tianyuhe Rural Design Center stands as a testament to the transformative power of architecture in rural revitalization. Conceived by FARchitect, this 450 m² marvel not only redefines the rural architectural vernacular but also serves as a beacon of innovation and cultural exchange. This article, inspired by the eloquence of Hugh Pearman, delves into the essence of the Tianyuhe Rural Design Center, exploring its role as a catalyst in the national rural revitalization policy and its profound impact on the local community and beyond.




The Genesis of the Tianyuhe Rural Design Center
The journey of the Tianyuhe Rural Design Center began in 2020, with FARchitect at the helm of the Tianyuhe Village landscape beautification project. The project's inception was spurred by the national rural revitalization policy, leading to the transformation of idle rural homesteads into a quartet of "Craftsman's Houses," including a rural restaurant, a traditional Chinese culture museum, a design center, and a homestay college. FARchitect's deep engagement with the community and their innovative approach to rural design culminated in the establishment of the Rural Design Center, marking a new chapter in the village's narrative.










Architectural Philosophy and Spatial Harmony
Nestled in the mountains, the Design Center is a masterclass in respecting and enhancing its natural surroundings. The architectural strategy focused on maintaining a harmonious dialogue with the majestic landscape, adhering to strict environmental regulations while showcasing a distinct identity. The use of demolished old blue bricks not only pays homage to the local vernacular but also integrates the structure seamlessly into the terrain, making it an artificial extension of the natural landscape.





A Confluence of Functionality and Aesthetics
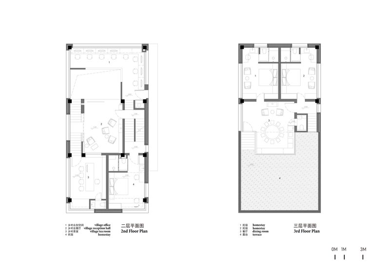
The Design Center embodies a dual function: it is both a professional workspace for resident architects and a public art space that fosters community engagement and cultural dissemination. This blend of private and public realms is achieved through meticulous spatial planning, ensuring that each area serves its intended purpose without compromising on aesthetic or functional integrity. The result is a multifaceted facility that includes an art museum, a reception hall, and creative workspaces, all designed to empower the village through design and art.




Innovations in Materiality and Sustainability
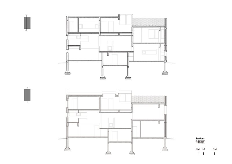
Addressing the climatic extremes of Tianyuhe Village, the Design Center employs innovative building materials and construction techniques to optimize thermal performance and sustainability. The strategic use of high-performance system windows and an XPS insulation layer, coupled with the thoughtful orientation of the building, exemplifies FARchitect's commitment to energy efficiency and environmental stewardship. This approach not only ensures the comfort of its inhabitants but also sets a benchmark for sustainable rural architecture.



Interior Design: A Reflection of Space and Place
The interior design of the Tianyuhe Rural Design Center transcends conventional aesthetics, focusing on the interplay between space, materiality, and light. Utilizing a palette of birch plywood, polished concrete, and strategic color contrasts, the interiors evoke a sense of calm and connection to the natural environment. This minimalist approach highlights the spatial dynamics of the center, inviting reflection and engagement with the architectural form and its surroundings.


The Aesthetics of Spatial Depth
The Tianyuhe Rural Design Center is not just an architectural project; it is an exploration of "Architectural Space Depth Aesthetics." The design creates a layered spatial experience, where the relationship between indoor and outdoor spaces, public and private realms, and the built environment and natural landscape is continuously redefined. This spatial depth fosters a unique aesthetic experience, allowing occupants to engage with the architecture and its environment in a profoundly personal and immersive way.






The Tianyuhe Rural Design Center by FARchitect stands as a paradigm of how architecture can play a pivotal role in rural revitalization. Through its thoughtful design, commitment to sustainability, and deep engagement with the community, the center serves as a model for future projects aimed at enhancing rural areas. This project not only revitalizes the physical landscape of Tianyuhe Village but also reinvigorates its cultural and social fabric, proving that architecture can indeed be a powerful tool for change and development in rural settings.






Popular Articles
Popular articles from the community
An Miên Lumière Cafe by xưởng xép, Ho Chi Minh City, Vietnam
An industrial-inspired café where layered steel and warm light create a dynamic, immersive environment shaped by reflection, depth, and perception.
A Contemporary Take on Iranian Residential Architecture
A modern interior design in Mashhad that reinterprets brick, light, and spatial flow to create a warm, contemporary residential architecture.
The Ken Roberts Memorial Delineation Competition (Krob)
As the most senior architectural drawing competition currently in operation anywhere in the world, it draws hundreds of entries each year, awarding the very best submissions in a series of medium-based categories.
Treehouse Apartment: A Warm Timber Interior Blending Craft, Play, and Contemporary Living
Warm timber apartment with integrated treehouse, combining natural materials, craftsmanship, and playful design to create a flexible, family-oriented living environment.
Similar Reads
You might also enjoy these articles
Top 15 Architecture Competitions to Enter in 2026
From student-friendly idea competitions to prestigious international awards, here are the best architecture competitions open for entries in 2026. Updated regularly.
DIY & Engineering in Computational Design : Enter the BeeGraphy Design Awards
Showcase Your Creativity with Computational Design and Open Source Projects

Innovative Design Solutions: Award-Winning Projects from Recent Architecture Competitions
Exploring award-winning architectural projects shaping the future of design, sustainability, and community.
Explore Architecture Competitions
Discover active competitions in this discipline
The International Standard for Design Portfolios
The Global Benchmark for Architecture Dissertation Awards
The Global Benchmark for Graduation Excellence
Challenge to design luxury tourism on rails
Comments (0)
Please login or sign up to add comments
No comments yet. Be the first to comment!