Timber High-Rise Architecture: Fyrtornet by Wingårdhs Redefines Malmö’s Skyline with Sustainable Innovation
This article explores Fyrtornet’s innovative timber high-rise architecture in Malmö, highlighting its sustainable design and community-focused approach.
Transforming Skylines with Timber High-Rise Architecture
Fyrtornet, designed by renowned Swedish architects Wingårdhs, is a landmark in timber high-rise architecture that reshapes the skyline of Malmö. Completed in 2024, this innovative structure is the tallest timber office building in Scandinavia, standing as a symbol of sustainable architectural progress. Located in the dynamic Hyllie Square, Fyrtornet is more than an architectural marvel; it is a meeting place for the community and a benchmark in ecological construction.




Urban Context and Symbolism
Fyrtornet holds strategic significance as the gateway to Malmö, greeting travelers arriving from continental Europe. Positioned as the final piece in the development of Hyllie Square, it completes the urban fabric while asserting itself as a contemporary landmark. The falu-red timber façade pays homage to Sweden’s architectural heritage while signaling a forward-looking commitment to sustainability.


The building is part of the Embassy of Sharing district, a progressive urban development aimed at fostering social interaction and environmentally responsible design. Fyrtornet epitomizes this vision by creating a seamless dialogue between architecture, public space, and community life.


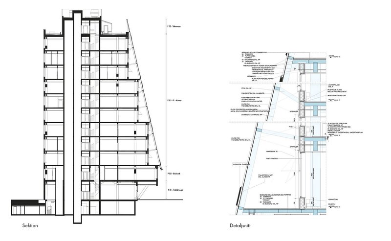
Architectural Form and Public Integration
The design of Fyrtornet is distinguished by its vertical expression and warm material palette. The structure rises with a timber frame, enveloped by contrasting façades. Two elevations are clad in red cedar shingles, evoking a traditional Nordic aesthetic, while the other two feature glass curtain walls that reflect the surrounding cityscape. This duality creates a visually dynamic presence, emphasizing both craftsmanship and modernity.


The ground floor acts as a public foyer and an extension of the urban realm. It invites residents and visitors into a welcoming living room environment, fostering social interaction. The recessed entrance and overhanging roof create a sheltered gathering space, enhancing the building’s accessibility. On the second floor, a district library offers reading spaces oriented toward Hyllie Square, serving as a quiet retreat within the bustling urban setting.


Above the public levels, office floors unfold with timber interiors that emphasize natural materials and daylight. Triple-height, glass-enclosed terraces punctuate the workspaces, introducing fresh air and panoramic views. At the summit, a rooftop garden opens up to sweeping vistas of the Öresund Strait, providing a tranquil escape for building occupants.


Timber Construction as a Sustainable Framework
Fyrtornet stands as a pioneering example of timber high-rise architecture in Scandinavia. The structural frame is constructed entirely from timber, drastically reducing the building’s carbon footprint compared to conventional concrete or steel high-rises. Timber construction not only contributes to sustainability but also fosters a warm and tactile environment, enhancing the well-being of occupants.


The cedar shingle façade further reinforces the ecological narrative, offering durability and natural weather resistance. Solar panels integrated into the glass surfaces optimize energy efficiency, while a geothermal system underpins the building’s heating and cooling infrastructure. These technologies converge to minimize environmental impact, positioning Fyrtornet as a model for climate-conscious architectural development.


Sustainability Beyond Structure
Fyrtornet’s commitment to sustainability extends beyond its timber frame. The design process prioritized resource efficiency and lifecycle considerations, ensuring that every component supports long-term environmental responsibility. The timber materials are sourced from responsibly managed forests, aligning with Sweden’s leadership in sustainable forestry.
The building’s orientation and façade design optimize solar gain and natural ventilation, reducing reliance on artificial systems. Indoor spaces emphasize biophilic design principles, integrating natural light, wood surfaces, and greenery to enhance user comfort. These elements collectively create a workspace that promotes productivity while reducing ecological strain.

Social Connectivity and Urban Activation
Fyrtornet transcends the traditional office tower by integrating civic and cultural functions. The public foyer, district library, and rooftop garden establish it as a multi-dimensional space that bridges work and leisure. These features foster a sense of community ownership, transforming the building into a social hub within the Embassy of Sharing district.
The interaction between indoor and outdoor spaces is carefully orchestrated. The ground-level plaza extends the public realm into the building, encouraging spontaneous encounters and cultural exchange. This blurring of boundaries exemplifies a new paradigm in timber high-rise architecture, where towers are not isolated structures but catalysts for urban vitality.

A Vision for Future Timber High-Rise Architecture
Fyrtornet exemplifies the potential of timber high-rise architecture to redefine urban development in the 21st century. Wingårdhs has crafted a building that balances aesthetic elegance, structural ingenuity, and environmental stewardship. As cities worldwide grapple with the challenges of climate change and urban density, Fyrtornet offers a compelling blueprint for the future.
The project demonstrates that high-rise construction can embrace timber as a primary material without compromising performance or design. It challenges preconceptions about skyscrapers, proving that verticality and sustainability can coexist harmoniously. Fyrtornet’s success will likely inspire further timber high-rise architecture across Scandinavia and beyond.

A New Icon in Sustainable Urban Design
Fyrtornet stands as a beacon of timber high-rise architecture, marking a new chapter in Malmö’s architectural evolution. Wingårdhs has delivered a project that celebrates timber as both a structural solution and a cultural statement. By intertwining sustainability, public engagement, and innovative design, Fyrtornet not only enriches the skyline but also redefines the role of high-rise buildings in shaping resilient and inclusive cities.

All Photographs are works of Wingårdhs
Popular Articles
Popular articles from the community
Atelier Macri Concept Store Interior Design by CASE-REAL
Atelier Macri store features a "ko" counter, walnut wood details, cork displays, blending retail, gallery, and seamless customer experiences.
Gads Hill Early Learning Center by JGMA: Adaptive Reuse Shaping Community-Focused Educational Architecture
Adaptive reuse transforms fragmented structure into vibrant early learning center with playful façade, natural light, and community-focused sustainable design.
Alton Cliff House: A Harmonious Retreat by f2a Architecture in Lake Country, Canada
Alton Cliff House blends corten steel, prefabrication, and sustainable design, creating a luxurious, energy-efficient retreat perched on Canadian cliffs.
Split House: A Compact Urban Home Blending Privacy, Light, and Flexible Living in Japan
Compact Japanese home featuring DOMA space, flexible café potential, passive lighting, privacy zoning, and sustainable urban living design.
Similar Reads
You might also enjoy these articles
The Ken Roberts Memorial Delineation Competition (Krob)
As the most senior architectural drawing competition currently in operation anywhere in the world, it draws hundreds of entries each year, awarding the very best submissions in a series of medium-based categories.
Waterfront Redevelopment and Urban Revitalization in Mumbai: Forging a New Dawn for Darukhana
A transformative waterfront redevelopment project reimagining Darukhana’s shipbreaking heritage into an inclusive urban future.
OUT-OF-MAP: A Call for Postcards on Feminist Narratives of Public Space
Rhizoma Design and Research Lab invites artists, designers, architects, researchers, and students to reflect on how feminist perspectives can reshape public space. Selected works will be exhibited in Barcelona, October 2026. Submissions open until 15 April 2026.
Documentation Work on Buddhist Wooden Temple
Architectural syncretism and cultural hybridity: A comparative study of the Buddhist temples in Chattogram Hill tracks
Explore Architecture Competitions
Discover active competitions in this discipline
The International Standard for Design Portfolios
The Global Benchmark for Architecture Dissertation Awards
The Global Benchmark for Graduation Excellence
Challenge to reimagine the Iron Throne
Comments (0)
Please login or sign up to add comments
No comments yet. Be the first to comment!