Tom Wood Flagship Store in Oslo by Specific Generic: A Brutalist Jewel in the Heart of Sentrum
Tom Wood's Oslo flagship blends minimalist design, sustainability, and modular innovation, redefining retail architecture through Scandinavian elegance and brutalist aesthetics.
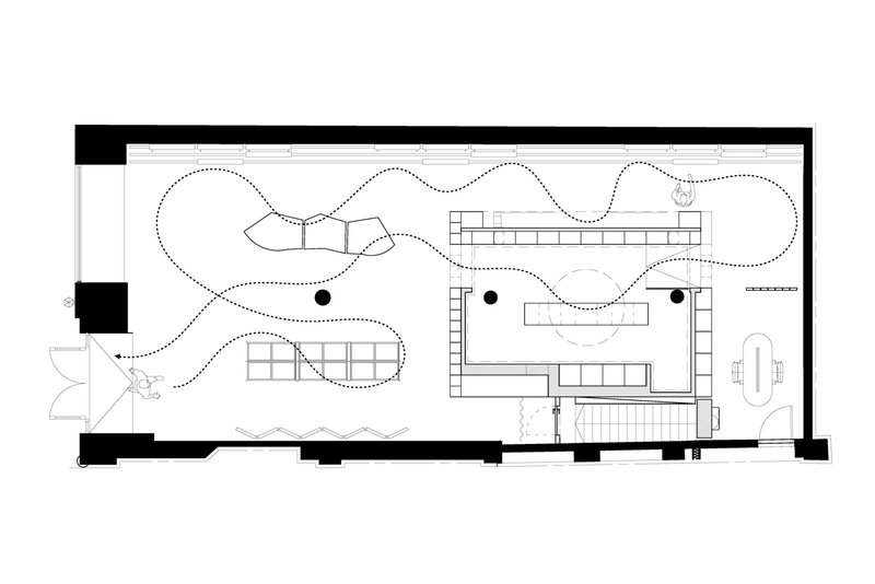
Celebrating a decade of bold innovation and Nordic elegance, Tom Wood has unveiled its newly reimagined flagship store in Oslo, designed in close collaboration with Stockholm-based architecture and design studio Specific Generic. Located in the heart of Sentrum, this 150 m² retail interior merges minimalist aesthetics, sustainable materials, and modular retail architecture to embody the core values of the Norwegian jewelry brand.


A Continuation of Creative Synergy
The Oslo flagship represents the continuation of a creative partnership that began in 2020 when Specific Generic first designed Tom Wood's original flagship. Now, working once again with Tom Wood’s Creative Director Mona Jensen and CEO Morten Isachsen, the design team has elevated the concept into a transformative spatial experience that transcends traditional retail environments.
This flagship is not just a store—it's an architectural expression of Tom Wood’s commitment to craftsmanship, contemporary design, and environmental consciousness. The new space reflects the evolution of the brand, uniting brutalist influences with the sleek sensibility of Scandinavian design.


Sustainability Meets Spatial Innovation
Sustainability is a foundational pillar of the flagship’s design. Durable and recyclable materials such as aluminum and steel define the physicality of the space, providing a long-lasting framework that is both environmentally responsible and aesthetically uncompromising. These materials align with Tom Wood’s ethos of sustainable luxury, ensuring that the architecture evolves with the brand’s future needs.
One of the most striking elements is the 18-meter-long flexible wall, composed of moveable cabinets, mirrors, and LED screens. This dynamic installation allows the store to effortlessly transition through seasonal displays, offering an adaptive interior solution that keeps the shopping experience fresh and forward-thinking.


A Personal and Immersive Customer Experience
Specific Generic approached the store’s layout with a nomadic and transformative mindset, enabling an intimate and customized customer journey. The spatial flow guides visitors through curated encounters with the brand’s signature jewelry pieces—each moment designed to be personal, reflective, and emotionally resonant.
Light and transparency play a vital role in the ambiance. Expansive windows and finely honed materials allow natural light to interact with the jewelry, while custom fixtures emphasize form and function without overwhelming the minimalist palette.


Celebrating Ten Years of Design Excellence
Opening in conjunction with Tom Wood’s 10th anniversary, the Oslo flagship is more than a retail store—it is a landmark of identity and innovation. It reaffirms the brand’s place in the global design and jewelry landscape, bridging architectural storytelling with meaningful product experiences.
“This store is not just a retail space; it’s a celebration of our brand’s journey, our commitment to artistic innovation, and our dedication to offering jewellery that becomes a part of people’s stories,” says Morten Isachsen, CEO of Tom Wood.
With photography by Einar Aslaksen, the space is documented with the same precision and visual clarity that defines the brand itself. From steel finishes to soft lighting, every element contributes to a retail environment that is sculptural, engaging, and timeless.
All Photographs are works of Einar Aslaksen..
Popular Articles
Popular articles from the community
H&P Architects Stack a Vertical River of Brick and Greenery in Hanoi
A perforated terracotta tower in Dong Anh channels water, light, and air through eight staggered levels of domestic life.
Studio Gram Unfurls a Concrete Curve Through an Adelaide Queen Anne Villa
In Rose Park, a billowing concrete threshold stitches a century-old house to a sun-chasing pavilion organized around an existing pool.
Paco Oria Estudio Rebuilds a 1949 Valencian Town House Around Timber, Terracotta, and a New Interior Patio
In Godella, Spain, a semi-detached house from the postwar era is stripped to its party walls and rebuilt with wood and ceramics.
20 Most Popular Furniture Design Projects of 2025
Modular street systems, parametric benches, and insect hotels: the furniture design projects that captivated architects on uni.xyz in 2025.
Similar Reads
You might also enjoy these articles
Olio Towers: A Mid-Rise for Performers That Fuses Housing, Rehearsal, and Stage
Located blocks from Houston's Theater District, this modular tower stacks living units around a central performance atrium.
Oasis: Modular Green Housing Carved into Dhaka's Urban Fabric
A shortlisted Plugin Housing entry reclaims unauthorized settlements in Dhaka with stepped concrete volumes, green roofs, and ventilation-driven design.
Black Hole: A Floating Megastructure for the Post-Physical Era
Emiliano Mazzarotto envisions a spherical, self-scaling arena where e-sports, digital hotels, and holographic stadiums replace traditional public space.
Compact & Sustainable Living in Piraeus: A Four-Level Family Home Built Around Light and Air
A narrow townhouse in one of Greece's densest port cities uses a central atrium and passive strategies to house three generations under one roof.
Explore Architecture Competitions
Discover active competitions in this discipline
The International Standard for Design Portfolios
The Global Benchmark for Architecture Dissertation Awards
The Global Benchmark for Graduation Excellence
Challenge to design luxury tourism on rails
Comments (0)
Please login or sign up to add comments
No comments yet. Be the first to comment!