Tourist Office Architecture: Link Architectes’ Subtle Intervention Beside Lyon’s Roman Aqueduct
A thoughtful architectural intervention by Link architectes, blending a new tourist office into the historic landscape of Chaponost.
A Modern Dialogue with History
In the heart of Chaponost, France, Link architectes has crafted a remarkable piece of tourist office architecture beside one of the region’s most impressive Roman remnants—the Gier aqueduct. Designed in 2024 and covering just 200 m², this project is more than a visitor center; it’s a delicate architectural response to a site layered with 2,000 years of history.



Nearly two millennia ago, Lugdunum—modern-day Lyon—relied on four major aqueducts to bring water from distant mountain ranges like Mont d'Or, Monts du Lyonnais, and the Pilat Massif. Among these, the Gier aqueduct stood out, stretching over 80 km and leaving behind the majestic alignment of 72 arches still visible at the Plat de l'Air site. This breathtaking archaeological landmark sets the stage for the new tourist office, which seeks not to compete but to harmonize with its monumental neighbor.



Architectural Vision Rooted in Landscape
Understanding the Roman aqueduct’s scale, technical ingenuity, and interaction with topography was central to the design. The site itself presents a dynamic terrain where the aqueduct transitions between aerial and buried forms, marking the start of the Yzeron valley siphon. Instead of mimicking the ancient structure, the design interprets and reimagines its principles, shaping the tourist office as a landscape intervention rather than a stand-alone building.

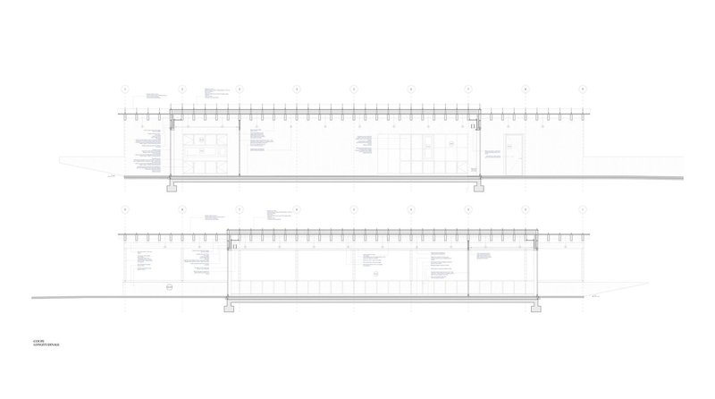
Integrating Layers of Functionality
The tourist office architecture is organized into three deliberate layers. The first layer situates parking areas and pathways, carefully separating them from the street while framing views toward the aqueduct. The second layer introduces the building, which sits lightly on the land, supported by a concrete retaining wall that resolves the slope. The third layer leaves the surrounding meadow open and untouched, preserving the integrity of the site.


At the heart of the project are two fundamental gestures: a continuous wall and a floating roof. The sandblasted, tinted concrete wall runs parallel to the aqueduct, establishing a platform that anchors parking and public services while threading through the building itself. It thickens in certain zones to house service functions, maximizing usable space in the limited footprint.

Blurring Boundaries Between Inside and Out
A standout feature of the design is its open and flowing interior. The reception, exhibition, and meeting areas share a unified, traversable space without wasting a single square meter on unnecessary circulation. The roof, supported by Douglas fir posts and beams, lightly hovers over the structure, extending outward to form a generous porch. This seamless transition between interior and exterior blurs conventional boundaries and welcomes visitors with warmth and openness.


Materiality in Resonance with History
Rather than recreate the aqueduct’s iconic arches, the architects chose to reinterpret its material language. Concrete, chosen for its versatility and durability, resonates with the stone, brick, and earth of the Roman ruin. The Douglas fir timber posts introduce a rhythmic lightness that gently echoes the cadence of the aqueduct’s arches without direct imitation. Exposed raw materials—tinted concrete, wood, and zinc—imbue the structure with an understated, timeless character.



Architectural Modesty and Landscape Sensitivity
The zinc roof quietly recedes into the landscape, reinforcing the project’s ethos of modesty and disappearance. By avoiding spectacle, the tourist office defers to the grandeur of the aqueduct, enhancing its presence rather than overshadowing it. The architecture embraces the landscape, aligning proportions and compositions to establish an attentive, respectful dialogue between past and present.


A Model of Contemporary Tourist Office Architecture
Link architectes’ tourist office in Chaponost exemplifies how tourist office architecture can become an act of place-making rather than monumentality. Through careful site integration, minimal yet expressive design moves, and a sensitive approach to materiality, the project creates an architectural framework that supports and celebrates its historical context. As a result, it stands as a thoughtful model for future interventions at heritage sites, showing how new architecture can honor and amplify the stories of the past.




All the photographs are works of Vladimir de Mollerat du Jeu
Popular Articles
Popular articles from the community
Marvila Apartment Renovation in Lisbon: A Bright Minimalist Attic Transformation by KEMA Studio
Bright attic transformed into minimalist Lisbon apartment with skylights, sustainable materials, open plan layout, and industrial-inspired interior design elements.
20 Most Popular Commercial Architecture Projects of 2025
From sustainable market concepts to heritage factories, the commercial buildings and proposals that drew the most attention on uni.xyz this year.
TGK Nirasaki Plant: A Smart Factory Blending Technology, Landscape, and Wellness
Smart factory in Japan blending IoT manufacturing, scenic trail design, natural ventilation, and landscape integration to enhance user experience and sustainability.
Similar Reads
You might also enjoy these articles
Bamboo Housing Challenge 2026: Design Affordable, Sustainable Homes Using Bamboo
An international design competition by Bamboo U and IBUKU inviting architects and designers to reimagine affordable housing using bamboo — with the winning design built full-scale in Bali.
Computational Design & Education: Beegraphy Design Awards Introduces 7th Category (Featuring Jiyun's Innovative Approach)
Dive into Beegraphy’s 7th Design Awards category, where computational design meets education to create immersive, interactive learning tools, inspired by Jiyun’s work.
From Parametric Lighting to Urban Furniture: Join the 2nd Workshop in Beegraphy’s Computational Design Series
Dive into Cutting-Edge Design Techniques and Practical Applications with Industry Experts
Explore Architecture Competitions
Discover active competitions in this discipline
The International Standard for Design Portfolios
The Global Benchmark for Architecture Dissertation Awards
The Global Benchmark for Graduation Excellence
Challenge to reimagine the Iron Throne
Comments (0)
Please login or sign up to add comments
No comments yet. Be the first to comment!