Traditional Cottage Design in Šumava: A Harmonious Blend of Nature and Architecture
This article explores the Cottage in Šumava, a traditional yet modern sustainable design blending architecture with natural surroundings.
The Context of Šumava National Park
Nestled in the pristine Šumava National Park in the Czech Republic, the Cottage in Šumava by Markéta Cajthamlová embraces the constraints and opportunities of its protected setting. Designed in collaboration with Petra Pelešková, the 185 m² cottage adheres to strict regulations on architectural forms while reflecting the natural beauty of its surroundings. By reinterpreting the traditional cottage design, this project achieves harmony between cultural heritage and contemporary living.





Architectural Form: Honoring Tradition
To integrate seamlessly into its environment, the cottage adopts the traditional shape typical of the Šumava region. Its significant width, gable roof with a half-hip, and protruding rizalit mirror the local building vernacular. The absence of fences and minimal landscaping emphasize the building's connection to the landscape, allowing the cottage to blend with its surroundings.



Large windows punctuate the structure, framing views of the Šumava saddle and nearby birch roots. These frameless openings are abstract nods to the Alpine Gallery, combining modern aesthetics with regional identity.



Material Palette: Sustainable and Local
The design incorporates materials inspired by local traditions. The facade is clad in dark-stained spruce boards, while the base and retaining walls are constructed with recycled stone sourced from the area. Full ventilation openings, reminiscent of green shutters often found in regional architecture, complement the sleek, frameless triple-glazed windows.



Inside, the structure employs the Novatop System of wooden panels, featuring visible spruce boards that create a warm, natural atmosphere. The ground floor is finished with black slate flooring, while the attic features Nordic spruce. Built-in furniture combines solid spruce and maple with black steel frames, balancing rustic and modern aesthetics.




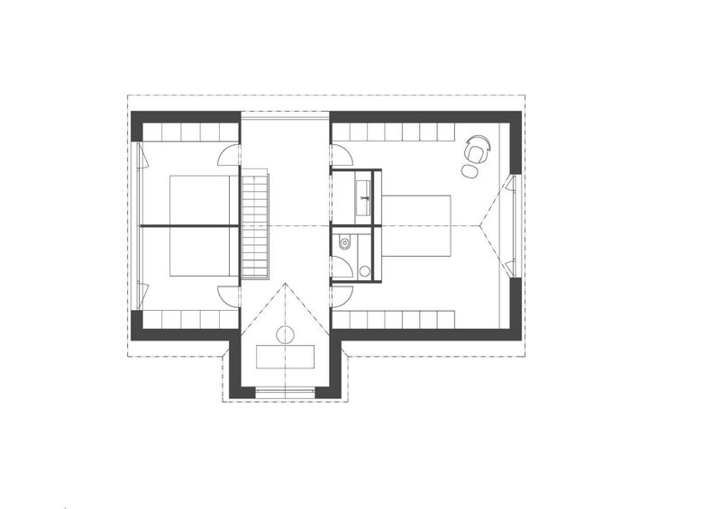
Interior Layout: Functional and Inviting
The cottage's layout is inspired by traditional country homes. Service areas, including the back door and utilities, are located on the north side, while the south-facing living spaces enjoy abundant natural light and stunning views. The living room features a central fireplace, providing a cozy focal point for gatherings.



The attic includes three bedrooms, a hall, and a bathroom, ensuring comfortable accommodations for residents and guests. The interiors are punctuated by a striking ash dining table, complemented by built-in furniture that reflects craftsmanship and functionality.



Sustainable Features: A Modern Touch
The cottage integrates modern sustainable technologies to reduce its environmental impact. Heating is provided by an air-water heat pump, and the property has its own well and sump. The roof, made of folded dark gray aluminum sheets, combines durability with visual cohesion.



These features ensure that the cottage not only honors traditional design but also meets the demands of sustainable living.


A Dialogue Between Past and Present
The Cottage in Šumava exemplifies how traditional architecture can be reinterpreted for contemporary needs. Its design respects the cultural heritage of the Šumava region while embracing modern functionality and sustainability.




By blending regional materials, thoughtful spatial layouts, and environmentally conscious technologies, the project demonstrates how architecture can foster a deeper connection between people and their environment.

This harmonious dialogue between past and present makes the Cottage in Šumava a timeless addition to the Šumava National Park landscape.





All Photographs are work of Petr Polák
Popular Articles
Popular articles from the community
Alton Cliff House: A Harmonious Retreat by f2a Architecture in Lake Country, Canada
Alton Cliff House blends corten steel, prefabrication, and sustainable design, creating a luxurious, energy-efficient retreat perched on Canadian cliffs.
TGK Nirasaki Plant: A Smart Factory Blending Technology, Landscape, and Wellness
Smart factory in Japan blending IoT manufacturing, scenic trail design, natural ventilation, and landscape integration to enhance user experience and sustainability.
Marvila Apartment Renovation in Lisbon: A Bright Minimalist Attic Transformation by KEMA Studio
Bright attic transformed into minimalist Lisbon apartment with skylights, sustainable materials, open plan layout, and industrial-inspired interior design elements.
Similar Reads
You might also enjoy these articles
Filtering Space: A Gradual Spatial Experience
From urban intensity to spatial calm.
The Ken Roberts Memorial Delineation Competition (Krob)
As the most senior architectural drawing competition currently in operation anywhere in the world, it draws hundreds of entries each year, awarding the very best submissions in a series of medium-based categories.
Waterfront Redevelopment and Urban Revitalization in Mumbai: Forging a New Dawn for Darukhana
A transformative waterfront redevelopment project reimagining Darukhana’s shipbreaking heritage into an inclusive urban future.
OUT-OF-MAP: A Call for Postcards on Feminist Narratives of Public Space
Rhizoma Design and Research Lab invites artists, designers, architects, researchers, and students to reflect on how feminist perspectives can reshape public space. Selected works will be exhibited in Barcelona, October 2026. Submissions open until 15 April 2026.
Explore Architecture Competitions
Discover active competitions in this discipline
The International Standard for Design Portfolios
The Global Benchmark for Architecture Dissertation Awards
The Global Benchmark for Graduation Excellence
Challenge to reimagine the Iron Throne
Comments (0)
Please login or sign up to add comments
No comments yet. Be the first to comment!