Traditional House Renovation in Jeju: House Covered House by Becban Architecture
This article explores a sensitive traditional house renovation in Jeju by Becban Architecture that fuses memory, material, and modern design.
A Sensitive Revival of Heritage Through Contemporary Design
In the quiet rural landscape of Jeju Island, a traditional home built in 1965 finds new life through the innovative lens of Becban Architecture. Rather than demolishing the existing structure, the architects embraced the idea of traditional house renovation in Jeju, proposing a design that overlays contemporary spatial needs atop cultural memory.



Preserving the Past, Framing the Future
The house’s owner, a long-time craftsman working with marine waste materials, sought to preserve the original home. This sentiment sparked the design direction — not replacement, but reinterpretation. The project retained the old house in its entirety and introduced a new architectural layer, a covering structure that shelters and unifies the past with the present under a single roofline. This gesture not only conserves material but also maintains the rhythm, scale, and ambiance of the original house.




Spatial Integration Through Overlapping Forms
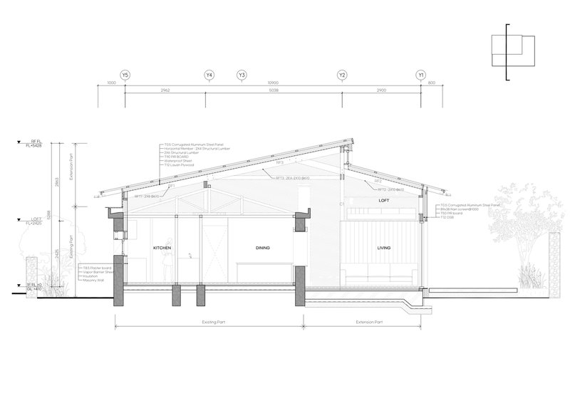
The design process honored the spatial order of the old Jeju house — the cadence of its stone walls, the logic of its windows, and its traditional column arrangement. These elements were absorbed into a newly organized layout. Functional programs such as bathrooms, a dressing room, and laundry were reorganized in a new linear structure in front of the existing house. This new zone echoes the utility functions of the past while serving today’s lifestyle.



At the heart of the home, the space between the old and new elements transforms into a living room — an interpretation of the courtyard, retaining the openness and flexibility characteristic of traditional Jeju homes. The previous living space was adapted into a warm kitchen and dining area, resulting in an LDK layout that seamlessly connects exterior and interior, old and new.



Responsive Architecture to Light and Structure
Since the original house is located to the north of the site, the addition naturally extends southward. To combat the deepened floor plate and invite natural light into the center of the home, the architects offset the gabled roofs. This strategic intervention allows sunlight to stream through clerestory windows, animating the interiors throughout the day.



To span the combined 11 meters of the old and new sections, two structural beams were placed to carry the lightweight timber roof. Reinforcement of the original timber frame and a moment frame in the new addition ensured both durability and spatial openness. This structural approach, executed using standard timber and plywood assembled on-site, made the build both economical and environmentally mindful.



Memory as Material: The Tactility of Time
Entering the home, visitors encounter preserved stone walls, a historic chimney, and timber eaves — fragments of the past that retain their identity. These elements were once part of the exterior but are now integrated within the home, lending depth and texture to the contemporary living environment. The entrance, positioned between the guest and office zones, acts as an inner alley that connects these layers and functions as a natural circulation loop throughout the house.


The result is an architectural composition that resonates with time. Rather than simply being a renovation, the House Covered House becomes a poetic gesture — a traditional house renovation in Jeju that frames memory with modernity, ensuring that the home continues to evolve without losing its soul.


A House for Tomorrow Built on Yesterday
By overlaying a new architecture onto the existing structure, Becban Architecture presents a compelling model of sustainability — one that values time, material, and cultural identity. The House Covered House stands as an architectural palimpsest, where every beam, wall, and window carries the weight of memory while embracing the future.


All Photographs are works of Kiwoong Hong
Popular Articles
Popular articles from the community
Alton Cliff House: A Harmonious Retreat by f2a Architecture in Lake Country, Canada
Alton Cliff House blends corten steel, prefabrication, and sustainable design, creating a luxurious, energy-efficient retreat perched on Canadian cliffs.
Atelier Macri Concept Store Interior Design by CASE-REAL
Atelier Macri store features a "ko" counter, walnut wood details, cork displays, blending retail, gallery, and seamless customer experiences.
Free Architecture Competitions You Can Enter Right Now
No entry fees, real prizes. Here are the best free architecture competitions open for submissions in 2026.
The Ken Roberts Memorial Delineation Competition (Krob)
As the most senior architectural drawing competition currently in operation anywhere in the world, it draws hundreds of entries each year, awarding the very best submissions in a series of medium-based categories.
Similar Reads
You might also enjoy these articles
The Ken Roberts Memorial Delineation Competition (Krob)
As the most senior architectural drawing competition currently in operation anywhere in the world, it draws hundreds of entries each year, awarding the very best submissions in a series of medium-based categories.
Waterfront Redevelopment and Urban Revitalization in Mumbai: Forging a New Dawn for Darukhana
A transformative waterfront redevelopment project reimagining Darukhana’s shipbreaking heritage into an inclusive urban future.
OUT-OF-MAP: A Call for Postcards on Feminist Narratives of Public Space
Rhizoma Design and Research Lab invites artists, designers, architects, researchers, and students to reflect on how feminist perspectives can reshape public space. Selected works will be exhibited in Barcelona, October 2026. Submissions open until 15 April 2026.
Documentation Work on Buddhist Wooden Temple
Architectural syncretism and cultural hybridity: A comparative study of the Buddhist temples in Chattogram Hill tracks
Explore Architecture Competitions
Discover active competitions in this discipline
The International Standard for Design Portfolios
The Global Benchmark for Architecture Dissertation Awards
The Global Benchmark for Graduation Excellence
Challenge to reimagine the Iron Throne
Comments (0)
Please login or sign up to add comments
No comments yet. Be the first to comment!