Tram House: A Masterpiece of Sustainable Residential Design by HO Studio
Tram House by HO Studio showcases sustainable residential design, blending modern architecture with natural elements in urban Vietnam.
Tram House by HO Studio exemplifies innovative sustainable residential design. Spearheaded by lead architect Hồ Văn Cường, the 420 m² project reimagines urban living by balancing modern aesthetics with environmental harmony. Built on a plot reconfigured by the city’s urban expansion plans, Tram House stands as a white solid tower with diagonal cuts and chamfered edges that give it a distinctive architectural identity. Completed in 2023, the house optimizes natural ventilation, daylight, and green spaces for a healthier and more connected lifestyle.




Site Context: A Transformative Opportunity in Urban Vietnam
The project sits at the intersection of evolving cityscapes, with the client’s plot reshaped to a 40-degree diagonal alignment. The existing one-story house, functional but outdated, stood on a low foundation and lacked access to the broader views and breezes the location offered. The site’s surroundings—urban voids on three sides and proximity to two high-rise apartment buildings—presented both challenges and opportunities. Tram House capitalizes on these attributes, leveraging its position for panoramic views, cross-ventilation, and openness.



Architectural Form: A Sculptural White Tower
Tram House’s design revolves around its sculptural white exterior. The west-facing tower serves as the backbone, housing circulation spaces such as elevators, stairs, and hallways. The bold, angular façade combines diagonal lines and chamfered edges, creating a striking visual identity amidst the neighboring high-rises. The design minimizes internal walls, resulting in an open layout that enhances spatial fluidity.


Natural voids and skylights punctuate the structure, allowing daylight to flood the interiors and fostering a seamless connection between spaces. The inclusion of large glass openings enhances this sense of openness, while the interplay of solid and transparent elements gives the house a dynamic and airy character.


Functionality: A Multi-Generational Urban Home
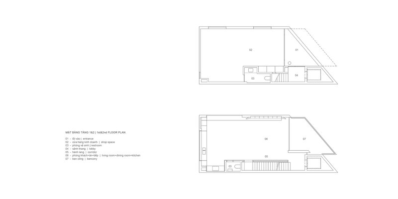
The ground floor of Tram House is allocated for business use, while the upper four floors are designed for family living. The house accommodates the needs of parents and two daughters with well-planned spaces that encourage interaction while maintaining privacy. Each floor is designed with a purpose: circulation and enclosed utilities occupy the west side, while functional and living spaces extend across the remaining area, maximizing openness from front to back.



The second floor, the heart of family life, offers sweeping views of lush tree canopies at both the front and rear. A central void over 5 meters high opens the living area to the sky, creating an ever-changing atmosphere through shifting light and weather conditions. This design fosters a sense of well-being and connection with the natural environment.



Integration of Green Spaces: Hanging Gardens and Terraces
Greenery plays a vital role in Tram House’s design. The building features stepped balconies that act as hanging garden terraces. These green spaces, integrated with the solid west-side structure, provide a buffer against heat while enhancing the overall aesthetic and quality of life. Plants cover the terraces, creating a natural barrier and improving air quality within the home.


These terraces also contribute to the sustainability of the building by reducing its reliance on artificial cooling systems. They offer tranquil outdoor spaces where the family can relax and enjoy nature, further connecting the urban residence with its environment.



Natural Light and Ventilation: Sustainable Design in Action
Tram House prioritizes natural light and ventilation, both essential elements of sustainable design. Skylights, cuts in the structure, and expansive glass openings allow sunlight to permeate the interiors, reducing the need for artificial lighting during the day. The strategic positioning of openings promotes cross-ventilation, keeping the home cool and comfortable year-round.

This integration of passive design principles ensures energy efficiency and reduces the environmental impact of the building. The thoughtful use of natural resources not only aligns with sustainable practices but also enhances the overall living experience for the family.

Vision for Urban Sustainability
Tram House by HO Studio is a testament to the potential of sustainable residential design in rapidly urbanizing areas. By reimagining a traditional home to maximize natural light, airflow, and greenery, the project offers a forward-thinking solution to the challenges of modern urban living. Its bold design, functional layout, and commitment to environmental integration make it a model for future developments in Vietnam and beyond.




All Photographs are works of Nguyễn Thái Thạch
Popular Articles
Popular articles from the community
Alton Cliff House: A Harmonious Retreat by f2a Architecture in Lake Country, Canada
Alton Cliff House blends corten steel, prefabrication, and sustainable design, creating a luxurious, energy-efficient retreat perched on Canadian cliffs.
Magic Box Office Barcelona Innovative Sustainable Workplace Design
Innovative sustainable office design featuring triangular form, ceramic façade, flexible interiors, natural light optimization, and creative workspace for modern work culture.
Marvila Apartment Renovation in Lisbon: A Bright Minimalist Attic Transformation by KEMA Studio
Bright attic transformed into minimalist Lisbon apartment with skylights, sustainable materials, open plan layout, and industrial-inspired interior design elements.
Split House: A Compact Urban Home Blending Privacy, Light, and Flexible Living in Japan
Compact Japanese home featuring DOMA space, flexible café potential, passive lighting, privacy zoning, and sustainable urban living design.
Similar Reads
You might also enjoy these articles
Filtering Space: A Gradual Spatial Experience
From urban intensity to spatial calm.
The Ken Roberts Memorial Delineation Competition (Krob)
As the most senior architectural drawing competition currently in operation anywhere in the world, it draws hundreds of entries each year, awarding the very best submissions in a series of medium-based categories.
Waterfront Redevelopment and Urban Revitalization in Mumbai: Forging a New Dawn for Darukhana
A transformative waterfront redevelopment project reimagining Darukhana’s shipbreaking heritage into an inclusive urban future.
OUT-OF-MAP: A Call for Postcards on Feminist Narratives of Public Space
Rhizoma Design and Research Lab invites artists, designers, architects, researchers, and students to reflect on how feminist perspectives can reshape public space. Selected works will be exhibited in Barcelona, October 2026. Submissions open until 15 April 2026.
Explore Architecture Competitions
Discover active competitions in this discipline
The International Standard for Design Portfolios
The Global Benchmark for Architecture Dissertation Awards
The Global Benchmark for Graduation Excellence
Challenge to reimagine the Iron Throne
Comments (0)
Please login or sign up to add comments
No comments yet. Be the first to comment!