Transforming Tradition: The Community Center Renovation of Haiyan Ke Tang in Kunming
Explore the transformative community center renovation of Haiyan Ke Tang in Kunming, blending tradition with modern design for community engagement.
Located in the scenic Dian Lake National Tourist Resort in Kunming, China, Haiyan Ke Tang represents a profound transformation within the community of Haiyan Village. This project, led by Yanfei Architects and Elepheno Architects, is an exemplary model of community center renovation, converting an old school playground into a vibrant public space for local ceremonies and gatherings.




Historical Background and Initial Use
From School to Community Hub
Originally the site of Haiyan Primary School, the space was repurposed as a simple warehouse structure after the school's closure in 2008. This space quickly became a central area for village events, primarily serving as a "guest hall" where locals held wedding and funeral banquets. This transformation was not just physical but also social, cementing the site's place at the heart of community life.




Architectural and Cultural Renovation
Enhancing Functionality While Preserving Identity
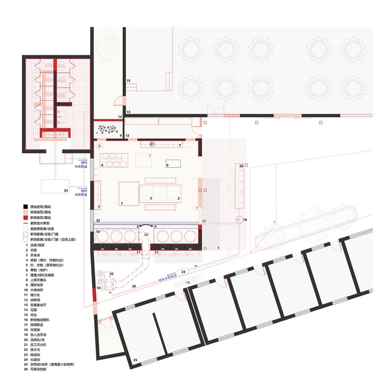
The renovation of Haiyan Ke Tang was not just about updating an old building but about enhancing its role within the community while respecting and preserving its cultural significance. The project included necessary structural upgrades, such as leveling the kitchen roof, replacing the roof entirely, and installing modern exhaust and oil separation equipment. These changes were made alongside aesthetic enhancements designed to maintain the building's traditional character.




Sustainable Practices in Renovation
In keeping with the architects' commitment to sustainability and respect for history, many original materials were reused and refurbished. This included the flue, earth stove, and most of the wall tiles, floors, and furniture, which were either restored or thoughtfully patched up. This approach not only preserved the historical essence of the space but also minimized the environmental impact of the renovation.






Community Impact and Future Use
A Hub for Local Traditions
With the renovation complete, Haiyan Ke Tang continues to serve as a versatile venue that hosts large community events, supporting gatherings for hundreds of people. The adaptability of the space reflects a deep understanding of the local customs and the community's needs, making it a true pillar of village life.



Looking Forward: A Space Evolving with Its Community
As Haiyan Ke Tang opens its doors for the Dianchi Art Season and beyond, the space is set to further evolve. The addition of a study library and a health clinic within the renovated structure will bring new functionalities to the community, reflecting the dynamic nature of architectural spaces and their ability to adapt over time.




Celebrating Local Life Through Architecture
The community center renovation of Haiyan Ke Tang is a testament to the power of architecture to transform and enrich community life. By blending modern functionality with traditional aesthetics and sustainable practices, Yanfei Architects and Elepheno Architects have not only preserved a piece of local history but have also created a space that continues to serve and adapt to the evolving needs of Haiyan Village.










All photographs are work of Chen Hao
Popular Articles
Popular articles from the community
Solar Steam: A Climate-Responsive Architecture That Redefines the Monument
A climate-responsive memorial architecture that transforms heat, decay, and time into a living system reflecting humanity’s ecological impact.
Inverted Architecture Installation by Studio Link-Arc: Exploring the Intersection of Architecture and Living Organisms
Inverted Architecture Installation by Studio Link-Arc blends mycelium, sustainability, inverted design, ecological cycles, and urban adaptive architecture in Shenzhen.
Alton Cliff House: A Harmonious Retreat by f2a Architecture in Lake Country, Canada
Alton Cliff House blends corten steel, prefabrication, and sustainable design, creating a luxurious, energy-efficient retreat perched on Canadian cliffs.
Similar Reads
You might also enjoy these articles
The Ken Roberts Memorial Delineation Competition (Krob)
As the most senior architectural drawing competition currently in operation anywhere in the world, it draws hundreds of entries each year, awarding the very best submissions in a series of medium-based categories.
Waterfront Redevelopment and Urban Revitalization in Mumbai: Forging a New Dawn for Darukhana
A transformative waterfront redevelopment project reimagining Darukhana’s shipbreaking heritage into an inclusive urban future.
OUT-OF-MAP: A Call for Postcards on Feminist Narratives of Public Space
Rhizoma Design and Research Lab invites artists, designers, architects, researchers, and students to reflect on how feminist perspectives can reshape public space. Selected works will be exhibited in Barcelona, October 2026. Submissions open until 15 April 2026.
Documentation Work on Buddhist Wooden Temple
Architectural syncretism and cultural hybridity: A comparative study of the Buddhist temples in Chattogram Hill tracks
Explore Architecture Competitions
Discover active competitions in this discipline
The International Standard for Design Portfolios
The Global Benchmark for Architecture Dissertation Awards
The Global Benchmark for Graduation Excellence
Challenge to reimagine the Iron Throne
Comments (0)
Please login or sign up to add comments
No comments yet. Be the first to comment!