Triplex Yvapovõ by Biocons Arquitectos – A Sustainable Urban Oasis Rooted in Nature
Triplex Yvapovõ is a compact, tree-integrated home in Asunción, blending sustainability, local materials, and layered outdoor spaces.
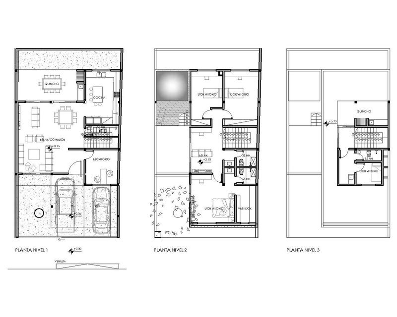
Located on a compact 10x18m plot in central Asunción, Triplex Yvapovõ by Biocons Arquitectos redefines sustainable urban living through a thoughtful response to site constraints and nature. The project is named after the Yvapovõ tree (Melicoccus lepidopetalus), a native melliferous species that anchors the residence both visually and ecologically. Preserving this mature tree—with its large, flowering crown essential for pollinators—was a driving force behind the spatial and environmental design.


Nature-Led Design in a Dense Urban Fabric
Facing the challenges of limited space and harsh climate conditions, the architects designed two transverse volumes that open to the south, protecting interiors from the intense Asunción sun. On the ground floor, the layout complies with zoning regulations while maximizing usable area with parking and a small patio. In response to spatial limitations, the design pushes vertical, generating layered environments across three levels. These upper-level spaces provide both functionality and emotional relief—crucial elements emphasized during the COVID-19 pandemic.

Four Outdoor Living Experiences
To promote wellbeing and outdoor interaction, four distinct open-air spaces are introduced:
- A ground-floor gallery with a grill for family gatherings
- A south-facing terrace with a plunge pool for cooling off
- A sunset-viewing terrace featuring a second grill
- A tree-facing lookout connecting visually with the neighborhood

These areas function as vital extensions of interior life, providing leisure, contemplation, and cross-ventilation.
Local Materials and Honest Construction
Constructed with exposed reinforced concrete and locally produced clay brick, the home embraces a sincere, raw aesthetic. The brick façade acts as a parasol, encouraging ventilation and shading, while doubling as a vertical creeper screen that harmonizes with the nearby tree. Ceramic and calcareous stone floors enrich the sensory experience with textures rooted in Paraguayan building traditions.


Transparent yet shielded, the openings are oriented primarily to the south, allowing for controlled daylight and natural cooling. This passive design strategy reduces energy consumption while creating luminous, thermally comfortable interiors.


Sustainable Urban Architecture
Triplex Yvapovõ stands as a compelling model for sustainable housing in Latin America, blending compact design, climatic responsiveness, and ecological sensitivity. It prioritizes outdoor living, natural materials, and local craftsmanship, offering a poetic yet practical solution for city dwellers who seek connection with nature—even on the smallest urban lots.



All the photographs are works of Leonardo Méndez
Popular Articles
Popular articles from the community
Louis Malle Cinema: A Limestone Cultural Landmark Revitalizing Community Life in Prayssac
Limestone cinema extension with public forecourt, blending heritage and modern design to create flexible cultural spaces and strengthen community interaction.
The Ken Roberts Memorial Delineation Competition (Krob)
As the most senior architectural drawing competition currently in operation anywhere in the world, it draws hundreds of entries each year, awarding the very best submissions in a series of medium-based categories.
Atelier Macri Concept Store Interior Design by CASE-REAL
Atelier Macri store features a "ko" counter, walnut wood details, cork displays, blending retail, gallery, and seamless customer experiences.
An Miên Lumière Cafe by xưởng xép, Ho Chi Minh City, Vietnam
An industrial-inspired café where layered steel and warm light create a dynamic, immersive environment shaped by reflection, depth, and perception.
Similar Reads
You might also enjoy these articles
The Ken Roberts Memorial Delineation Competition (Krob)
As the most senior architectural drawing competition currently in operation anywhere in the world, it draws hundreds of entries each year, awarding the very best submissions in a series of medium-based categories.
Waterfront Redevelopment and Urban Revitalization in Mumbai: Forging a New Dawn for Darukhana
A transformative waterfront redevelopment project reimagining Darukhana’s shipbreaking heritage into an inclusive urban future.
OUT-OF-MAP: A Call for Postcards on Feminist Narratives of Public Space
Rhizoma Design and Research Lab invites artists, designers, architects, researchers, and students to reflect on how feminist perspectives can reshape public space. Selected works will be exhibited in Barcelona, October 2026. Submissions open until 15 April 2026.
Documentation Work on Buddhist Wooden Temple
Architectural syncretism and cultural hybridity: A comparative study of the Buddhist temples in Chattogram Hill tracks
Explore Architecture Competitions
Discover active competitions in this discipline
The International Standard for Design Portfolios
The Global Benchmark for Architecture Dissertation Awards
The Global Benchmark for Graduation Excellence
Challenge to reimagine the Iron Throne
Comments (0)
Please login or sign up to add comments
No comments yet. Be the first to comment!