Trumpf Schramberg Tech Center: A Landmark in Modern Architecture Design
This article explores the Trumpf Schramberg Tech Center, showcasing its innovative design, sustainability, and employee-centric architectural vision.
The Trumpf Schramberg Tech Center in Schramberg, Germany, stands as a monumental achievement in modern architecture, blending functionality, sustainability, and aesthetic innovation. Designed by the renowned architectural firm Barkow Leibinger, this multifunctional structure serves as the hub of activity for TRUMPF's second-largest campus. The design harmonizes laboratories, offices, conference areas, and a campus restaurant into a cohesive architectural masterpiece, epitomizing forward-thinking tech center architecture design.



A Visionary Expansion
The Schramberg campus, northeast of Freiburg, has grown steadily over two decades, becoming a hallmark of TRUMPF's global presence. Following the master plan devised by Barkow Leibinger, the Tech Center represents the latest expansion, with a sprawling 14,000 square meters of space. Completed in 2022, the building integrates state-of-the-art laboratories, office spaces, and communal areas, reflecting the company's commitment to innovation and employee well-being.



Architectural Harmony with Nature
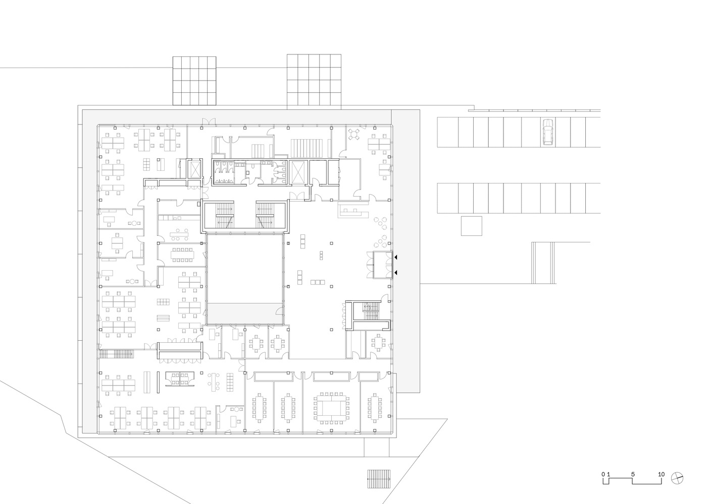
Nestled into Schramberg's sloping terrain, the Tech Center is an architectural iceberg, with only two upper floors visible from the main entrance. This seamless integration into the natural landscape underscores its sustainable design approach, while the central courtyard invites natural light and creates visual transparency throughout the building. Glass partitions offer connections to the surrounding greenery, fostering an immersive, nature-oriented work environment.



The Dynamic Façade and Structural Design
The Tech Center’s cubic form is punctuated by staggered levels, cantilevered canopies, and terraces, lending it a dynamic and horizontal aesthetic. The façade’s use of wood and glass distinguishes it from neighboring metal-clad buildings, conveying its unique role on campus. The central courtyard becomes a focal point, promoting transparency and interaction. The open staircase, adorned with mirrored surfaces, acts as a sculptural centerpiece, emphasizing movement and connection.




Multifunctional Spaces and Employee Well-Being
Designed as the face of TRUMPF in Schramberg, the Tech Center offers a multitude of functionalities. Employees enter through the expansive garden-level entrance, which connects all levels, including laboratories, offices, and event spaces. The conference area accommodates up to 100 participants, while the restaurant, with seating for 400, provides a central gathering space. The restaurant's timber roof structure, coupled with optimized acoustics, creates a warm and inviting atmosphere, blending utility with comfort.





Sustainability at the Core
Sustainability is a cornerstone of the Tech Center’s design. The roof is greened, seamlessly integrating with terraces and outdoor spaces. The timber roof structure not only ensures an eco-friendly construction method but also contributes to the building's acoustic and thermal efficiency. The integration of green spaces aligns with the campus master plan, envisioning a welcoming, livable, and environmentally conscious workplace.




Innovation in Materiality and Design
From the exposed concrete and larch wood finishes in the lobby to the terrazzo flooring and laser-engraved stainless-steel wall, every material choice reflects precision and innovation. The triangular timber roof in the restaurant showcases TRUMPF’s technological capabilities, with laser-cut acoustic panels creating a visual moiré effect. Technical elements like lighting and sprinklers are subtly integrated, maintaining a clean and cohesive design language.




Future-Proofed for Expansion
The Tech Center is designed with foresight, incorporating a tunnel connecting to future production buildings. The underground levels house vital infrastructure, including test laboratories, storage areas, and a sprinkler control center, ensuring the facility remains adaptable to future technological advancements.

The Trumpf Schramberg Tech Center is more than just a building; it is a testament to modern architecture's ability to combine functionality, sustainability, and aesthetic excellence. By prioritizing employee well-being, environmental stewardship, and cutting-edge design, Barkow Leibinger has created a landmark that sets new standards in tech center architecture design.





All Photographs are work of © Simon Menge s, Berlin
Popular Articles
Popular articles from the community
Treehouse Apartment: A Warm Timber Interior Blending Craft, Play, and Contemporary Living
Warm timber apartment with integrated treehouse, combining natural materials, craftsmanship, and playful design to create a flexible, family-oriented living environment.
The Ken Roberts Memorial Delineation Competition (Krob)
As the most senior architectural drawing competition currently in operation anywhere in the world, it draws hundreds of entries each year, awarding the very best submissions in a series of medium-based categories.
On the Brooks House by Monsoon Collective – A Contemporary Kerala Home Rooted in Tradition
Kerala home blending tradition and modernity with water-inspired design, brick architecture, courtyard planning, and sustainable rainwater harvesting strategies.
Flamboyant House by Juliana Camargo + Prumo Projetos
Modern Brazilian house integrating existing tree, pool, and volumes with glass, wood, and transitional spaces blending interior, exterior, and landscape seamlessly.
Similar Reads
You might also enjoy these articles
The Ken Roberts Memorial Delineation Competition (Krob)
As the most senior architectural drawing competition currently in operation anywhere in the world, it draws hundreds of entries each year, awarding the very best submissions in a series of medium-based categories.
Waterfront Redevelopment and Urban Revitalization in Mumbai: Forging a New Dawn for Darukhana
A transformative waterfront redevelopment project reimagining Darukhana’s shipbreaking heritage into an inclusive urban future.
OUT-OF-MAP: A Call for Postcards on Feminist Narratives of Public Space
Rhizoma Design and Research Lab invites artists, designers, architects, researchers, and students to reflect on how feminist perspectives can reshape public space. Selected works will be exhibited in Barcelona, October 2026. Submissions open until 15 April 2026.
Documentation Work on Buddhist Wooden Temple
Architectural syncretism and cultural hybridity: A comparative study of the Buddhist temples in Chattogram Hill tracks
Explore Architecture Competitions
Discover active competitions in this discipline
The International Standard for Design Portfolios
The Global Benchmark for Architecture Dissertation Awards
The Global Benchmark for Graduation Excellence
Challenge to reimagine the Iron Throne
Comments (0)
Please login or sign up to add comments
No comments yet. Be the first to comment!