Truper's Innovative Educational Hub Designed by Miguel Montor Architecture
How can this educational centre enhance Truper's support to students and teachers?

Truper, a tool manufacturing plant located in Jilotepec, has experienced significant growth in recent years. As a result, the company required additional facilities such as industrial dining rooms, offices, and parking lots to accommodate the increasing enrollment of its workers. The company sought a contemporary architectural design that would improve the physical workplace conditions for its employees while also benefiting the community. This led to the creation of the Truper Educational Support Center designed by Miguel Montor Architecture.
The centre was designed to serve as a tool for education, providing support to children of workers and the wider community of Jilotepec. The project was initiated through a public program where the company allocated non-tax-deductible resources to generate a social benefit. The vision was to improve the educational level of the community and provide assistance to people of all ages and backgrounds to continue with subsequent studies.
The Truper Educational Support Center boasts avant-garde technology integrated to improve the performance of its academic activities. The building has a specific educational program, and its aim is to regularize and support whoever needs it. The centre is not a traditional school, and anyone can attend, making it a unique addition to the community's educational resources.
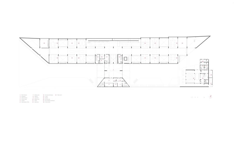
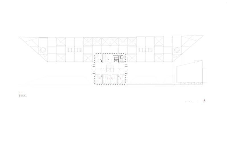
The centre's design reflects safety, functionality, and efficiency, emphasizing the importance of tectonic elements and structural interpretation. The geometries throughout the project are sharp and clean, and the materials used reflect the company's identity with orange and ocher tones. The load-bearing system is noticeable, and grey tones predominate. The building is transparent at night, serving as an urban lamp that provides a sense of security.
The Truper Educational Support Center has a linear conformation in a narrow and long geometry that participates with its surroundings without being too loud. The building's classrooms maintain the same height as the rest of the neighbourhood, and a public square is placed as access on the side that has contact with the street. The classrooms are situated in an internal cloister, leaving the main entrance and the rectory in clear view. The cafeteria is open to the public for its appropriation, and the access portal is generated by a block of laboratories that rests on the rectory and classrooms, generating a tectonic dolmen.
The spaces within the centre are well illuminated, with 50% of the walls of each classroom having translucent surfaces. The classrooms are well-ventilated, always looking for crossed air circulation, and follow a semi-open scheme between classrooms and patios. The spaces were oriented to benefit the classrooms' temperature, with facades oriented in accordance with the sunlight analysis.
In essence, the architecture of the Truper Educational Support Center seeks to provide a social benefit through a private tool that reflects security, transparency, order, and efficiency. With its contemporary design, avant-garde technology, and unique educational program, the centre is a valuable addition to Jilotepec's community resources for recreation and training.







































Architects: Taller de Arquitectura Miguel Montor
Year: 2022
Proyecto: Miguel Montor
Equipo De Diseño: Pilar Rico, Diego Portilla, Iván Bustillos, Jorge Olvera
Estructura: Juan José Larios
Instalaciones: Uriel García
Construcción: Active Pádel Deportes
Cliente: Truper
City: Jilotepec de Molina Enríquez
Country: Mexico
Popular Articles
Popular articles from the community
Atelier Macri Concept Store Interior Design by CASE-REAL
Atelier Macri store features a "ko" counter, walnut wood details, cork displays, blending retail, gallery, and seamless customer experiences.
The Ken Roberts Memorial Delineation Competition (Krob)
As the most senior architectural drawing competition currently in operation anywhere in the world, it draws hundreds of entries each year, awarding the very best submissions in a series of medium-based categories.
Treehouse Apartment: A Warm Timber Interior Blending Craft, Play, and Contemporary Living
Warm timber apartment with integrated treehouse, combining natural materials, craftsmanship, and playful design to create a flexible, family-oriented living environment.
On the Brooks House by Monsoon Collective – A Contemporary Kerala Home Rooted in Tradition
Kerala home blending tradition and modernity with water-inspired design, brick architecture, courtyard planning, and sustainable rainwater harvesting strategies.
Similar Reads
You might also enjoy these articles
Zhuxi Wonderland: Reimagining Traditional Chinese Gardens by Doarchi Architects
Zhuxi Wonderland by Doarchi Architects reinterprets traditional Yangzhou gardens, integrating courtyards, pavilions, and tea houses in modern cultural design.
Doble Soga House: A Contemporary Brick Residence Rooted in Landscape in Quito, Ecuador
Brick house in Quito integrating nature, flexible living spaces, exposed materials, and rooftop terrace, creating warm contemporary architecture for modern family life.
Al Gharra Mosque in Medina Redefining Contemporary Islamic Architecture
Minimalist Medina mosque using concrete, light, and landscape to reinterpret Islamic worship spaces through symbolic spiritual transitions and contemporary architecture.
Viczonecode Villa by DDconcept – Tropical Family Living in Ho Chi Minh City
Tropical family villa in Ho Chi Minh City featuring courtyards, skylights, natural ventilation, elevated flooring, and seamless indoor–outdoor living surrounded by greenery.
Explore Architecture Competitions
Discover active competitions in this discipline
The International Standard for Design Portfolios
The Global Benchmark for Architecture Dissertation Awards
The Global Benchmark for Graduation Excellence
Challenge to reimagine the Iron Throne
Comments (0)
Please login or sign up to add comments
No comments yet. Be the first to comment!