Underground Sports Facility Design: The Luola Sports and Events Centre in Savilahti
The article explores the Luola Sports and Events Centre, a groundbreaking underground sports facility design that blends architecture with functionality and community engagement.
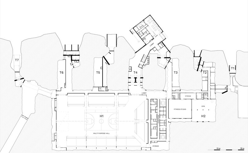
The Luola Sports and Events Centre in Savilahti redefines underground sports facility design by transforming a former military depot into a state-of-the-art recreational hub. Designed by Architects Davidsson Tarkela, this multi-purpose complex is seamlessly integrated into the rocky landscape of Neulamäki Hill in Kuopio, Finland. The centre serves not only as a world-class sports venue but also as a cultural and civic space, accommodating large-scale events, community activities, and emergency shelter functions.



A Bold Vision for an Underground Sports Facility
Luola Sports and Events Centre emerges as a dynamic architectural landmark, despite being predominantly carved into bedrock. The 550 m² entrance pavilion, clad in glass and metal, forms a striking contrast against the rugged terrain. Acting as a gateway to the underground world, this structure houses reception areas, offices, and a cafeteria while concealing essential escape routes and ventilation systems within its design.


The pavilion’s facade draws inspiration from the district’s public art theme, "Light," featuring a rock face installation by artists Pasi Rauhala and Jaakko Niemelä. The custom-perforated aluminium panels, finished in earthy tones, create an interplay between built form and nature, allowing the structure to blend with its surroundings while maintaining a distinct identity.


A Journey into the Cavernous Interior
Inside, visitors embark on an experiential journey from the well-lit café into deep blue corridors that mimic the ambiance of a cave. This transition separates the everyday world from the immersive underground environment, where athletic and cultural activities unfold within sculpted rock walls. The spatial hierarchy is defined by vibrant colors in communal areas, while utilitarian spaces retain their raw concrete finish, reinforcing their functional role.


The facility houses two primary halls: Hall 1, a grand event space that can accommodate up to 2,500 spectators, and Hall 2, a fitness zone comprising three studios and a gym spread over two floors. The design prioritizes accessibility, with changing rooms and technical facilities centrally located across three levels to ensure efficient movement within the structure.


Challenges and Innovations in Underground Construction
Building within a rocky landscape presents unique architectural and engineering challenges. The transformation of the former army depot required extensive excavation, the expansion of existing tunnels, and careful consideration of structural integrity due to unexpected rock fractures. Architects Davidsson Tarkela employed advanced construction techniques to create a unified space within the rock while maintaining safety and stability.


Acoustic performance played a critical role in the design, given the underground setting’s potential for echo and reverberation. Expert consultation from Helimäki Akustikot Oy ensured optimal sound conditions for both sporting events and large-scale performances, enhancing the functionality of the space.



Community Integration and Multi-Use Functionality
Beyond its role as a sports facility, the Luola Centre serves as a vibrant social hub for Kuopio. Designed to accommodate school programs, sports clubs, professional leagues, and individual athletes, the venue also hosts concerts, seminars, and international tournaments. Its integration with the surrounding park and residential district strengthens community engagement, making it a key cultural landmark.


One of the centre’s most vital functions is its role as a shared civic shelter, capable of accommodating nearly 7,000 people in times of emergency. This multi-purpose capability enhances the city’s preparedness while reinforcing the centre’s significance beyond recreational use.


The Legacy of Luola: A New Standard for Underground Sports Facilities
The Luola Sports and Events Centre exemplifies the future of underground sports facility design by merging functionality, sustainability, and architectural innovation. Through its thoughtful integration with the landscape, efficient spatial planning, and commitment to community well-being, this project sets a precedent for future subterranean developments.


With its ability to host world-class events while providing an essential civic function, Luola represents a model of how underground architecture can be both aesthetically compelling and highly practical. It stands as a testament to the possibilities of designing within the earth, proving that underground spaces can be as dynamic and inviting as their above-ground counterparts.

All Photographs are works of Tuomas Uusheimo
Popular Articles
Popular articles from the community
Free Architecture Competitions You Can Enter Right Now
No entry fees, real prizes. Here are the best free architecture competitions open for submissions in 2026.
20 Most Popular Commercial Architecture Projects of 2025
From sustainable market concepts to heritage factories, the commercial buildings and proposals that drew the most attention on uni.xyz this year.
Magic Box Office Barcelona Innovative Sustainable Workplace Design
Innovative sustainable office design featuring triangular form, ceramic façade, flexible interiors, natural light optimization, and creative workspace for modern work culture.
Rede Arquitetos Builds an Open-Air School in Fortaleza That Doubles as a Neighborhood Living Room
Educar II SESC-CE folds sports, dance, and community gathering into a courtyard campus wrapped in mesh and tropical color.
Similar Reads
You might also enjoy these articles
Filtering Space: A Gradual Spatial Experience
From urban intensity to spatial calm.
The Ken Roberts Memorial Delineation Competition (Krob)
As the most senior architectural drawing competition currently in operation anywhere in the world, it draws hundreds of entries each year, awarding the very best submissions in a series of medium-based categories.
Waterfront Redevelopment and Urban Revitalization in Mumbai: Forging a New Dawn for Darukhana
A transformative waterfront redevelopment project reimagining Darukhana’s shipbreaking heritage into an inclusive urban future.
OUT-OF-MAP: A Call for Postcards on Feminist Narratives of Public Space
Rhizoma Design and Research Lab invites artists, designers, architects, researchers, and students to reflect on how feminist perspectives can reshape public space. Selected works will be exhibited in Barcelona, October 2026. Submissions open until 15 April 2026.
Explore Architecture Competitions
Discover active competitions in this discipline
The International Standard for Design Portfolios
The Global Benchmark for Architecture Dissertation Awards
The Global Benchmark for Graduation Excellence
Challenge to reimagine the Iron Throne
Comments (0)
Please login or sign up to add comments
No comments yet. Be the first to comment!