Urban Oasis Home Design: The Nam House by H.BD Atelier
The article explores Nam House by H.BD atelier, an urban oasis home design blending tranquility with urban living in Quang Binh, Vietnam.
In the heart of Quang Binh, Vietnam, where the rhythm of urban life pulsates with intensity, the Nam House by H.BD atelier emerges as a beacon of calm, redefining the concept of an urban oasis home design. Situated on a modest plot of 136 m² at a bustling T-junction, this architectural masterpiece weaves together the homeowner's desire for a peaceful retreat with the need for a functional living and business space.




Design Philosophy: A Cave of Calmness
Integrating Nature with Urban Living
Drawing inspiration from the natural wonders of Quang Binh, including the renowned Phong Nha and Son Doong caves, H.BD atelier embarked on creating a dwelling that encapsulates the essence of an urban oasis. The Nam House is a testament to the possibility of achieving serenity and connection to nature amidst the urban sprawl.




Architectural Strategy: Maximizing Limited Space
Creating Versatile Living Spaces
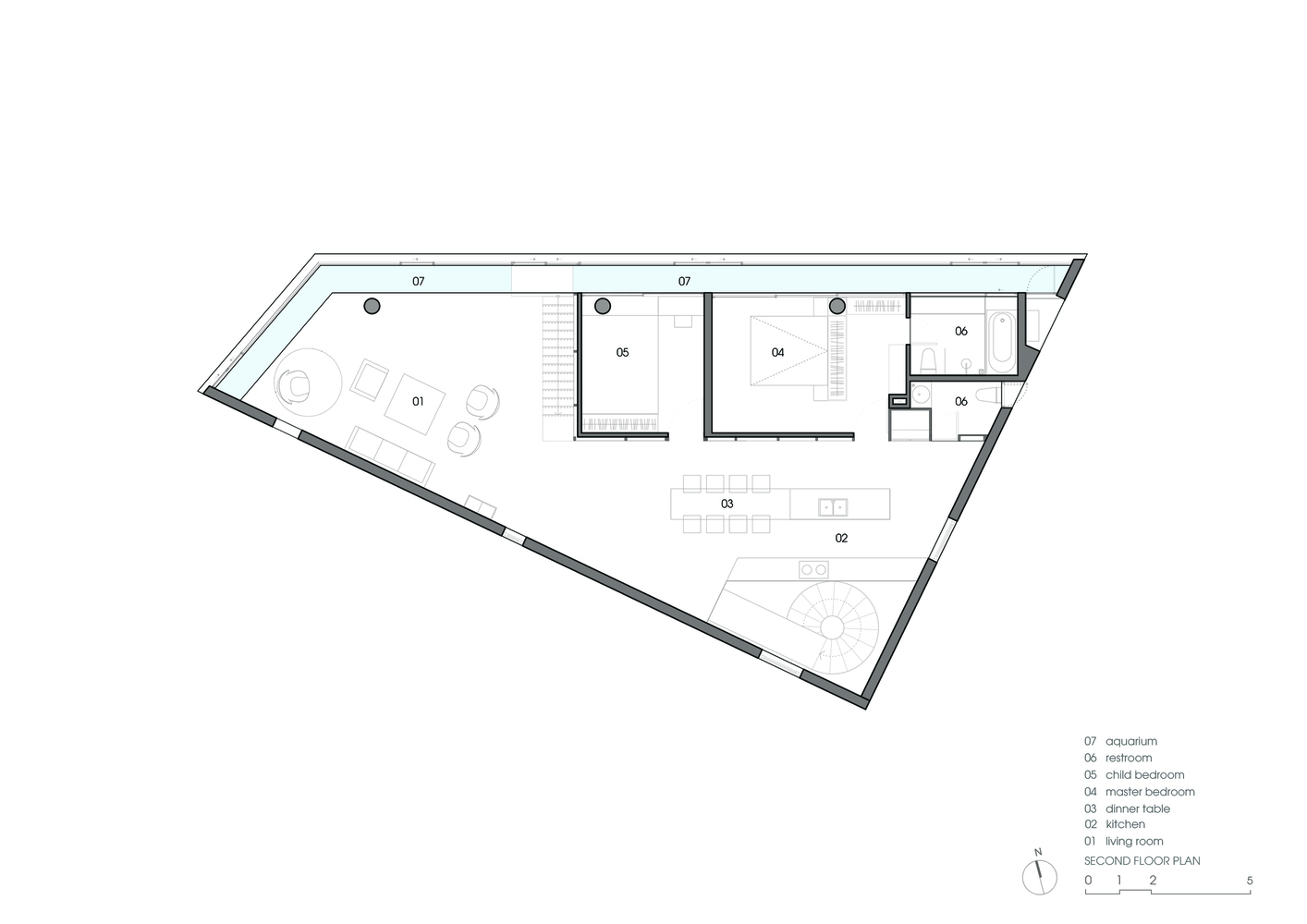
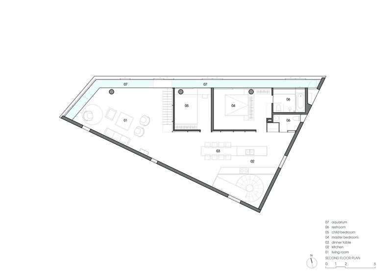
The ground floor is envisioned as a flexible area for business activities, fully utilizing the urban locale while offering privacy to the residential spaces above. The living quarters unfold on the upper floors, where bedrooms, a kitchen-dining room, and a living room on the second floor, and a shared living space, additional bedroom, and altar room on the third floor, come together to form a sanctuary for family life.





A Journey Through Light and Space
Staircases as Pathways of Connection
The architect conceptualizes the staircase not merely as a functional element but as a journey through the home, enhancing connectivity among family members. This spatial arrangement invites exploration and interaction, offering varied views and experiences at each level.





Shared Spaces for Family Interaction
Prioritizing Communal Living
In keeping with the theme of an urban oasis, private bedrooms are minimized to maximize communal living areas. These open, interconnected spaces foster family bonds, allowing for moments of togetherness and shared experiences in a serene setting.







A Connection to the Sky
The Open-Air Swimming Pool
The architectural highlight of Nam House is the attic-level swimming pool, half-covered by a sloping roof that mimics the surrounding mountainous terrain. This unique feature provides a seamless transition from the interior to the exterior, inviting the sky into the home and offering a place for relaxation and contemplation.






A Harmony of Contrasts
Nam House stands as a profound expression of urban oasis home design, a place where the hustle and bustle of city life are transcended by moments of quiet and connection. Through thoughtful design and innovative use of space, H.BD atelier has created a home that is not only a refuge for its occupants but also a bold statement on the potential for urban homes to foster tranquility and well-being.




Select an Image Select an Image Select an Image
Popular Articles
Popular articles from the community
Inverted Architecture Installation by Studio Link-Arc: Exploring the Intersection of Architecture and Living Organisms
Inverted Architecture Installation by Studio Link-Arc blends mycelium, sustainability, inverted design, ecological cycles, and urban adaptive architecture in Shenzhen.
Treehouse Apartment: A Warm Timber Interior Blending Craft, Play, and Contemporary Living
Warm timber apartment with integrated treehouse, combining natural materials, craftsmanship, and playful design to create a flexible, family-oriented living environment.
Atelier Macri Concept Store Interior Design by CASE-REAL
Atelier Macri store features a "ko" counter, walnut wood details, cork displays, blending retail, gallery, and seamless customer experiences.
On the Brooks House by Monsoon Collective – A Contemporary Kerala Home Rooted in Tradition
Kerala home blending tradition and modernity with water-inspired design, brick architecture, courtyard planning, and sustainable rainwater harvesting strategies.
Similar Reads
You might also enjoy these articles
The Ken Roberts Memorial Delineation Competition (Krob)
As the most senior architectural drawing competition currently in operation anywhere in the world, it draws hundreds of entries each year, awarding the very best submissions in a series of medium-based categories.
Waterfront Redevelopment and Urban Revitalization in Mumbai: Forging a New Dawn for Darukhana
A transformative waterfront redevelopment project reimagining Darukhana’s shipbreaking heritage into an inclusive urban future.
OUT-OF-MAP: A Call for Postcards on Feminist Narratives of Public Space
Rhizoma Design and Research Lab invites artists, designers, architects, researchers, and students to reflect on how feminist perspectives can reshape public space. Selected works will be exhibited in Barcelona, October 2026. Submissions open until 15 April 2026.
Documentation Work on Buddhist Wooden Temple
Architectural syncretism and cultural hybridity: A comparative study of the Buddhist temples in Chattogram Hill tracks
Explore Architecture Competitions
Discover active competitions in this discipline
The International Standard for Design Portfolios
The Global Benchmark for Architecture Dissertation Awards
The Global Benchmark for Graduation Excellence
Challenge to reimagine the Iron Throne
Comments (0)
Please login or sign up to add comments
No comments yet. Be the first to comment!