Urmila Kailash Black Box: A Landmark in Contemporary Cultural Architecture
The Urmila Kailash Black Box at Kanoria Centre for Arts exemplifies contemporary cultural architecture, blending heritage with modernity to support artistic expression.
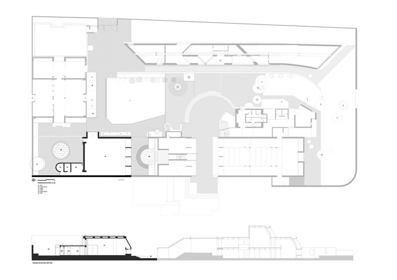
The Kanoria Centre for Arts, a pivotal institution in India’s artistic landscape, has continuously evolved since its founding in 1984. Designed by the legendary Balkrishna Doshi, the Centre has undergone expansions to accommodate the changing needs of the creative community. In 2024, the campus witnessed a new architectural milestone with the addition of the Urmila Kailash Black Box, a striking contemporary cultural space conceived by Studio Sangath.


A Vision Rooted in Architectural Continuity
The Urmila Kailash Black Box is a seamless extension of the Kanoria Centre’s architectural ethos, reflecting a thoughtful blend of heritage and modernity. The design, led by Khushnu Panthaki Hoof and Sönke Hoof of Studio Sangath, pays homage to the existing structures while introducing a fresh spatial typology. The new addition maintains the integrity of Doshi’s original vision, integrating with the surrounding campus through a meticulously designed landscape that blurs the boundaries between old and new.


The structure itself embodies the principles of contemporary cultural architecture, where form follows function in a manner that enhances artistic expression. The building's massing, materiality, and spatial articulation contribute to a sense of cohesion with the broader campus, creating an environment where creativity can thrive.


A Multi-Functional Space for Artistic Expression
The Urmila Kailash Black Box is designed to serve a diverse range of artistic disciplines, functioning as a space for exhibitions, performances, discussions, and creative experimentation. The architecture enables flexibility, allowing for fluid transformations depending on the nature of the event. The spatial organization supports a dynamic interaction between artists, audiences, and the built environment, fostering an immersive cultural experience.


Material selection plays a crucial role in shaping the character of the space. Concrete and brick, fundamental elements of the Kanoria Centre’s architectural language, have been reinterpreted in a contemporary manner. The raw textures of these materials enhance the spatial quality, creating an environment that resonates with the artistic processes taking place within.


The Role of Landscape in Architectural Integration
The Black Box does not exist in isolation—it is intricately woven into the fabric of the campus through a carefully designed landscape strategy. The transitions between interior and exterior spaces are softened by natural elements, ensuring a seamless flow between the various components of the Centre. The integration of open spaces allows for informal interactions, encouraging an organic dialogue between art, architecture, and the surrounding environment.


This sensitive approach to spatial design reinforces the idea that contemporary cultural architecture is not merely about constructing new buildings but about creating environments that enhance creative engagement. The Black Box exemplifies this philosophy by becoming both a stage and a canvas for artistic expression.

A New Model for Cultural Architecture in India
The Urmila Kailash Black Box represents the future of contemporary cultural architecture in India, where design serves as a catalyst for artistic exploration. Its ability to adapt to multiple functions makes it a valuable asset for the Kanoria Centre for Arts, ensuring that the institution remains a vibrant hub for creative discourse.

By respecting the architectural heritage of the campus while introducing a bold new spatial typology, Studio Sangath has created a space that will continue to shape artistic narratives for years to come. The Black Box is more than a building—it is a statement on the evolving nature of cultural spaces and their role in fostering artistic innovation.

All Photographs are works of Ishita Sitwala | Creative Director : Kunnal Pratap Dass
Popular Articles
Popular articles from the community
Rede Arquitetos Builds an Open-Air School in Fortaleza That Doubles as a Neighborhood Living Room
Educar II SESC-CE folds sports, dance, and community gathering into a courtyard campus wrapped in mesh and tropical color.
Filtering Space: A Gradual Spatial Experience
From urban intensity to spatial calm.
20 Most Popular Commercial Architecture Projects of 2025
From sustainable market concepts to heritage factories, the commercial buildings and proposals that drew the most attention on uni.xyz this year.
Marvila Apartment Renovation in Lisbon: A Bright Minimalist Attic Transformation by KEMA Studio
Bright attic transformed into minimalist Lisbon apartment with skylights, sustainable materials, open plan layout, and industrial-inspired interior design elements.
Similar Reads
You might also enjoy these articles
Filtering Space: A Gradual Spatial Experience
From urban intensity to spatial calm.
The Ken Roberts Memorial Delineation Competition (Krob)
As the most senior architectural drawing competition currently in operation anywhere in the world, it draws hundreds of entries each year, awarding the very best submissions in a series of medium-based categories.
Waterfront Redevelopment and Urban Revitalization in Mumbai: Forging a New Dawn for Darukhana
A transformative waterfront redevelopment project reimagining Darukhana’s shipbreaking heritage into an inclusive urban future.
OUT-OF-MAP: A Call for Postcards on Feminist Narratives of Public Space
Rhizoma Design and Research Lab invites artists, designers, architects, researchers, and students to reflect on how feminist perspectives can reshape public space. Selected works will be exhibited in Barcelona, October 2026. Submissions open until 15 April 2026.
Explore Architecture Competitions
Discover active competitions in this discipline
The International Standard for Design Portfolios
The Global Benchmark for Architecture Dissertation Awards
The Global Benchmark for Graduation Excellence
Challenge to reimagine the Iron Throne
Comments (0)
Please login or sign up to add comments
No comments yet. Be the first to comment!