V Penthouse Badie Architects: Redefining Contemporary Luxury Living
The V Penthouse by Badie Architects in Al Maadi blends industrial design, smart living, and luxury interiors for modern living.
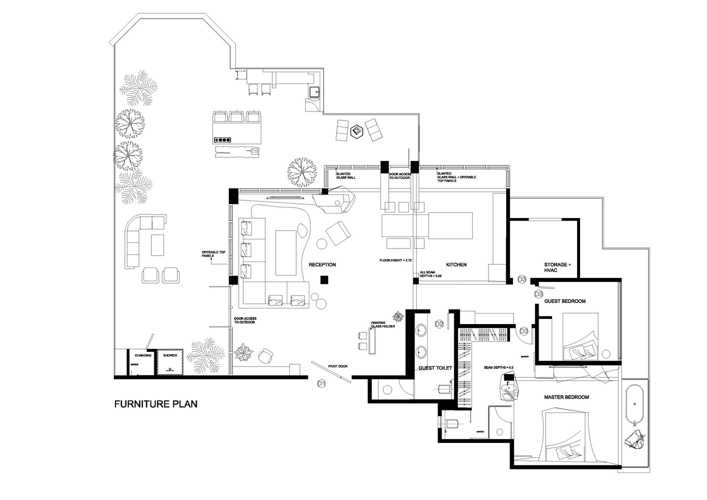
The V Penthouse Badie Architects project in Al Maadi, Egypt, exemplifies a new era of contemporary residential design. With its bold industrial aesthetic, luxurious materials, and smart home integration, the penthouse offers an avant-garde living experience where raw textures meet refined craftsmanship. Designed by Badie Architects in 2025, the 185 m² residence celebrates spatial harmony, cultural heritage, and modern luxury.



Architectural Concept and Materiality
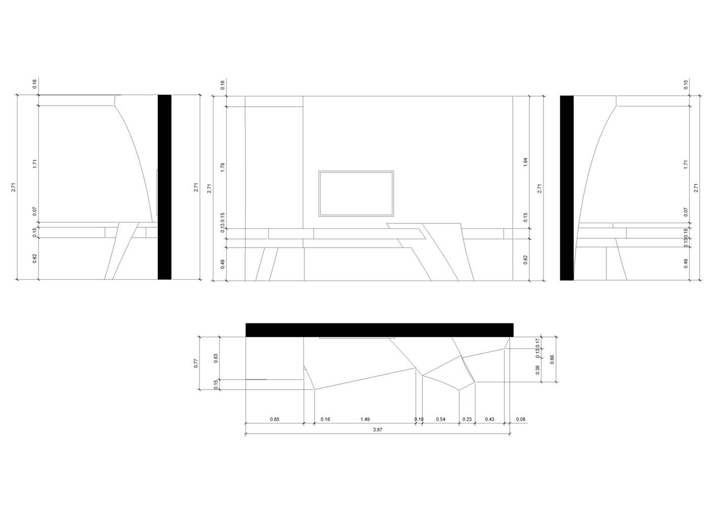
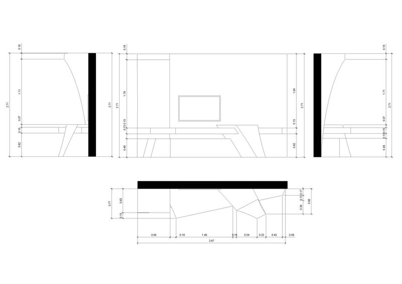
The design philosophy behind the V Penthouse Badie Architects centers on the seamless interplay of contrasting materials. Self-leveling concrete floors and walls form a continuous, monolithic surface, enhancing spatial fluidity and visual coherence. Steel cladding introduces a sculptural dimension, while stainless steel doors and ducts reinforce the industrial undertones of the interior design.




To balance these bold, metallic surfaces, raw wood elements are carefully integrated, offering warmth, tactile richness, and an organic contrast. This juxtaposition of rawness and refinement reflects the architects' vision of a space where modernity coexists with timeless elegance.




Statement Features and Interior Design
At the heart of the penthouse, a central fireplace serves as both a functional element and a striking visual anchor for the living area. The interiors feature high-end furnishings from globally renowned brands like Fendi, Cassina, Minotti, and Flos, curated to complement the minimalist yet luxurious architectural language.



A defining cultural feature is the inclusion of an authentic Kahhal Persian rug, infusing the space with artisanal heritage and cultural depth. Similarly, the marble bathtub in the bedroom stands as a sculptural centerpiece, reinforcing the residence's dedication to material authenticity and bespoke design.




Smart Home Integration
Beyond its architectural and interior sophistication, the V Penthouse is designed as a fully automated smart home. State-of-the-art systems allow seamless control over lighting, climate, entertainment, and security, enhancing both convenience and lifestyle. This integration positions the penthouse as a model for future-forward living.





A Fusion of Luxury and Minimalism
The V Penthouse Badie Architects project emphasizes minimalism without sacrificing luxury. Each material, from exposed concrete to steel and wood, has been chosen not just for its aesthetic appeal but for its narrative value. The combination of durable surfaces and refined finishes creates a space that feels both robust and elegant.




The V Penthouse by Badie Architects is a bold exploration of contemporary residential architecture, blending industrial design with high-end luxury. Through its thoughtful material palette, curated interiors, and smart technologies, it sets a new benchmark for modern living in Egypt and beyond.





All the photographs are works of Nour El Refai
Popular Articles
Popular articles from the community
Fifth NRE Jazz Club – De Bever Architecten: Eindhoven’s Revitalized Cultural Hub
Historic gas factory transformed into Fifth NRE Jazz Club blending modern sustainability, jazz culture, dining, and heritage architecture seamlessly.
Inverted Architecture Installation by Studio Link-Arc: Exploring the Intersection of Architecture and Living Organisms
Inverted Architecture Installation by Studio Link-Arc blends mycelium, sustainability, inverted design, ecological cycles, and urban adaptive architecture in Shenzhen.
Solar Steam: A Climate-Responsive Architecture That Redefines the Monument
A climate-responsive memorial architecture that transforms heat, decay, and time into a living system reflecting humanity’s ecological impact.
Free Architecture Competitions You Can Enter Right Now
No entry fees, real prizes. Here are the best free architecture competitions open for submissions in 2026.
Similar Reads
You might also enjoy these articles
Bamboo Housing Challenge 2026: Design Affordable, Sustainable Homes Using Bamboo
An international design competition by Bamboo U and IBUKU inviting architects and designers to reimagine affordable housing using bamboo — with the winning design built full-scale in Bali.
Computational Design & Education: Beegraphy Design Awards Introduces 7th Category (Featuring Jiyun's Innovative Approach)
Dive into Beegraphy’s 7th Design Awards category, where computational design meets education to create immersive, interactive learning tools, inspired by Jiyun’s work.
From Parametric Lighting to Urban Furniture: Join the 2nd Workshop in Beegraphy’s Computational Design Series
Dive into Cutting-Edge Design Techniques and Practical Applications with Industry Experts
Explore Architecture Competitions
Discover active competitions in this discipline
The International Standard for Design Portfolios
The Global Benchmark for Architecture Dissertation Awards
The Global Benchmark for Graduation Excellence
Challenge to reimagine the Iron Throne
Comments (0)
Please login or sign up to add comments
No comments yet. Be the first to comment!