Victorian Terrace Renovation in Fitzroy: Fitzroy Laneway House by Andrew Child Architect
Renovating a Victorian terrace in Fitzroy, Andrew Child Architect merges historic charm with modern family living.
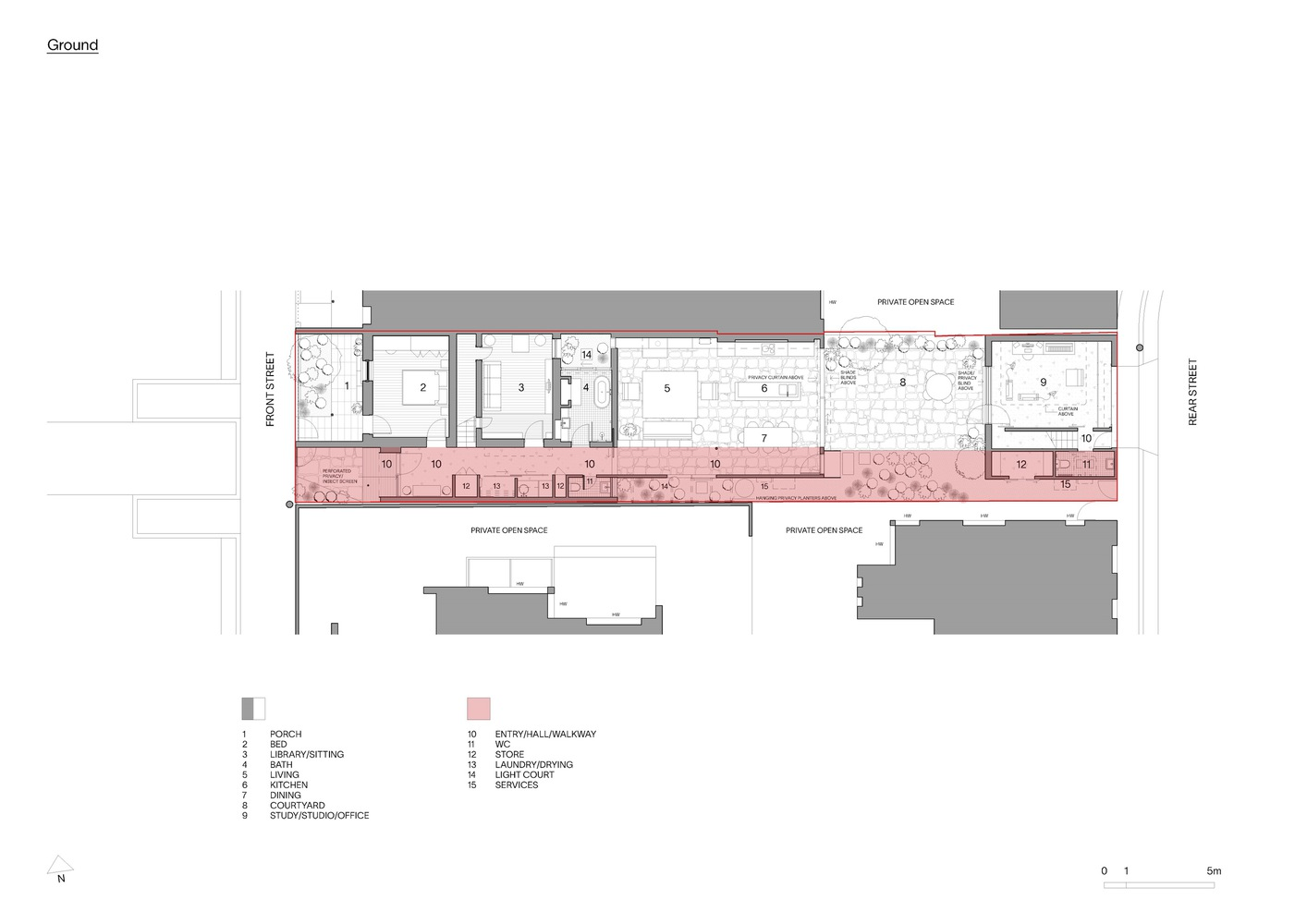
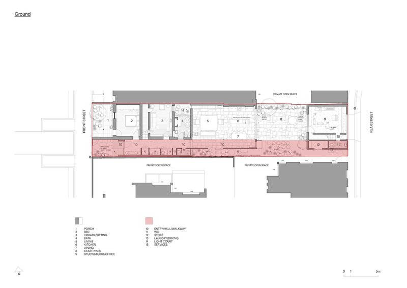
The Fitzroy Laneway House, nestled in the vibrant suburb of Fitzroy, Australia, is a compelling renovation project of a derelict semi-attached double-storey Victorian terrace. Completed in 2023 by Andrew Child Architect, this 253 square meter home seamlessly combines the historical charm of Fitzroy with contemporary living needs, offering a robust and generous accommodation for a family.





Design Approach and Contextual Response
Andrew Child Architect's renovation centers around the unique characteristics of Fitzroy’s urban fabric, utilizing an on-site laneway to organize the home’s layout and embrace the suburb’s historical and evolving neighborhood character. The project leverages the property’s dual street frontages to create distinct yet interconnected contemporary additions, enhancing the urban presence of Charlemont Terrace.











Spatial Organization and Materiality
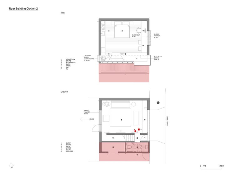
The house is divided into “served” and “servant” spaces, with a focus on adaptability and the potential for future living or working scenarios. The design respects the existing structure's urban significance while introducing modern materials and forms that contrast and complement the original Victorian elements. The interior juxtaposes the reserved urban exteriors with warm, verdant, and playful spaces, encouraging a relaxed and adaptable indoor lifestyle.













Sustainability and Environmental Considerations
Beyond aesthetic transformation, the Fitzroy Laneway House incorporates several environmental measures, including user-operated shading, deciduous planting, and solar power generation, to enhance its sustainability. The project not only revitalizes a piece of Fitzroy's architectural heritage but also sets a precedent for environmentally conscious urban living.
The Fitzroy Laneway House by Andrew Child Architect represents a thoughtful balance between historical preservation and modern innovation. Through strategic spatial reconfiguration, material selection, and environmental sustainability, this renovation project redefines the Victorian terrace for contemporary family life, embedding flexibility and adaptability at its core.














All Photographs are the work of Tom Ross
Popular Articles
Popular articles from the community
Louis Malle Cinema: A Limestone Cultural Landmark Revitalizing Community Life in Prayssac
Limestone cinema extension with public forecourt, blending heritage and modern design to create flexible cultural spaces and strengthen community interaction.
Atelier Macri Concept Store Interior Design by CASE-REAL
Atelier Macri store features a "ko" counter, walnut wood details, cork displays, blending retail, gallery, and seamless customer experiences.
On the Brooks House by Monsoon Collective – A Contemporary Kerala Home Rooted in Tradition
Kerala home blending tradition and modernity with water-inspired design, brick architecture, courtyard planning, and sustainable rainwater harvesting strategies.
Flamboyant House by Juliana Camargo + Prumo Projetos
Modern Brazilian house integrating existing tree, pool, and volumes with glass, wood, and transitional spaces blending interior, exterior, and landscape seamlessly.
Similar Reads
You might also enjoy these articles
Bamboo Housing Challenge 2026: Design Affordable, Sustainable Homes Using Bamboo
An international design competition by Bamboo U and IBUKU inviting architects and designers to reimagine affordable housing using bamboo — with the winning design built full-scale in Bali.
Computational Design & Education: Beegraphy Design Awards Introduces 7th Category (Featuring Jiyun's Innovative Approach)
Dive into Beegraphy’s 7th Design Awards category, where computational design meets education to create immersive, interactive learning tools, inspired by Jiyun’s work.
From Parametric Lighting to Urban Furniture: Join the 2nd Workshop in Beegraphy’s Computational Design Series
Dive into Cutting-Edge Design Techniques and Practical Applications with Industry Experts
Introducing Sphere by UNI: Pioneering a New Era in AEC Industry
Unlocking Global Potential with BIM and Agile Management
Explore Architecture Competitions
Discover active competitions in this discipline
The International Standard for Design Portfolios
The Global Benchmark for Architecture Dissertation Awards
The Global Benchmark for Graduation Excellence
Challenge to design mud housing for contemporary communities
Comments (0)
Please login or sign up to add comments
No comments yet. Be the first to comment!