Villa Orizzonte by UNICA Architects: A Modern Ode to Horizontal Living in Rural Italy
Villa Orizzonte by UNICA Architects is a low-slung, landscape-integrated villa in Italy, blending minimalism, nature, and modern comfort.
A Landscape-Integrated Contemporary Villa on the Banks of the River
Set on the gentle edge of a small country town in the Pianura Padana region, Villa Orizzonte by UNICA Architects harmonizes architecture and nature with quiet strength. Designed to seamlessly blend into its river-facing site, the villa redefines contemporary rural living with a deep sensitivity to topography, sunlight, and ecological integration.
With a clear southward orientation that embraces the expansive views of the river and surrounding fields, the villa becomes an architectural horizon—low, linear, and deeply connected to the earth. Built on the footprint of a once-standing rural farmhouse, this single-story residence respects the memory of the past while embracing the technologies and aesthetics of the future.


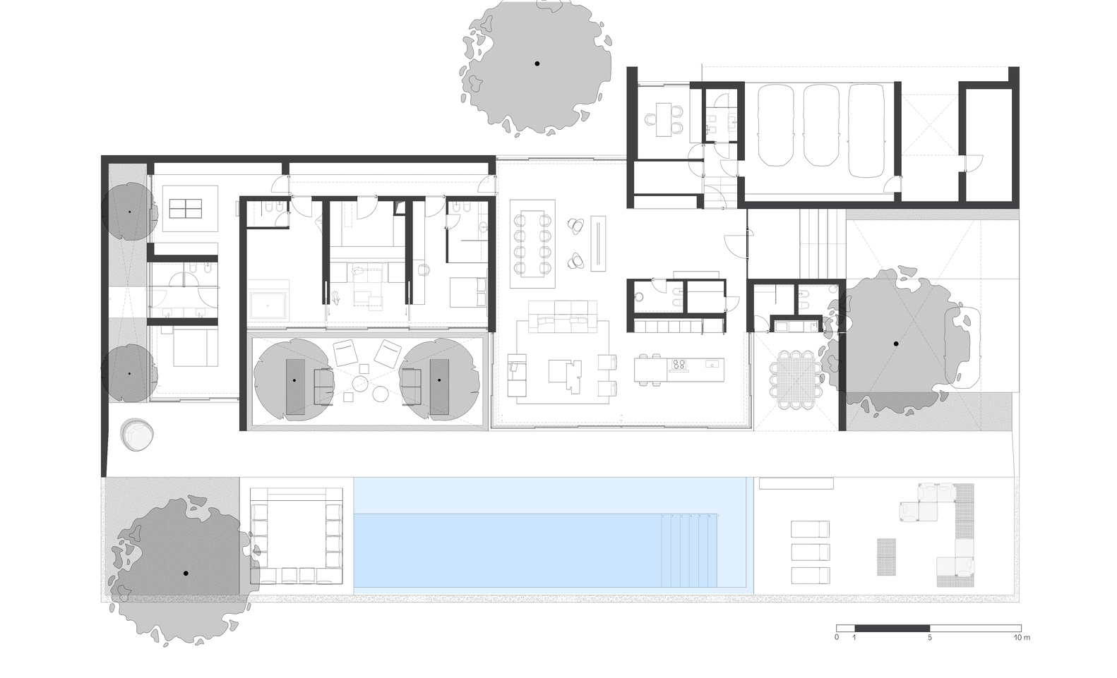
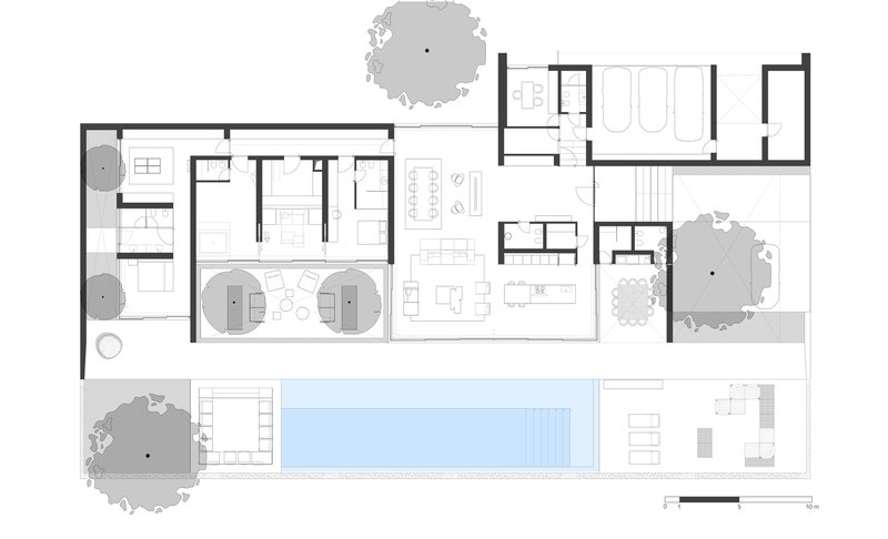
Architectural Concept: Embracing the Power of Horizontality
Rather than asserting a volumetric presence, Villa Orizzonte flows across the land as a horizontal line. Its roofscape becomes a fifth façade, meticulously designed with a pattern of solar panels, skylights, and strategic voids. These openings invite natural light, frame courtyards, and choreograph moments of spatial delight throughout the villa.
Four precisely carved voids in the roof establish an architectural rhythm. The first introduces the main entrance with the classical elegance of a Roman atrium. The second, tucked between bedrooms, hosts delicate Japanese Acer trees for privacy and serenity. The third, a secluded patio off the master suite, acts as a tranquil private garden. The fourth void, a zenithal skylight, softly illuminates the internal corridor.


Programmatic Division: A Dialogue Between Solidity and Lightness
The villa is organized into two main volumes, reflecting a balance between mass and transparency:
- The first box, clad entirely in stone, contains service-oriented spaces: a garage, technical rooms, and a home office.
- The second volume—lighter and more open—features the kitchen, dining area, living room, and three en-suite bedrooms. Expansive sliding glass doors dissolve the boundary between interior and landscape, transforming daily life into an open-air experience.
This approach to spatial division creates a perforated architectural form where courtyards become small, curated landscapes within the domestic realm, evoking a continuous indoor-outdoor flow.


Interiors: Minimalism, Comfort, and Material Expression
Inside, Villa Orizzonte offers maximum comfort, privacy, and flexibility. The living room is anchored by a suspended fireplace clad in marble, serving as a sculptural focal point while preserving visual connections between interior spaces and exterior courtyards.
The porch acts as a connective spine between communal areas, leading to a reflective pool that mirrors the façade, sky, and trees—extending the architecture through liquid reflections. Discreet minimal window frames, recessed into the structure, enhance transparency and reinforce the home’s immersive experience within nature.

Material Palette and Environmental Strategy
The design employs a cohesive architectural language, visible from macro-scale planning to the smallest detail. Sustainable systems, such as solar energy harvesting and natural cooling, underscore the villa's environmental responsibility.
Materials—like stone, marble, and glass—are used with a sense of timeless refinement. The landscape design by Frassinago Garden & Landscape complements the villa’s fluid architecture with native plantings and curated greenery that soften transitions and enhance privacy.

Villa Orizzonte: A Meditation on Space, Light, and Nature
Villa Orizzonte isn’t just a home—it's a meditative response to site, culture, and contemporary lifestyle. It balances modern minimalism with regional sensitivity, creating a timeless residence where architecture becomes part of the land.

All Photographs are works of Mariela Apollonio
Popular Articles
Popular articles from the community
Filtering Space: A Gradual Spatial Experience
From urban intensity to spatial calm.
20 Most Popular Commercial Architecture Projects of 2025
From sustainable market concepts to heritage factories, the commercial buildings and proposals that drew the most attention on uni.xyz this year.
Free Architecture Competitions You Can Enter Right Now
No entry fees, real prizes. Here are the best free architecture competitions open for submissions in 2026.
Split House: A Compact Urban Home Blending Privacy, Light, and Flexible Living in Japan
Compact Japanese home featuring DOMA space, flexible café potential, passive lighting, privacy zoning, and sustainable urban living design.
Similar Reads
You might also enjoy these articles
Filtering Space: A Gradual Spatial Experience
From urban intensity to spatial calm.
The Ken Roberts Memorial Delineation Competition (Krob)
As the most senior architectural drawing competition currently in operation anywhere in the world, it draws hundreds of entries each year, awarding the very best submissions in a series of medium-based categories.
Waterfront Redevelopment and Urban Revitalization in Mumbai: Forging a New Dawn for Darukhana
A transformative waterfront redevelopment project reimagining Darukhana’s shipbreaking heritage into an inclusive urban future.
OUT-OF-MAP: A Call for Postcards on Feminist Narratives of Public Space
Rhizoma Design and Research Lab invites artists, designers, architects, researchers, and students to reflect on how feminist perspectives can reshape public space. Selected works will be exhibited in Barcelona, October 2026. Submissions open until 15 April 2026.
Explore Architecture Competitions
Discover active competitions in this discipline
The International Standard for Design Portfolios
The Global Benchmark for Architecture Dissertation Awards
The Global Benchmark for Graduation Excellence
Challenge to reimagine the Iron Throne
Comments (0)
Please login or sign up to add comments
No comments yet. Be the first to comment!