Westminster Residence: A Modern Gabled House Design by Batay-Csorba Architects in Toronto’s High Park
Batay-Csorba Architects reinvent modern gabled house design with a dramatic, sculptural family home in Toronto’s High Park.
Reinterpreting Tradition Through Form and Materiality
Nestled within Toronto’s High Park neighborhood, the Westminster Residence by Batay-Csorba Architects reimagines the typology of the traditional Edwardian gabled home through the lens of modern gabled house design. Completed in 2024 and measuring 3,220 ft², this family home artfully balances architectural nostalgia with bold, contemporary expression. Its steep terracotta roofline and monolithic massing create a striking contrast within its historical context, offering a refined yet provocative insertion into the neighborhood fabric.




The project navigates the architectural paradox of blending in while standing out. It maintains formal continuity with its gabled neighbors, but deconstructs and abstracts those familiar geometries into something sculptural and unexpected.



A Sculptural Form of Three Contrasting Masses
The house is composed of three key architectural volumes: a grounded, low brick base; a sharply angular, dark stone-clad roof; and two tall, rectilinear dormers that act as counterpoints. This tripartite composition contributes to the building’s visual drama. The massive roof, asymmetrical and commanding, appears to hover atop the ground floor, creating overhangs that protect outdoor areas like a carport and side patio.



These volumes generate tension through contrast—solidity versus lightness, groundedness versus suspension—and this formal complexity defines the character of the residence from every angle. While the silhouette evokes the archetypal gable, it subverts it with asymmetry and massing shifts that create spatial intrigue.



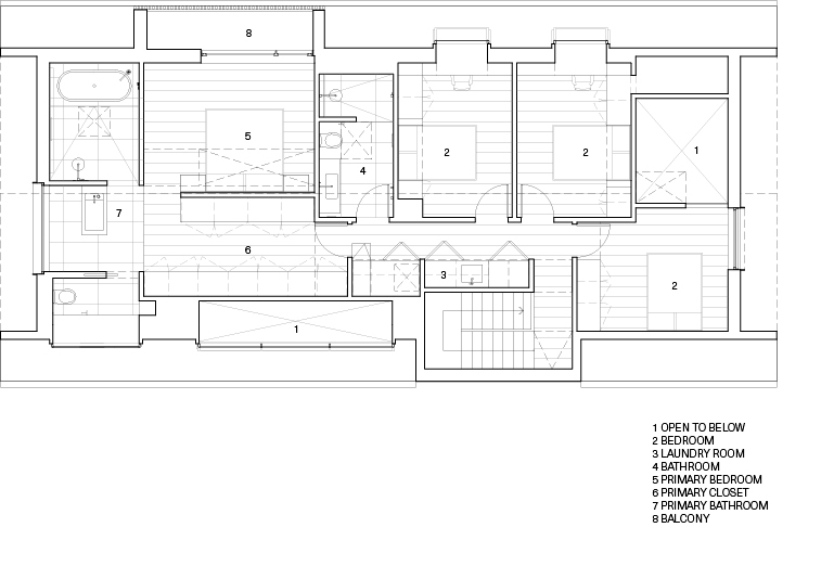
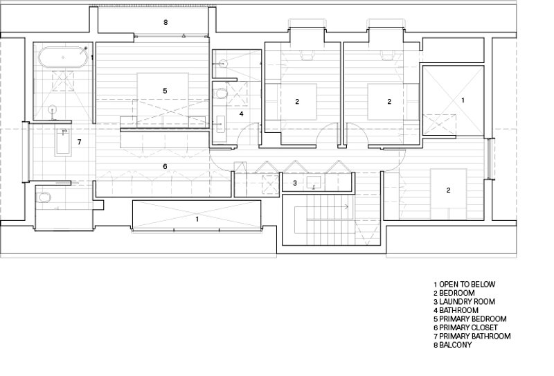
Dormers as Anchors and Elevations
While both dormers share a similar materiality and scale, they are treated in diametrically opposite ways. The west dormer grounds the facade, descending toward the earth and engaging the streetscape. In contrast, the east dormer hovers—cantilevered above the carport like a sculptural appendage. This duality reinforces the house’s broader architectural narrative: a constant interplay between weight and lift, darkness and light, enclosure and release.


These dormers do more than punctuate the exterior—they frame views, capture light, and articulate the home’s internal volumes. They also break the monolithic reading of the roof form, introducing rhythm and layered geometries.


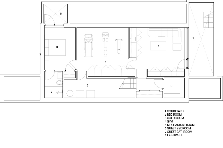
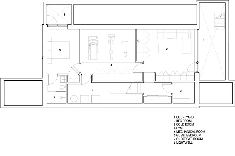
Occupying the Underside of the Roof
The most radical spatial gesture of the Westminster Residence is its occupation of the underside of the gable. Unlike conventional homes where the attic is residual, here the roof becomes the primary spatial envelope. Interior volumes are sculpted into the steep roof, resulting in dramatic double-height areas and compressed zones that shift as one moves through the house.


This architectural approach draws from the experience of inhabiting attics but elevates it to a central design concept—transforming negative space into dynamic living areas. In doing so, the house establishes a new formal identity while remaining familiar in its profile.


Interior Atmosphere: Dark Drama Meets Soft Light
The interior palette stages a theatrical contrast. Described by the architects as “Villain’s lair meets light and airy refuge,” the materials oscillate between heavy and delicate. The darker sections of the home feature rich, plain-sawn walnut, unfilled travertine, dark lime wash walls, and textured concrete. These spaces are cocooning and cavernous, creating a sense of intimacy and weight.

In contrast, areas of light-filled verticality are defined by soft lime-wash walls, wide white oak planks, and gauzy linen drapery. These spaces feel lifted, calm, and open—amplifying the home’s spatial drama by oscillating between compression and release.

The choreography of this material sequence tells a story as one moves through the house, heightening sensory experience and making each transition between rooms feel intentional and emotionally resonant.

A Contextual Yet Progressive Family Home
Despite its formal boldness, the Westminster Residence maintains a respectful dialogue with its surrounding Edwardian neighborhood. Its gabled silhouette and materials nod to tradition, while its spatial complexity and compositional daring mark it as distinctly contemporary. The architects have crafted a design that offers depth on both the urban and human scale—enriching its setting while delivering a unique domestic environment.




As an exploration of modern gabled house design, the project successfully bridges nostalgia with innovation. It proves that contemporary architecture can engage context not by imitation, but through intelligent reinterpretation and poetic contradiction.





All Photographs are works of Doublespace Photography Younes Bounhar
Popular Articles
Popular articles from the community
Cafe MADA: A Chiang Rai Pavilion in a Mango Orchard
BodinChapa Architects threaded a 254 m² black-roofed cafe through an existing mango orchard in Chiang Rai, Thailand, built around mature trees.
Gunawarman 35: Jakarta's Corner of Quiet Complexity
WOFF's mixed-use building in Jakarta pairs translucent glass block walls with a buff brick cylinder to hold coffee, wellness, and work under one roof.
Guangzhou's Twin Towers Interiors Move Like Water
DuShe Architectural Design shapes the lobbies of a massive Guangzhou transit hub with undulating ceilings and deep geological materiality.
Filtering Space: A Gradual Spatial Experience
From urban intensity to spatial calm.
Similar Reads
You might also enjoy these articles
Bamboo Housing Challenge 2026: Design Affordable, Sustainable Homes Using Bamboo
An international design competition by Bamboo U and IBUKU inviting architects and designers to reimagine affordable housing using bamboo — with the winning design built full-scale in Bali.
Computational Design & Education: Beegraphy Design Awards Introduces 7th Category (Featuring Jiyun's Innovative Approach)
Dive into Beegraphy’s 7th Design Awards category, where computational design meets education to create immersive, interactive learning tools, inspired by Jiyun’s work.
From Parametric Lighting to Urban Furniture: Join the 2nd Workshop in Beegraphy’s Computational Design Series
Dive into Cutting-Edge Design Techniques and Practical Applications with Industry Experts
Explore Architecture Competitions
Discover active competitions in this discipline
The International Standard for Design Portfolios
The Global Benchmark for Architecture Dissertation Awards
The Global Benchmark for Graduation Excellence
Challenge to reimagine the Iron Throne
Comments (0)
Please login or sign up to add comments
No comments yet. Be the first to comment!