White Brick House by PLAN Architects Office
A mixed-use house in Gwangju where brick, courtyards, and layered boundaries harmonize family living, rental spaces, and mountain village life.
Set within the foothills of Mudeungsan Mountain in Gwangju, South Korea, White Brick House by PLAN Architects Office is a carefully balanced mixed-use project that explores the architectural potential of boundaries: between private and public, domestic and commercial, openness and retreat. Completed in 2022 with a total floor area of 425 m², the house combines a family residence with rental spaces for cafés or workshops, responding sensitively to both site conditions and social context.
Negotiating Boundaries Between Living, Working, and Landscape in Gwangju

Rather than separating functions through rigid zoning, the project adopts a nuanced architectural strategy that allows different programs to coexist while maintaining independence, dignity, and environmental comfort.

A Village Between Mountain and Everyday Life
The site is located in a small residential district developed in the early 2000s to relocate residents from the Jeungsimsa Temple area of Mudeungsan Mountain. This setting occupies a unique position, neither fully urban nor completely rural. The sounds of water rushing through the nearby valley, the presence of hikers and visitors stopping for tea, and the daily rhythms of local residents create a village atmosphere that is calm yet subtly animated.


PLAN Architects approached the project with an understanding that the house would not exist in isolation. It would contribute to the spatial continuity of the neighborhood, mediate between nature and daily life, and serve as both a private dwelling and a social interface.


Programmatic Challenge: Living and Renting Under One Roof
The clients, a middle-aged couple with two sons, requested a commercial-residential building that could accommodate family life while generating income through rental spaces. This posed a fundamental architectural challenge: how to reconcile the contrasting requirements of domestic intimacy and public accessibility without fragmenting the building into disconnected parts.

PLAN Architects rejected the idea of strict separation. Instead, they pursued a strategy of controlled connectivity, allowing spaces to relate visually, environmentally, and spatially while maintaining functional clarity. The result is a layered architectural composition in which boundaries are carefully designed rather than erased.

Architecture of Boundaries: Porosity and Perception
The defining concept of White Brick House lies in its treatment of boundaries. Several architectural devices articulate this theme:
- Porous Walls: The perforated brick façade shields the living areas from direct views and harsh sunlight while allowing air, filtered light, and visual depth. At night, the wall glows softly, illuminating the narrow street and contributing to the neighborhood’s atmosphere.
- Courtyard: Penetrating both residential and rental spaces, the courtyard functions as an environmental moderator. It controls daylight and ventilation while drawing natural phenomena—rain, snow, sound, and shadow—into the interior. Rather than a static void, it becomes a sensory mediator between inside and outside.
- Residual Spaces: A narrow northeast space, formed to ensure adequate northern sunlight, is planted with bamboo and paired with front windows to create unexpected moments of spatial discovery.


Through these elements, the house encourages awareness of proximity without discomfort, maintaining privacy while sustaining connection.
Levels and Topography as Design Drivers
The site presents subtle but significant level differences: the rear is 0.5 meters lower than the front road, while the pedestrian path on the right side sits 0.8 meters higher. Rather than flattening these conditions, PLAN Architects embraced them.

The ground-floor rental space is designed on two levels, responding directly to the site’s topography. This split-level configuration strengthens visual and spatial connections to the bamboo forest at the rear, enriching the experience for commercial users.
Meanwhile, the residential entrance, accessed from the higher pedestrian road, clearly distinguishes domestic life from commercial activity. This separation is not abrupt but intuitive, achieved through subtle shifts in level and circulation rather than walls alone.

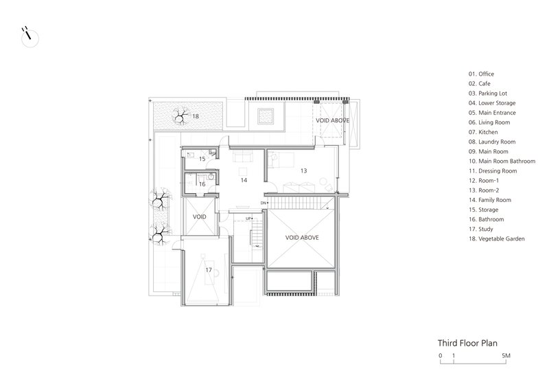
Interior Spatial Hierarchy: Centrality and Elevation
The residential spaces unfold vertically, culminating in a 1.5-storey-high living room on the second floor. This space establishes a sense of openness and centrality within the home, acting as the heart of family life.
Above it, a rooftop deck offers panoramic views of Mudeungsan Mountain. Elevated above everyday domestic routines, this outdoor space provides a contemplative vantage point, neither entirely private nor fully exposed.



On the third floor, an annex space is deliberately detached from the main interior. This separation reflects the family’s desire for uninterrupted contemplation, particularly for the father. Architecture here supports psychological needs as much as functional ones.

Material Strategy: Brick as Landscape
The project’s defining visual identity comes from its white brick exterior. The brickwork is not applied uniformly; instead, it protrudes, staggers, and recedes, creating depth and shadow across the façade.
This articulation serves multiple purposes:
- It enhances entrance recognizability.
- It introduces visual rhythm through contrast and void.
- It establishes continuity with the neighboring context, referencing the red window frames of the adjacent building.

The architects envisioned the brick façade as part of a sequential landscape, potentially extending toward a future childcare facility planned on the adjacent plot. While this continuation remains uncertain, the gesture itself reflects a commitment to urban coherence at a small scale.

Light, Time, and Material Aging
Material choices inside and out reinforce the project’s temporal sensitivity. The hardwood finishes in the ground-floor commercial space are designed to fade under natural light, allowing time to visibly inscribe itself on the surfaces.

Elsewhere, the building is finished with white, stain-resistant external insulation, brightening the shaded mountain village where sunlight disappears early in the day. This luminous envelope enhances both interior comfort and the collective atmosphere of the street.
Inside, wood, concrete, glass, and carefully modulated lighting create spaces that feel calm yet tactile, restrained yet warm.
A Quiet Contribution to the Neighborhood
White Brick House does not seek to dominate its surroundings. Instead, it operates as a mediator: between mountain and village, private life and public use, permanence and change.


By treating boundaries as experiential zones rather than rigid divisions, PLAN Architects have created a building that adapts to multiple roles while maintaining architectural clarity. The project demonstrates how small-scale mixed-use architecture can support family life, local economy, and environmental sensitivity within a single, cohesive form.
All the Photographs are works of Yoon, joon hwan
Popular Articles
Popular articles from the community
CTA | Creative Architects Designs Triangular Floating Shelters for Vietnam's Flood-Ravaged Communities
A timber-louvered triangular shelter rises on concrete pontoons to keep Vietnamese families safe and together when floodwaters come.
De la Riva Sherry Homes By Juan Vega Arquitectos
De la Riva Sherry Homes transform a historic winery into unique residences, blending industrial heritage, modern comfort, and community-focused courtyard living.
Three Architects Stitch a Social Center into a Crumbling Galician Hamlet
In Muimenta, Spain, timber and plywood volumes graft onto granite ruins to anchor a rural revitalization effort.
Not All Architecture Grounds a Timber Retreat in Victoria's Coastal Bushland
Ironbark House stretches low beneath eucalyptus canopy, threading a quiet domestic life between courtyard, deck, and landscape.
Similar Reads
You might also enjoy these articles
Filtering Space: A Gradual Spatial Experience
From urban intensity to spatial calm.
The Ken Roberts Memorial Delineation Competition (Krob)
As the most senior architectural drawing competition currently in operation anywhere in the world, it draws hundreds of entries each year, awarding the very best submissions in a series of medium-based categories.
Waterfront Redevelopment and Urban Revitalization in Mumbai: Forging a New Dawn for Darukhana
A transformative waterfront redevelopment project reimagining Darukhana’s shipbreaking heritage into an inclusive urban future.
OUT-OF-MAP: A Call for Postcards on Feminist Narratives of Public Space
Rhizoma Design and Research Lab invites artists, designers, architects, researchers, and students to reflect on how feminist perspectives can reshape public space. Selected works will be exhibited in Barcelona, October 2026. Submissions open until 15 April 2026.
Explore Architecture Competitions
Discover active competitions in this discipline
The International Standard for Design Portfolios
The Global Benchmark for Architecture Dissertation Awards
The Global Benchmark for Graduation Excellence
Challenge to reimagine the Iron Throne
Comments (0)
Please login or sign up to add comments
No comments yet. Be the first to comment!