Whitestone Gallery Beijing 798: A Masterpiece of Innovative Gallery Design
The article explores Whitestone Gallery Beijing 798, showcasing its innovative design by Kengo Kuma within the historical 798 Art Zone.
Whitestone Gallery Beijing 798, designed by Kengo Kuma & Associates, represents a pinnacle of innovative gallery design, situated in the historically rich 798 Art Zone in Beijing, China. This gallery, which opened in 2023, showcases a remarkable blend of historical context and modern architectural innovation, making it a notable addition to the global network of White Stone Galleries.


Historical Context and Design Inspiration
The Transformation of Beijing 798 Art Zone
Originally a factory campus built in the 1950s with Soviet and East German collaboration in the Bauhaus style, the Beijing 798 Art Zone has evolved into a vibrant hub for art and culture. This transformation set the stage for the establishment of Whitestone Gallery, which is the first of its kind on the Chinese mainland.


Architectural Philosophy Behind the Design
The design philosophy of Kengo Kuma & Associates emphasizes harmony between historical elements and cutting-edge architectural techniques. For Whitestone Gallery, the firm drew inspiration from the area’s industrial past while introducing modern aesthetics that redefine the art viewing experience.


Innovative Design Features of Whitestone Gallery
Unique Facade and Entrance Design
The gallery's facade is ingeniously crafted with a three-dimensional canopy made from 3mm thick wood-grain aluminum panels. This striking entrance is not only visually appealing but also serves as a landmark within the 798 district, attracting art enthusiasts and casual visitors alike.


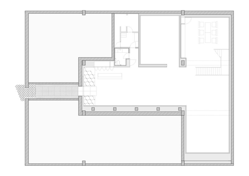
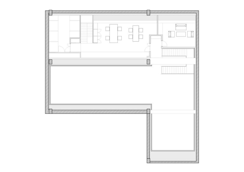
Internal Layout and Spatial Dynamics
Passing through the entrance, visitors encounter a tunnel-like space that transitions from the urban exterior to a serene art world. This design employs wood-grain line materials and varying construction techniques to create a sense of movement and flow, leading visitors towards the main exhibition areas.


Highlighting Art Through Architectural Elements
Exhibition Space Design
Inside, the gallery maintains a minimalist aesthetic with white walls and a large vaulted roof that exposes rough, aged concrete. This choice of materials and design not only highlights the art but also pays homage to the building's industrial origins, creating a perfect backdrop for the featured collections.



Lighting and Atmosphere
The lighting design, executed by Lighting Workshop Co., complements the architectural features by providing a subdued atmosphere that enhances the artwork. The lighting setup ensures that each piece is viewed under optimal conditions, emphasizing texture and color without overwhelming the senses.


Whitestone Gallery as a Model for Future Designs
Whitestone Gallery Beijing 798 exemplifies how innovative gallery design can transform the way art is experienced. By seamlessly blending historical elements with modern architectural practices, Kengo Kuma & Associates have created a space that is not only a hub for art but also a testament to architectural innovation.

All photographs are work of Yumeng Zhu