Wonderkin Edutainment Center: Innovating Kids' Educational Play Spaces
This article highlights the Wonderkin Edutainment Center, emphasizing its design as a sophisticated yet playful learning environment for children.
The Wonderkin Edutainment Center, designed by Manmade Studio, represents a significant advancement in kids' educational play spaces. Located in Kuwait City, this center blends fun, education, and sophisticated design to create an engaging environment for children of various age groups.




Design and Concept of Wonderkin Edutainment Center
Emphasis on Playful Learning
At the heart of the Wonderkin Edutainment Center's philosophy is the integration of play with educational opportunities. The center is specifically designed for kids from toddlers to preteens and includes a variety of play areas that promote active learning and interaction.




Aesthetic and Functional Layout
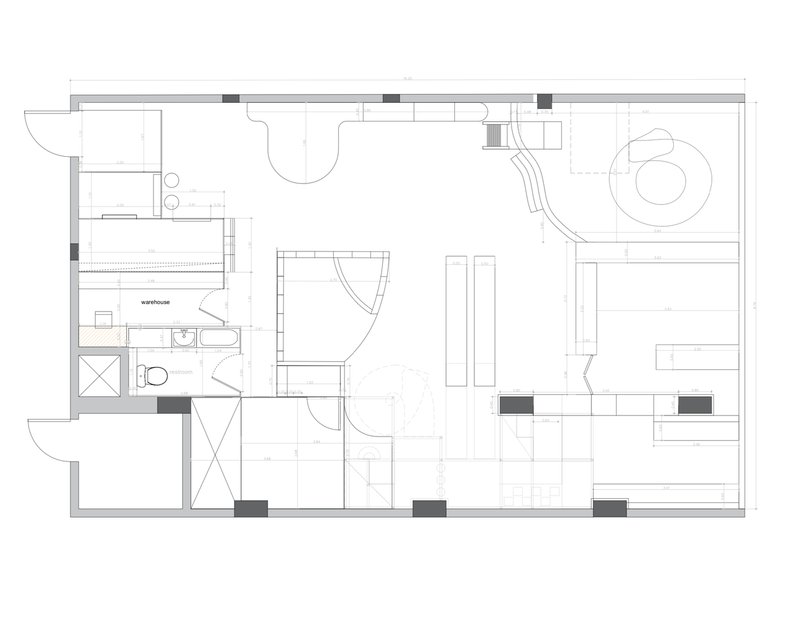
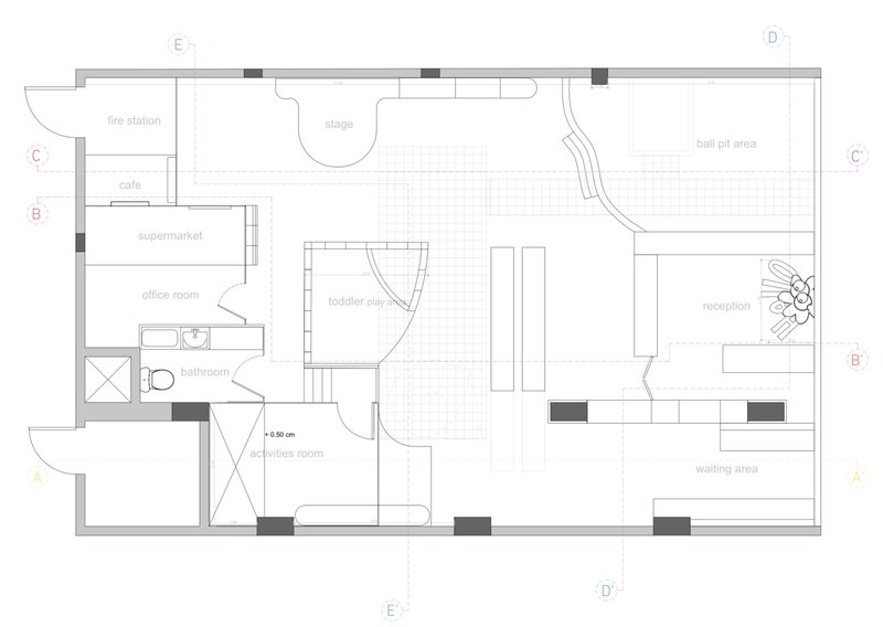
The center spans 180 square meters and features a 'colorful Nordic' theme with pastel leathers, natural wooden furniture, and toys. This design approach not only appeals to children but also creates a welcoming space for parents. The center includes a reception area, a waiting area for parents, and diverse play zones.


Innovative Design Features
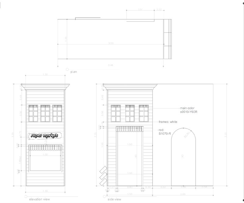
Customized Play Areas
Manmade Studio has meticulously designed various play sections within the center, including mini-buildings where children can role-play in different professions like shoppers, baristas, firemen, or craftsmen. These areas are not only fun but are crafted to spark creativity and practical learning.


Safety and Material Use
Safety is paramount in the design of the Wonderkin Edutainment Center. All play surfaces are cushioned with soft leather, and the structure includes anti-bacterial cork flooring to ensure hygiene. The play areas feature fiberglass slides custom-designed for color coordination and aesthetic appeal.


Challenges and Solutions in Construction
Design and Construction Constraints
The project faced several challenges, particularly because the lease was signed before the design phase began, compressing the timeline severely. This required simultaneous design and construction document production, particularly for the complex slide structures.





Material Sourcing and Installation
The sourcing of cork flooring was particularly challenging due to the need for early ordering and the long lead times associated with shipping. The construction of the soft play jungle and the structural design of a hanging bridge also presented significant hurdles that were overcome through precise engineering and design innovation.





Setting a New Standard for Educational Play Spaces
The Wonderkin Edutainment Center by Manmade Studio sets a new standard for kids' educational play spaces. Through thoughtful design, attention to safety, and innovative use of materials, the center offers a stimulating environment where children can learn and grow while playing. This project not only enhances the community of Kuwait City but also serves as a model for future developments in educational play facilities worldwide.





All photographs are work of Mohammad Ashkanani
Popular Articles
Popular articles from the community
Solar Steam: A Climate-Responsive Architecture That Redefines the Monument
A climate-responsive memorial architecture that transforms heat, decay, and time into a living system reflecting humanity’s ecological impact.
Atelier Macri Concept Store Interior Design by CASE-REAL
Atelier Macri store features a "ko" counter, walnut wood details, cork displays, blending retail, gallery, and seamless customer experiences.
A Contemporary Take on Iranian Residential Architecture
A modern interior design in Mashhad that reinterprets brick, light, and spatial flow to create a warm, contemporary residential architecture.
On the Brooks House by Monsoon Collective – A Contemporary Kerala Home Rooted in Tradition
Kerala home blending tradition and modernity with water-inspired design, brick architecture, courtyard planning, and sustainable rainwater harvesting strategies.
Similar Reads
You might also enjoy these articles
The Ken Roberts Memorial Delineation Competition (Krob)
As the most senior architectural drawing competition currently in operation anywhere in the world, it draws hundreds of entries each year, awarding the very best submissions in a series of medium-based categories.
Waterfront Redevelopment and Urban Revitalization in Mumbai: Forging a New Dawn for Darukhana
A transformative waterfront redevelopment project reimagining Darukhana’s shipbreaking heritage into an inclusive urban future.
OUT-OF-MAP: A Call for Postcards on Feminist Narratives of Public Space
Rhizoma Design and Research Lab invites artists, designers, architects, researchers, and students to reflect on how feminist perspectives can reshape public space. Selected works will be exhibited in Barcelona, October 2026. Submissions open until 15 April 2026.
Documentation Work on Buddhist Wooden Temple
Architectural syncretism and cultural hybridity: A comparative study of the Buddhist temples in Chattogram Hill tracks
Explore Architecture Competitions
Discover active competitions in this discipline
The International Standard for Design Portfolios
The Global Benchmark for Architecture Dissertation Awards
The Global Benchmark for Graduation Excellence
Challenge to design luxury tourism on rails
Comments (0)
Please login or sign up to add comments
No comments yet. Be the first to comment!