Workplace Renovation Design: Northpointe Bank Operations Center by Ghafari Associates
The Northpointe Bank Operations Center by Ghafari Associates transforms a former building into a dynamic, sustainable workplace with natural light and innovation.
Northpointe Bank Operations Center
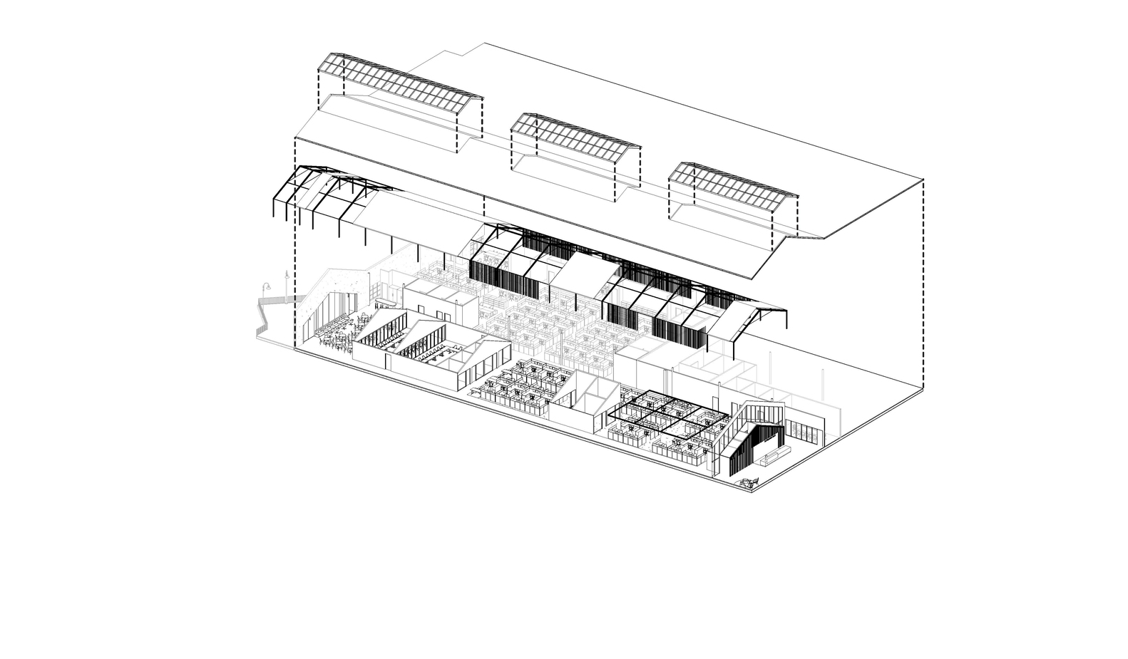
Located in Grand Rapids, Michigan, the Northpointe Bank Operations Center represents a transformative workplace renovation that reimagines the former Cascade Commons building into an innovative hub for the bank’s growing residential lending and servicing operations. This 91,000 square-foot facility was once an aging, nearly vacant structure, now revitalized to meet the demands of a modern, high-performance workplace. Ghafari Associates, LLC spearheaded the redesign to create an environment that balances functionality with aesthetic appeal, supporting Northpointe’s mission to be the best bank in America by delivering innovative solutions and fostering a collaborative work culture.



A Strategic Design Process: Understanding Key Business Drivers
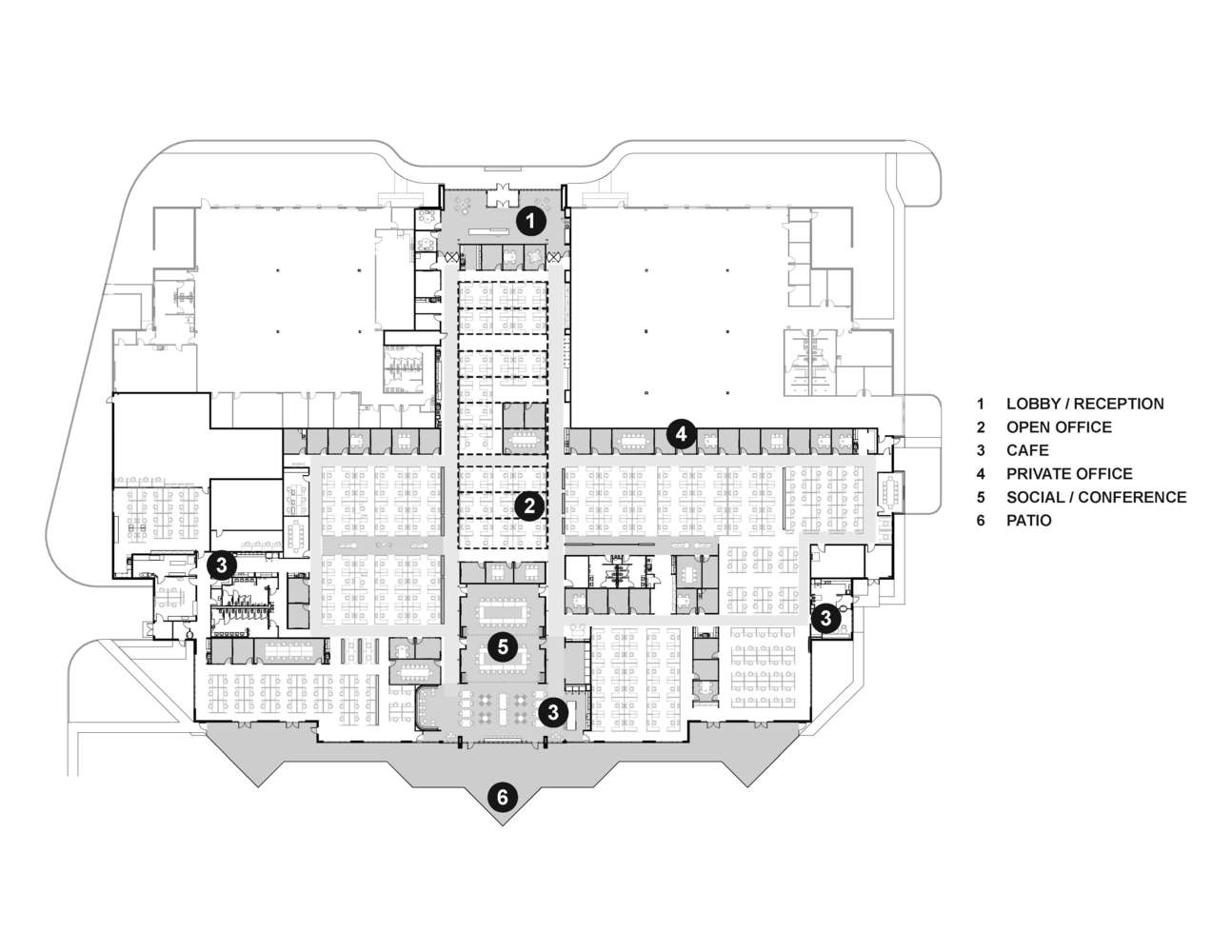
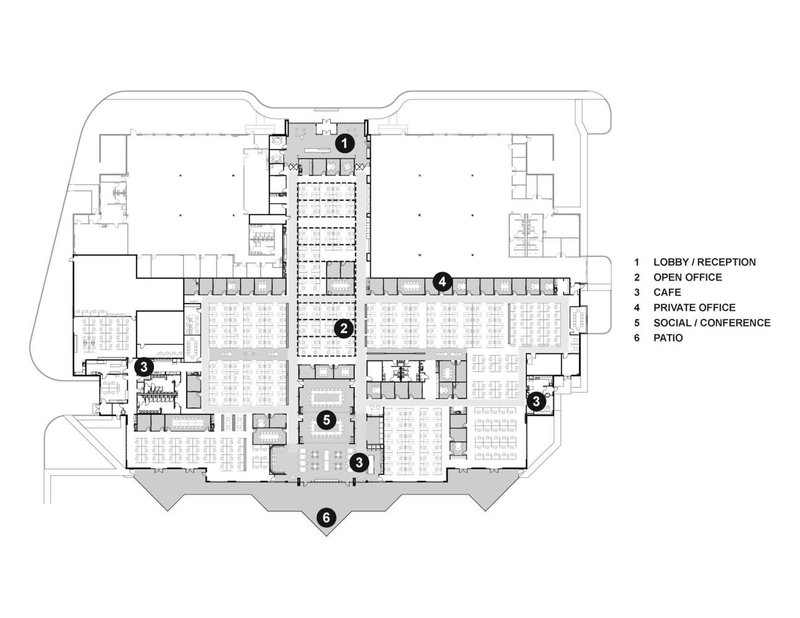
Before diving into the design process, Ghafari Associates focused on developing a comprehensive roadmap to understand Northpointe’s key business drivers. This roadmap was crucial in identifying the needs of the bank’s employees, technology, and real estate. By understanding these factors, the design team could create a space that was not only functional but aligned with Northpointe’s long-term goals. The result is a seamless integration of diverse workspaces, advanced meeting areas, and vibrant social spaces—all tailored to foster collaboration, flexibility, and innovation.




Maximizing Natural Light and Integrating Michigan’s Natural Beauty
A hallmark of the Northpointe Bank Operations Center is its emphasis on natural light. The design team capitalized on the building's original features, including a massive interior skylight that spans the full depth of the building. This skylight not only improves natural lighting throughout the space but also serves as a visual anchor, symbolizing Northpointe’s future while honoring the building’s past.
Incorporating elements of Michigan's natural beauty into the design was another key strategy. The architecture reflects the state’s landscapes through design choices and materials that evoke the local environment, connecting the workspace with the natural world outside. These thoughtful design elements help create a more inviting and engaging workplace, enhancing the overall employee experience.




The Role of the General Contractor: Visser Brothers Inc.
A crucial component of the renovation’s success was the early involvement of Visser Brothers Inc., the general contractor for both the original Cascade Commons building and its transformation into the Northpointe Bank Operations Center. With their deep understanding of the building’s history and construction methods, Visser provided invaluable insight that helped ensure a seamless integration of new design elements while preserving the integrity of the existing structure.
This collaboration allowed for a smooth renovation process, ensuring that the final product met both functional and aesthetic standards while staying on schedule and within budget.



Designing a Dynamic and Flexible Workplace
The Northpointe Bank Operations Center is a prime example of how adaptive reuse can breathe new life into outdated buildings. The renovation introduced flexible workspaces designed to meet the needs of a diverse and dynamic workforce. The result is a forward-thinking environment that supports collaboration, fosters creativity, and enhances employee engagement. By focusing on human-centered design, the project aligns with Northpointe's vision of creating a high-performance and diverse company culture.


This transformation demonstrates how thoughtful design can elevate a workplace by balancing the needs of the organization with the well-being of its employees. The innovative approach to workplace renovation exemplifies how businesses can embrace sustainability and adaptability while creating spaces that encourage productivity and collaboration.





A Bright Future for Northpointe Bank
Now complete, the Northpointe Bank Operations Center stands as a beacon of innovation and workplace excellence in West Michigan. The renovation has succeeded in creating a space that not only meets the current needs of Northpointe but also sets the stage for future growth. The integration of natural light, sustainable design practices, and thoughtful use of space enhances the employee experience while supporting Northpointe’s commitment to delivering value and innovation to the communities it serves.






With its flexible and human-centered design, the Northpointe Bank Operations Center sets a new standard for workplace renovation, offering a model for other organizations looking to create dynamic, forward-thinking office spaces.




All Photographs are work of James John Jetel, Jason Keen
Popular Articles
Popular articles from the community
Alton Cliff House: A Harmonious Retreat by f2a Architecture in Lake Country, Canada
Alton Cliff House blends corten steel, prefabrication, and sustainable design, creating a luxurious, energy-efficient retreat perched on Canadian cliffs.
Free Architecture Competitions You Can Enter Right Now
No entry fees, real prizes. Here are the best free architecture competitions open for submissions in 2026.
Inverted Architecture Installation by Studio Link-Arc: Exploring the Intersection of Architecture and Living Organisms
Inverted Architecture Installation by Studio Link-Arc blends mycelium, sustainability, inverted design, ecological cycles, and urban adaptive architecture in Shenzhen.
Gads Hill Early Learning Center by JGMA: Adaptive Reuse Shaping Community-Focused Educational Architecture
Adaptive reuse transforms fragmented structure into vibrant early learning center with playful façade, natural light, and community-focused sustainable design.
Similar Reads
You might also enjoy these articles
The Ken Roberts Memorial Delineation Competition (Krob)
As the most senior architectural drawing competition currently in operation anywhere in the world, it draws hundreds of entries each year, awarding the very best submissions in a series of medium-based categories.
Waterfront Redevelopment and Urban Revitalization in Mumbai: Forging a New Dawn for Darukhana
A transformative waterfront redevelopment project reimagining Darukhana’s shipbreaking heritage into an inclusive urban future.
OUT-OF-MAP: A Call for Postcards on Feminist Narratives of Public Space
Rhizoma Design and Research Lab invites artists, designers, architects, researchers, and students to reflect on how feminist perspectives can reshape public space. Selected works will be exhibited in Barcelona, October 2026. Submissions open until 15 April 2026.
Documentation Work on Buddhist Wooden Temple
Architectural syncretism and cultural hybridity: A comparative study of the Buddhist temples in Chattogram Hill tracks
Explore Architecture Competitions
Discover active competitions in this discipline
The International Standard for Design Portfolios
The Global Benchmark for Architecture Dissertation Awards
The Global Benchmark for Graduation Excellence
Challenge to reimagine the Iron Throne
Comments (0)
Please login or sign up to add comments
No comments yet. Be the first to comment!