You Won't Believe How This Abandoned Bakery Became the Most Jaw-Dropping Home in NZ!
What inspired the unique renovation of Auba Studio's NZ10 home from an old bakery?

Palma's dense neighbourhoods are not always the first choice for homeowners when it comes to finding affordable housing. However, one couple from the city took a unique approach to address this issue and transformed an old bakery from the 80s into a stunning, light-filled home that is making waves in the architecture and design world.
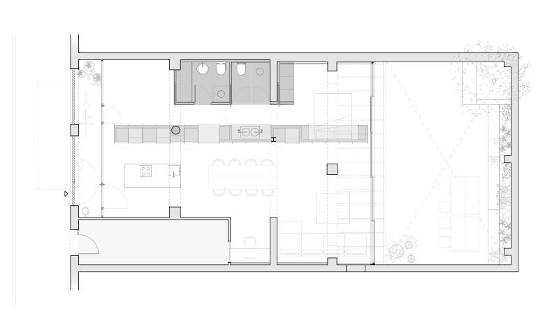
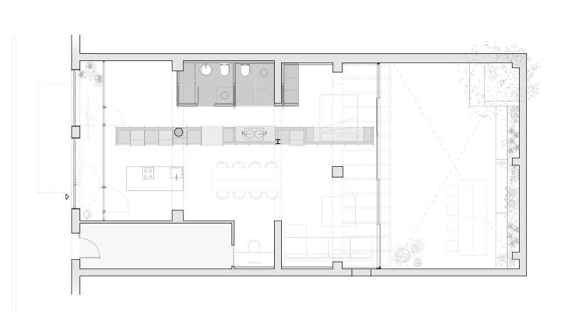
Located on the ground floor, NZ10 is the result of a creative renovation project that sought to strike a balance between natural lighting, privacy, and landscape. The project, led by Auba Studio's José Hevia, focused on converting the space into a comfortable home that maximizes the use of natural light while maintaining privacy.
The project's most significant challenge was to manage the limited space while still creating a spacious and airy home. The design team addressed this issue by creating a patio in the backyard, which was previously a kitchen. The patio now serves as a support for patio plants and as an acoustic cushion.
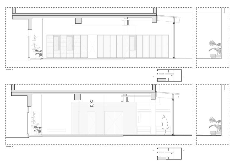
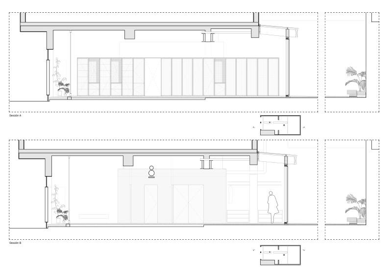
To ensure a consistent flow of light between the front and back areas of the home, a wall that divided the kitchen from the front area was opened. The back part was joined with the front part, creating a sense of continuity in the space. Stained glass windows were installed, which go from wall to wall, with one located on the front side and another on the back facing the patio.
The design team also focused on creating a space that provides maximum privacy. To achieve this, an intermediate space was generated, leading directly from the interior of the house to the outside through a stained-glass window. The intermediate space, called a "batiport," is protected from outside views by means of a system of inclined steel slats, inspired by the solutions made by the Cru studio in Barcelona.
Nature is introduced to the home by generating an interior landscape. A linear planter was created in the patio with a continuous bench visible from anywhere inside. A larger parterre houses a tree and a technical space. The patios, front and rear, are visually part of the interior of the house, creating a feeling of spaciousness.
The distribution of the space is achieved by a linear piece of fir wood furniture, placed perpendicular to the patio. The furniture allows the flow of light between the patio and the facade while dividing the house into two areas: the living area and the bedroom zone. The living area comprises a living room-dining room-kitchen with the kitchen centred on a stainless-steel island supported by the main cabinet. The night area includes two bedrooms, a main one with an en-suite bathroom, and an auxiliary room. Between both rooms, the bathroom areas are located.
The design team used fir wood elements for all the new interventions, providing a clear demarcation of the new actions while offering warmth to a space with little light. The renovation of the old bakery into NZ10 is a great example of how creativity and innovation can be used to create unique and comfortable living spaces out of seemingly unusable spaces.






















Popular Articles
Popular articles from the community
Inverted Architecture Installation by Studio Link-Arc: Exploring the Intersection of Architecture and Living Organisms
Inverted Architecture Installation by Studio Link-Arc blends mycelium, sustainability, inverted design, ecological cycles, and urban adaptive architecture in Shenzhen.
A Contemporary Take on Iranian Residential Architecture
A modern interior design in Mashhad that reinterprets brick, light, and spatial flow to create a warm, contemporary residential architecture.
Treehouse Apartment: A Warm Timber Interior Blending Craft, Play, and Contemporary Living
Warm timber apartment with integrated treehouse, combining natural materials, craftsmanship, and playful design to create a flexible, family-oriented living environment.
The Ken Roberts Memorial Delineation Competition (Krob)
As the most senior architectural drawing competition currently in operation anywhere in the world, it draws hundreds of entries each year, awarding the very best submissions in a series of medium-based categories.
Similar Reads
You might also enjoy these articles
Zhuxi Wonderland: Reimagining Traditional Chinese Gardens by Doarchi Architects
Zhuxi Wonderland by Doarchi Architects reinterprets traditional Yangzhou gardens, integrating courtyards, pavilions, and tea houses in modern cultural design.
Doble Soga House: A Contemporary Brick Residence Rooted in Landscape in Quito, Ecuador
Brick house in Quito integrating nature, flexible living spaces, exposed materials, and rooftop terrace, creating warm contemporary architecture for modern family life.
Al Gharra Mosque in Medina Redefining Contemporary Islamic Architecture
Minimalist Medina mosque using concrete, light, and landscape to reinterpret Islamic worship spaces through symbolic spiritual transitions and contemporary architecture.
Viczonecode Villa by DDconcept – Tropical Family Living in Ho Chi Minh City
Tropical family villa in Ho Chi Minh City featuring courtyards, skylights, natural ventilation, elevated flooring, and seamless indoor–outdoor living surrounded by greenery.
Explore Architecture Competitions
Discover active competitions in this discipline
The International Standard for Design Portfolios
The Global Benchmark for Architecture Dissertation Awards
The Global Benchmark for Graduation Excellence
Challenge to reimagine the Iron Throne
Comments (0)
Please login or sign up to add comments
No comments yet. Be the first to comment!