Zero Carbon Library and Daycare Design: SQUARES in Tianshui by SAKO Architects
Exploring the SQUARES in Tianshui, a zero carbon library and daycare with innovative, sustainable design by SAKO Architects.
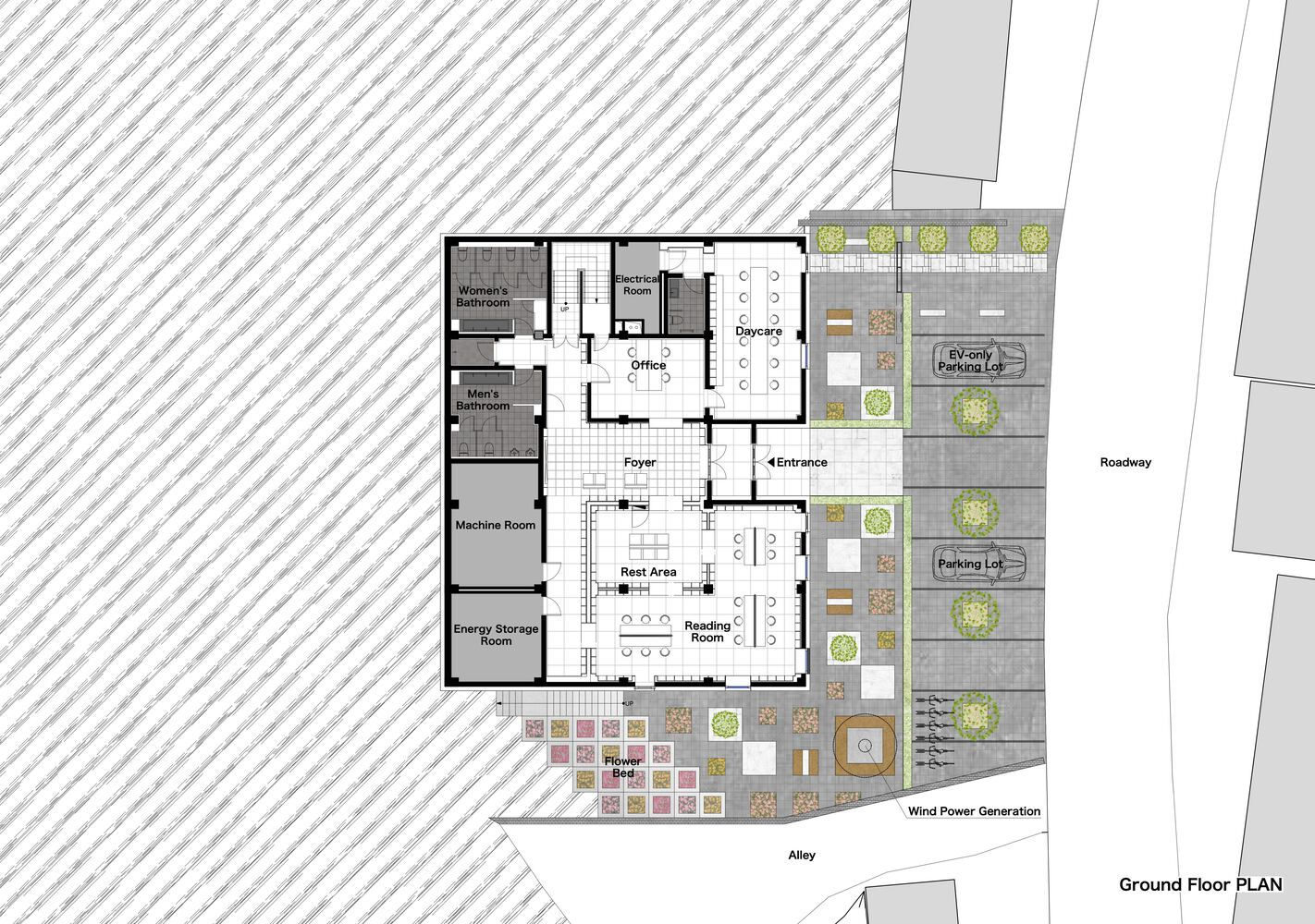
In the serene landscape of Tianshui, China, the SQUARES in Tianshui Library and Daycare stands as a beacon of sustainable architecture and innovative design. Created by SAKO Architects, this 772 square meter facility marries the functions of a library and a daycare with the ambitious goal of achieving "Zero Carbon" status.

A Design Rooted in Sustainability
Facing a residential street in a rural town, the building minimizes windows on the perimeter to enhance thermal insulation and maintain tranquility. However, the library on the second floor embraces openness with a courtyard-centered design, utilizing frameless vacuum triple glazing to invite the ever-changing sky into the serene reading spaces.







Capturing the Dance of Light
The design ingeniously captures the dynamic shifts of light, cloud movements, and weather changes through the square-shaped courtyard, enriching the reading experience with a natural time axis. Deep eaves and a black corridor space create a mirror effect, amplifying the beauty of the sky and integrating it into the architectural narrative.






Architectural Harmony
The SQUARES project is a testament to symmetrical beauty, with plan and elevation elements all based on square shapes. This mandala-like composition creates an orderly, nested arrangement, providing both a functional layout and a visual connection to traditional Chinese aesthetics. The square motif extends to the bookshelves, which align with the windows to offer both uniformity inside and a seemingly random façade arrangement from outside.






Zero Carbon Ambition
This project is not just an architectural feat; it's a pioneering step towards sustainable development. With high thermal insulation, solar and wind power generation, and geothermal heat utilization, SQUARES in Tianshui is the first library in China certified as "Zero Carbon at the design stage." The initiative extends to the reuse of roof tiles from demolished buildings, preserving the memory of the land while contributing to the environmental mission.
SQUARES in Tianshui Library and Daycare by SAKO Architects is a groundbreaking project that redefines the boundaries of sustainable and thoughtful design in public spaces. It stands as a model for future developments, showcasing how architecture can harmoniously blend functionality, aesthetic appeal, and environmental stewardship. This zero carbon library and daycare design not only serves its immediate community but also sets a precedent for global architectural practices.









All Photographs are the work of Yuming Song, Luo Juncai
Popular Articles
Popular articles from the community
20 Most Popular Commercial Architecture Projects of 2025
From sustainable market concepts to heritage factories, the commercial buildings and proposals that drew the most attention on uni.xyz this year.
Rede Arquitetos Builds an Open-Air School in Fortaleza That Doubles as a Neighborhood Living Room
Educar II SESC-CE folds sports, dance, and community gathering into a courtyard campus wrapped in mesh and tropical color.
Magic Box Office Barcelona Innovative Sustainable Workplace Design
Innovative sustainable office design featuring triangular form, ceramic façade, flexible interiors, natural light optimization, and creative workspace for modern work culture.
Similar Reads
You might also enjoy these articles
20 Most Popular Commercial Architecture Projects of 2025
From sustainable market concepts to heritage factories, the commercial buildings and proposals that drew the most attention on uni.xyz this year.
Free Architecture Competitions You Can Enter Right Now
No entry fees, real prizes. Here are the best free architecture competitions open for submissions in 2026.
Top 15 Architecture Competitions to Enter in 2026
From student-friendly idea competitions to prestigious international awards, here are the best architecture competitions open for entries in 2026. Updated regularly.
DIY & Engineering in Computational Design : Enter the BeeGraphy Design Awards
Showcase Your Creativity with Computational Design and Open Source Projects
Explore Architecture Competitions
Discover active competitions in this discipline
The International Standard for Design Portfolios
The Global Benchmark for Architecture Dissertation Awards
The Global Benchmark for Graduation Excellence
Challenge to reimagine the Iron Throne
Comments (0)
Please login or sign up to add comments
No comments yet. Be the first to comment!