Architectural Marvel: The Cañada Residence by Escobedo Soliz
What makes the Cañada Residence by Escobedo Soliz a standout in contemporary architecture?

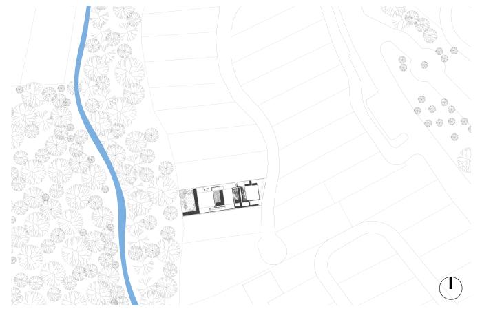
The Cañada Residence, designed by the Mexican architecture firm Escobedo Soliz, is a stunning example of how a house can seamlessly integrate with its surrounding landscape. Situated on a narrow plot with a significant slope, the construction of the house takes full advantage of the natural topography and vegetation of the nearby ravine and river.
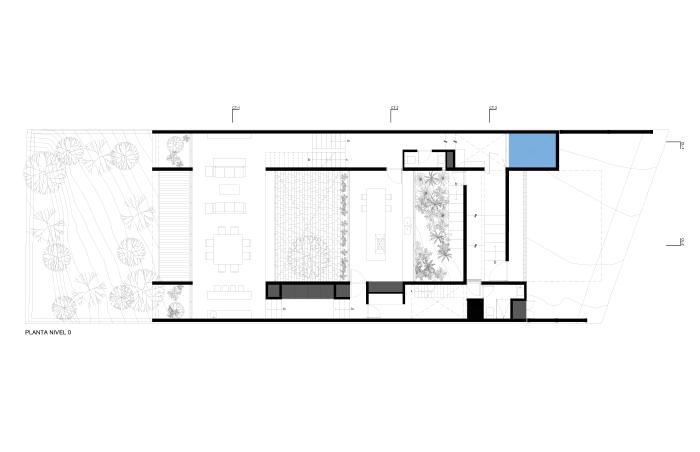
The architects developed the construction downwards, with only one level above the sidewalk and two levels below. The upper level features the private quarters of the house, including bedrooms, bathrooms, dressing rooms, and a t.v room. The ground floor, located below the sidewalk level, houses the public areas and kitchen. Finally, the lower level, situated on the natural terrain below the living room, is home to a central patio that houses an open-air kitchen and a semi-covered pool.
Despite the limited footprint of just 100 square meters, the house manages to feel spacious and open. This is due in part to the lateral volumes that run along the two long sides of the plot. These volumes house the blocks of services and circulations and protect the privacy of the house. The white transverse volumes suspended above the natural terrain contain the main living spaces of the house and open from side to side towards the ravine and interior patios.
The structural system of the house is based on rigid concrete frames with masonry enclosing walls and slabs made from joists and vaults. The foundation is based on continuous footings staggered with the slope of the land and connected with retaining walls. All of these elements work together to create a stunning, modernist house that seamlessly integrates with its surrounding landscape.
Overall, the Cañada Residence by Escobedo Soliz is a remarkable achievement in architecture and a testament to the power of good design to enhance our relationship with the natural world.




























Credits
Architects: Escobedo Soliz
Year: 2023
Photographs: Ariadna Polo
Construction: Taller 499
Landcape Design: PAAR Taller
Lighting Design Consultants: Sombra
Structure: Elizarrarás Ingeniería
Engineering Project: Ro Consultores
City: Naucalpan de Juárez
Country: Mexico