Architectural Serenity Unveiled: Aramé Studio and Leopoldo Milá Figueras' Tranquil Week-End House in Puigmoltó
Is Puigmoltó's Week-End House the Perfect Retreat for Escaping the Urban Bustle?

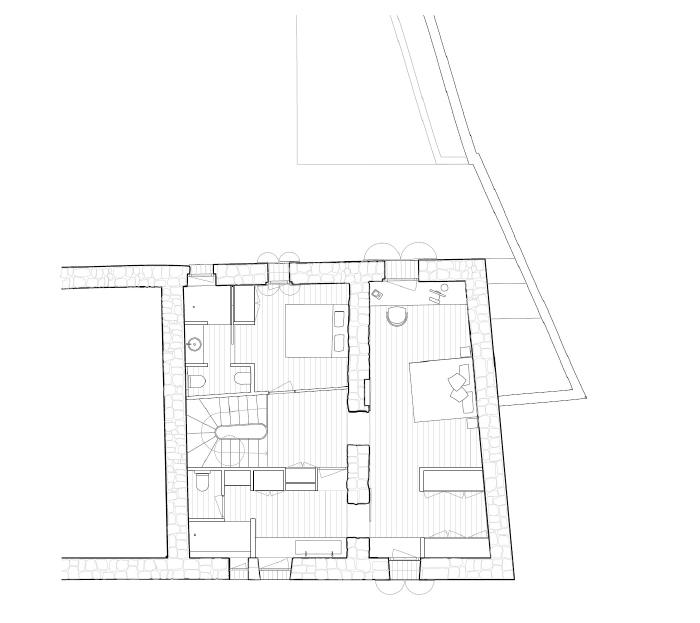
The project is located in Puigmoltó, a built-up area from the mediaeval near San Pere de Ribes.It is composed by several traditional weekend houses with white façades, thick walls and narrow windows with controlled views to the streets but opened to their backyard garden. The aim of the refurbishment at the Weekend House was to accommodate an old village house to the needs of the clients by reorganizing its spaces, allowing more flexibility in its inhabitation and providing more natural light and ventilation. The pre-existing house was based on closed spatiality with segregated and predetermined uses, based on traditional domestic privacy. The project aims to recognize and enhance the hidden spatial potentiality of the existing construction and volume, giving the interior of the house a completely different spatial perception. The space evolves around an existing stone wall that structures and hierarchies all the different uses of the house:
The ground floor is divided in 3 areas, the entrance hall, the kitchen and the living room, all interconnected by openings in the main wall, providing spatial continuity with large versatile rooms. The main stair and a skylight that baths the entrance hall with natural light, transform a daily act into a more poetic moment, connecting both floors.The floor plan is mainly composed by two rooms with their own bathroom, offering always a spatial continuity where the differentiation between rooms is marked by threshold with sliding doors that allow this continuity at the same time that they give privacy. The wet rooms are thought as a prolongation of the rooms, with generous space, natural light and comfort giving importance to those more intimate moments in the daily life.The materiality of the project tries to reinforce the main concepts, proposing a wood floor that changes direction in every different room separated by marble pieces remarking all the thresholds of the wall. The main stonewall is painted in white, leaving it with texture and differentiating it from the rest of the walls.
























Popular Articles
Popular articles from the community
An Miên Lumière Cafe by xưởng xép, Ho Chi Minh City, Vietnam
An industrial-inspired café where layered steel and warm light create a dynamic, immersive environment shaped by reflection, depth, and perception.
On the Brooks House by Monsoon Collective – A Contemporary Kerala Home Rooted in Tradition
Kerala home blending tradition and modernity with water-inspired design, brick architecture, courtyard planning, and sustainable rainwater harvesting strategies.
A Contemporary Take on Iranian Residential Architecture
A modern interior design in Mashhad that reinterprets brick, light, and spatial flow to create a warm, contemporary residential architecture.
Treehouse Apartment: A Warm Timber Interior Blending Craft, Play, and Contemporary Living
Warm timber apartment with integrated treehouse, combining natural materials, craftsmanship, and playful design to create a flexible, family-oriented living environment.
Similar Reads
You might also enjoy these articles
Zhuxi Wonderland: Reimagining Traditional Chinese Gardens by Doarchi Architects
Zhuxi Wonderland by Doarchi Architects reinterprets traditional Yangzhou gardens, integrating courtyards, pavilions, and tea houses in modern cultural design.
Doble Soga House: A Contemporary Brick Residence Rooted in Landscape in Quito, Ecuador
Brick house in Quito integrating nature, flexible living spaces, exposed materials, and rooftop terrace, creating warm contemporary architecture for modern family life.
Al Gharra Mosque in Medina Redefining Contemporary Islamic Architecture
Minimalist Medina mosque using concrete, light, and landscape to reinterpret Islamic worship spaces through symbolic spiritual transitions and contemporary architecture.
Viczonecode Villa by DDconcept – Tropical Family Living in Ho Chi Minh City
Tropical family villa in Ho Chi Minh City featuring courtyards, skylights, natural ventilation, elevated flooring, and seamless indoor–outdoor living surrounded by greenery.
Explore Architecture Competitions
Discover active competitions in this discipline
The International Standard for Design Portfolios
The Global Benchmark for Architecture Dissertation Awards
The Global Benchmark for Graduation Excellence
Challenge to reimagine the Iron Throne
Comments (0)
Please login or sign up to add comments
No comments yet. Be the first to comment!