Communal Dining Restaurant Design: Xokol by ODAmx + Rubén Valdez
Explore Xokol in Guadalajara, a communal dining haven blending Mexican culinary traditions with innovative restaurant architecture.
Explore the transformative design of Xokol restaurant in Guadalajara, Mexico, where dining becomes a collective ritual. ODAmx and Rubén Valdez collaborated to create a space that reinterprets Mexican culinary traditions, fostering a unique communal dining experience.


Culinary Ritual in Santa Tere
Nestled in the Santa Tere neighborhood, Xokol transcends the conventional restaurant concept. The architecture serves as a catalyst for communal engagement, blurring boundaries between diners, staff, and the captivating process of food preparation.







Evolution of Xokol
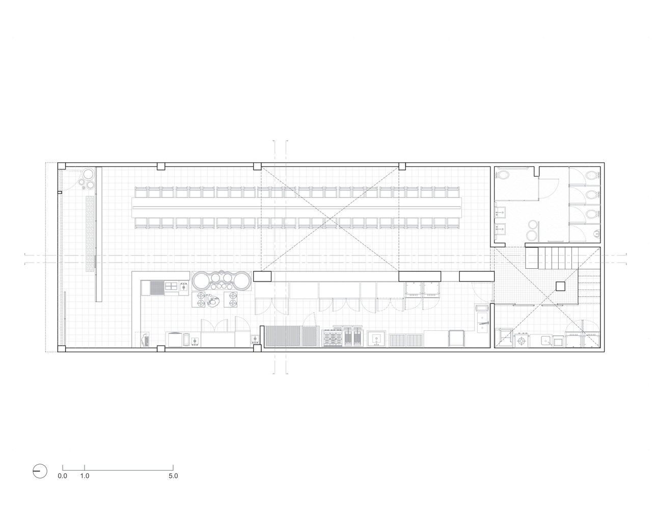
Founded in 2017, Xokol initially occupied a small space with four tables. In 2020, the restaurant moved to a former mechanic's workshop, maintaining intimacy while embracing a larger setting. The focal point is a 15-meter-long table where diners share not just meals but also the experience of witnessing the ritualistic preparation of their dishes.







Harmonizing Originality and Intimacy
The exterior of the building retains its original facade, with raw steel plates acting as a subtle filter between the interior and exterior worlds. Inside, ash-colored stucco on walls and ceilings complements the black clay lining of the kitchen's comal ovens. These muted tones enhance the vibrant colors of the dishes, creating a harmonious visual experience.











Locally Sourced and Handcrafted
All materials used, from locally sourced ash-colored stucco to metalwork for lamps and fermenting shelves, are carefully chosen to contribute to the authenticity of the space. The large oak dining table, a centerpiece of communal dining, and other fixtures are handcrafted by local artisans, emphasizing the importance of supporting local craftsmanship.

Embracing Authenticity
Xokol's design reflects a commitment to authenticity, both in culinary traditions and architectural choices. The restaurant provides a platform for a collective dining ritual, inviting patrons to engage in the vibrant atmosphere of Santa Tere.
Xokol, envisioned by ODAmx and Rubén Valdez, stands as a testament to the power of architecture in shaping communal experiences. Dive into the world of communal dining restaurant design, where Mexican culinary traditions and architectural innovation blend seamlessly to create a unique and inviting space for culinary exploration.




