Community Sports Architecture: Designing the Norrvikens Sports Center
This article examines the Norrvikens Sports Center, highlighting its role in community sports architecture and integration with the natural environment.
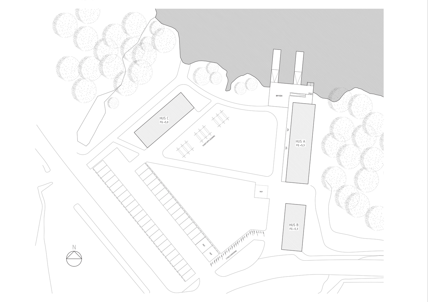
Community sports architecture focuses on creating spaces that serve both the athletic and social needs of local populations. Norrvikens Sports Center in Sollentuna, Sweden, exemplifies this approach, offering facilities for both elite athletes and community members.


Architectural Vision and Planning
Meeting the Needs of a Diverse Community
Designed by APPELL arkitektkontor, Norrvikens Sports Center features three lakeside buildings that cater to a variety of activities, from canoeing and tour skating to casual community gatherings. The design upholds Sweden’s tradition of public buildings that enhance access to nature.



Integrating with the Natural Environment
Positioned by the lake and adjacent to Södra Törnskogens Nature Reserve, the center emphasizes harmony with its surroundings. The facility includes terraces and jetties, making nature an integral part of its appeal and functionality.


Design Features and Functional Spaces
Building Layout and Usage
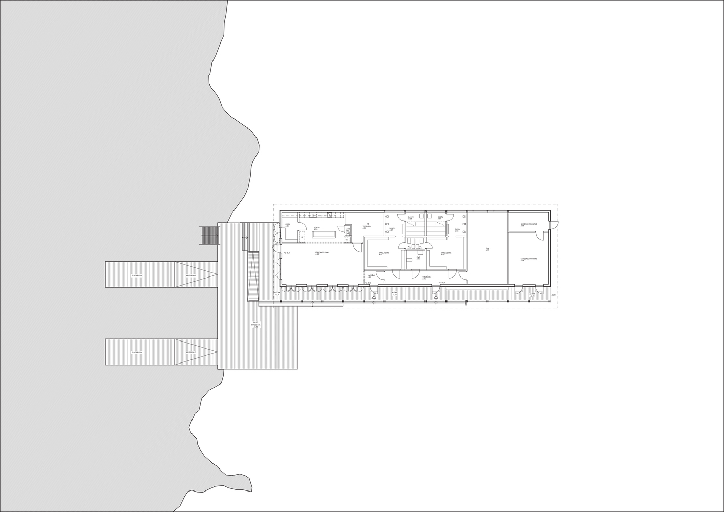
The main building houses a club room with a café and offers amenities like changing rooms, saunas, a skate rental, and a gym. The design ensures that all visitors, whether they are athletes or families on a Sunday walk, feel welcomed and accommodated.


Material Selection and Sustainability
The interior and exterior materials, including planed spruce boards and prefabricated CLT panels for the roof, were chosen for their environmental sustainability and aesthetic compatibility with the natural setting. The use of calm blue paint on the wooden facades reflects the colors of the surrounding lake, reinforcing the center’s integration with the landscape.



Challenges and Innovations in the Project
Structural and Aesthetic Considerations
The buildings are designed with simplicity and functionality in mind, featuring large doors for easy access and efficient storage of sports equipment. The cantilevering roof slabs and traditional wooden construction highlight the center’s blend of modern engineering with classic techniques.



Community and Accessibility
An arcade running along the western facade of the main building provides weather protection and enhances accessibility, ensuring that the sports center is welcoming to all, regardless of the weather or season.



The Impact of Community Sports Architecture
The Norrvikens Sports Center is a prime example of how architectural design can foster community spirit and encourage active lifestyles. By providing versatile, accessible, and aesthetically pleasing facilities, the center plays a crucial role in promoting health and well-being in the community.
This design not only supports physical activities but also serves as a social gathering place, proving that community sports architecture can have a profound impact on enhancing quality of life in urban areas.


All photographs are work of Åke E:son Lindman
Popular Articles
Popular articles from the community
Treehouse Apartment: A Warm Timber Interior Blending Craft, Play, and Contemporary Living
Warm timber apartment with integrated treehouse, combining natural materials, craftsmanship, and playful design to create a flexible, family-oriented living environment.
The Ken Roberts Memorial Delineation Competition (Krob)
As the most senior architectural drawing competition currently in operation anywhere in the world, it draws hundreds of entries each year, awarding the very best submissions in a series of medium-based categories.
An Miên Lumière Cafe by xưởng xép, Ho Chi Minh City, Vietnam
An industrial-inspired café where layered steel and warm light create a dynamic, immersive environment shaped by reflection, depth, and perception.
Solar Steam: A Climate-Responsive Architecture That Redefines the Monument
A climate-responsive memorial architecture that transforms heat, decay, and time into a living system reflecting humanity’s ecological impact.
Similar Reads
You might also enjoy these articles
The Ken Roberts Memorial Delineation Competition (Krob)
As the most senior architectural drawing competition currently in operation anywhere in the world, it draws hundreds of entries each year, awarding the very best submissions in a series of medium-based categories.
Waterfront Redevelopment and Urban Revitalization in Mumbai: Forging a New Dawn for Darukhana
A transformative waterfront redevelopment project reimagining Darukhana’s shipbreaking heritage into an inclusive urban future.
OUT-OF-MAP: A Call for Postcards on Feminist Narratives of Public Space
Rhizoma Design and Research Lab invites artists, designers, architects, researchers, and students to reflect on how feminist perspectives can reshape public space. Selected works will be exhibited in Barcelona, October 2026. Submissions open until 15 April 2026.
Documentation Work on Buddhist Wooden Temple
Architectural syncretism and cultural hybridity: A comparative study of the Buddhist temples in Chattogram Hill tracks
Explore Architecture Competitions
Discover active competitions in this discipline
The International Standard for Design Portfolios
The Global Benchmark for Architecture Dissertation Awards
The Global Benchmark for Graduation Excellence
Challenge to reimagine the Iron Throne
Comments (0)
Please login or sign up to add comments
No comments yet. Be the first to comment!