Creating Serenity Amidst the City: The Waterfall House by Greenbox Design
The Waterfall House by Greenbox Design offers a tranquil urban oasis, blending innovative architecture with natural elements in a bustling city setting.
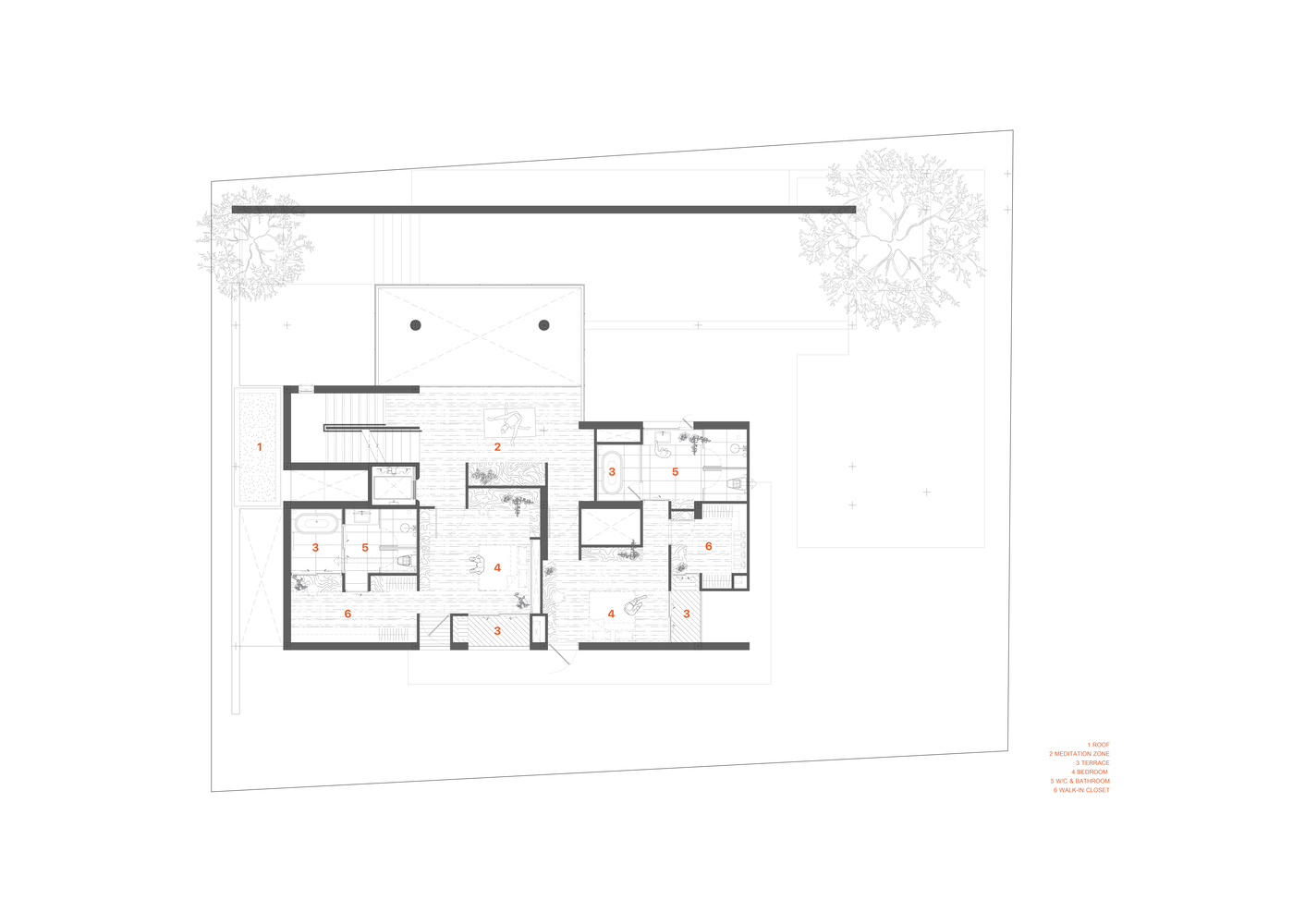
In the dense urban fabric of Khet Lat Phrao, Thailand, The Waterfall House emerges as a quintessential model of urban oasis home design. Crafted by the visionary team at Greenbox Design and spanning an impressive 950 m², this architectural masterpiece, completed in 2022, redefines living in close quarters with the bustling Ratchayothin intersection just a stone's throw away.





Design Philosophy: A Refuge in the Urban Jungle
Balancing Privacy with Urban Connectivity
The challenge was clear from the outset: how to craft a dwelling that offers sanctuary from the urban flurry while maintaining a connection to the city's vibrant life. Greenbox Design's solution was both innovative and intuitive, resulting in a vertical living space that cleverly navigates the constraints of a 560 square-meter plot.





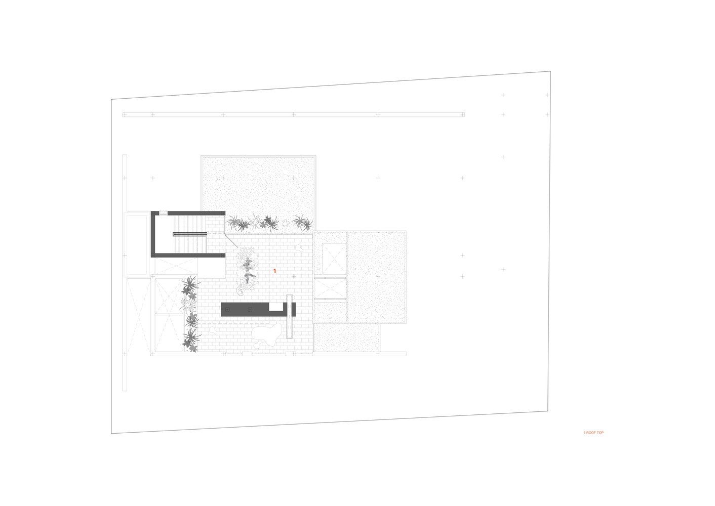
The Heart of the Home: A Second-Floor Waterfall
Central to the home's design is the swimming pool and waterfall feature, strategically placed on the second floor to serve as the main family area. This not only provides a unique aquatic element but also functions as a natural sound barrier, masking city noise with the soothing sounds of cascading water. The waterfall's slate rock construction further enhances this auditory experience, creating a harmonious background for both the communal and private spheres of the house.







Architectural Strategies for an Urban Oasis
Light, Privacy, and the Cityscape
In navigating the home's verticality and the tropical wet zone's climatic challenges, Greenbox Design employed several key strategies:
- Privacy and Light Management: A tall, opaque wall on the north side ensures privacy from neighboring apartments while reflecting and softening direct sunlight into the living spaces.
- Integration with the Urban Context: Openings on the non-adjoining sides and strategic viewpoints allow the residents to engage with the cityscape without compromising privacy or tranquility.
- Natural Ventilation: A series of vertical funnels integrated throughout the house facilitate the upward movement of warm air, drawing in cooler air from outside and promoting a comfortable indoor climate.








A Blueprint for Urban Living
The Waterfall House stands as a testament to the possibilities of urban oasis home design, skillfully blending the elements of water, light, and natural ventilation to create a serene living environment in the heart of the city. Through thoughtful design and a deep understanding of the site's constraints and potentials, Greenbox Design has not only crafted a home but has also set a new standard for urban living spaces. This project embodies the concept of an urban oasis, offering a blueprint for how architecture can provide refuge and rejuvenation amidst the bustling city life.








All photographs are work of Panoramic Studio
Popular Articles
Popular articles from the community
Solar Steam: A Climate-Responsive Architecture That Redefines the Monument
A climate-responsive memorial architecture that transforms heat, decay, and time into a living system reflecting humanity’s ecological impact.
Atelier Macri Concept Store Interior Design by CASE-REAL
Atelier Macri store features a "ko" counter, walnut wood details, cork displays, blending retail, gallery, and seamless customer experiences.
The Ken Roberts Memorial Delineation Competition (Krob)
As the most senior architectural drawing competition currently in operation anywhere in the world, it draws hundreds of entries each year, awarding the very best submissions in a series of medium-based categories.
Flamboyant House by Juliana Camargo + Prumo Projetos
Modern Brazilian house integrating existing tree, pool, and volumes with glass, wood, and transitional spaces blending interior, exterior, and landscape seamlessly.
Similar Reads
You might also enjoy these articles
Top 15 Architecture Competitions to Enter in 2026
From student-friendly idea competitions to prestigious international awards, here are the best architecture competitions open for entries in 2026. Updated regularly.
DIY & Engineering in Computational Design : Enter the BeeGraphy Design Awards
Showcase Your Creativity with Computational Design and Open Source Projects

Innovative Design Solutions: Award-Winning Projects from Recent Architecture Competitions
Exploring award-winning architectural projects shaping the future of design, sustainability, and community.
Explore Architecture Competitions
Discover active competitions in this discipline
The International Standard for Design Portfolios
The Global Benchmark for Architecture Dissertation Awards
The Global Benchmark for Graduation Excellence
Challenge to reimagine the Iron Throne
Comments (0)
Please login or sign up to add comments
No comments yet. Be the first to comment!