Discover the Essence of Innovative Apartment Design in Brazil: A Tour of Nube Apartment
Explore the Nube Apartment in Brazil, where innovative design blends natural elements with modern living, redefining urban apartment aesthetics.
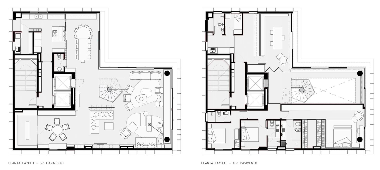
Nestled in the heart of Jardim Paulista, Brazil, the Nube Apartment stands as a testament to the innovative apartment design that harmoniously blends natural materials with modern living spaces. Designed by the talented teams of Nati Minas & Studio and Flipê Arquitetura, this 420 m² apartment offers a fresh perspective on urban living, beautifully captured through the lens of photographer Fran Parente.





Embracing Natural Elements
A Living Space Infused with Light and Nature
At the core of the Nube Apartment's design philosophy is the desire to integrate the lush, wooded views of Jardim Europa into the everyday lives of its inhabitants. The extensive use of windows not only invites natural light into the home but also establishes a seamless connection with the outdoors, enriching the living experience with the tranquility of nature.







Material Harmony: Wood, Granite, and Velvet
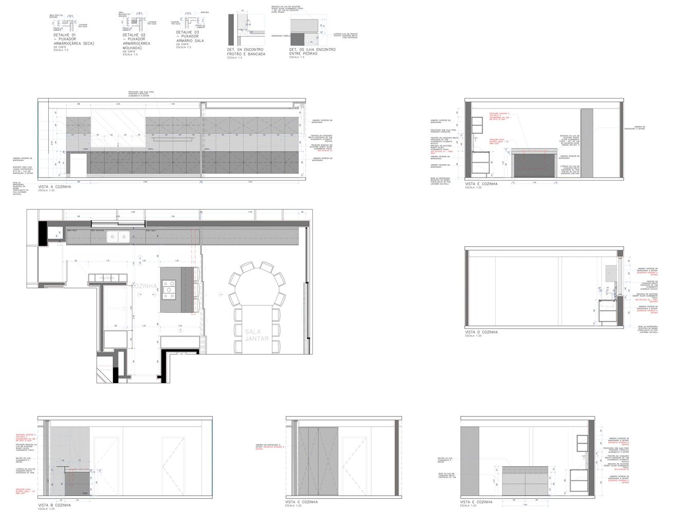
The choice of materials in the Nube Apartment is a deliberate nod to nature and comfort. Rustic granite, warm wood floors, and terracotta velvet touches come together to create a space that is tactile, visually appealing, and emotionally comforting. This material palette not only enhances the aesthetic appeal of the apartment but also underscores the innovative approach to apartment design in Brazil.






Design for Living
The Art of Functional Spaces
Understanding the dynamics of the residents' lifestyle was pivotal in shaping the apartment's layout. The result is a series of spaces designed for privacy, integration, and social gatherings, including a private kitchen, a spacious living room, a bar, a cellar, a home theater, and an office. Each room is crafted to serve its purpose beautifully, ensuring that no space becomes obsolete.









Custom Solutions for a Personal Touch
Custom walkways with CD shelves, quadrants in carpentry along the edges and ceiling, and self-supporting elements for decoration underscore the apartment's unique approach to personalizing living spaces. These design choices not only add character to the apartment but also demonstrate the innovative apartment design strategies employed by Brazilian architects.


















The Nube Apartment by Nati Minas & Studio + Flipê Arquitetura exemplifies the heights of innovative apartment design in Brazil. With its thoughtful integration of natural elements, bespoke material choices, and a layout that celebrates both privacy and social interaction, it stands as a beacon of modern urban living. Through the detailed craftsmanship and visionary design, the Nube Apartment invites us to reimagine what our living spaces can be, making it a quintessential example of contemporary Brazilian architecture.




All photographs are work of Fran Parente
Popular Articles
Popular articles from the community
Atelier Macri Concept Store Interior Design by CASE-REAL
Atelier Macri store features a "ko" counter, walnut wood details, cork displays, blending retail, gallery, and seamless customer experiences.
A Contemporary Take on Iranian Residential Architecture
A modern interior design in Mashhad that reinterprets brick, light, and spatial flow to create a warm, contemporary residential architecture.
On the Brooks House by Monsoon Collective – A Contemporary Kerala Home Rooted in Tradition
Kerala home blending tradition and modernity with water-inspired design, brick architecture, courtyard planning, and sustainable rainwater harvesting strategies.
Gads Hill Early Learning Center by JGMA: Adaptive Reuse Shaping Community-Focused Educational Architecture
Adaptive reuse transforms fragmented structure into vibrant early learning center with playful façade, natural light, and community-focused sustainable design.
Similar Reads
You might also enjoy these articles
Top 15 Architecture Competitions to Enter in 2026
From student-friendly idea competitions to prestigious international awards, here are the best architecture competitions open for entries in 2026. Updated regularly.
DIY & Engineering in Computational Design : Enter the BeeGraphy Design Awards
Showcase Your Creativity with Computational Design and Open Source Projects

Innovative Design Solutions: Award-Winning Projects from Recent Architecture Competitions
Exploring award-winning architectural projects shaping the future of design, sustainability, and community.
Explore Architecture Competitions
Discover active competitions in this discipline
The International Standard for Design Portfolios
The Global Benchmark for Architecture Dissertation Awards
The Global Benchmark for Graduation Excellence
Challenge to reimagine the Iron Throne
Comments (0)
Please login or sign up to add comments
No comments yet. Be the first to comment!