Elevate Your Wellbeing: Discover the Tranquil Oasis of Worrell Yeung's Spa Shed
Can Worrell Yeung's Spa Shed Provide the Ultimate Retreat for Relaxation and Rejuvenation?

Nestled within the serene landscapes of upstate New York's North Salem Farm, Worrell Yeung has unveiled their latest architectural marvel: a stunning sculptural spa shed. As part of the North Salem Farm project, which encompasses an array of new and existing structures, this spa shed exemplifies the studio's commitment to expressing architectural volume through simplified design elements. With seamless integration into the surrounding agrarian environment of Westchester County, this family home showcases thoughtful design at its finest.

Worrell Yeung's vision for the North Salem Farm project revolves around three distinct structures: the main home, a new photography studio/garage, and the awe-inspiring spa shed. Positioned at the narrow and gently sloping Northwest side of the 8.7-acre triangular lot, the structures were strategically placed to shield the main house from the adjacent street while maximizing the breathtaking views of the landscape. Collaborating closely with Raft Landscape, the team meticulously developed a site strategy that harmoniously connected each structure with the natural surroundings.

Upon arrival, visitors are greeted by a newly designed driveway and angular entry gravel court, artfully arranged around a magnificent Magnolia tree. This minimalistic and abstract aesthetic serves as a common thread throughout the project, introducing a textural element to the traditional gabled forms of the buildings.

The Worrell Yeung studio embarked on a comprehensive renovation and expansion of the main home, a former dairy barn, as well as the construction of a brand-new garage/studio and the striking spa shed. While all three structures pay homage to the archetypal gabled form of the American barn, they each exhibit distinct approaches to cladding and material details, lending them their individual character.

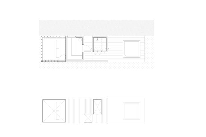
Completing the collection of structures is the enchanting spa shed, nestled to the East of the main home and studio/garage. A crushed gravel pathway, adorned with reclaimed granite pieces, connects the spa shed to the other buildings, offering a cohesive visual narrative. With its half-gable form, the spa shed builds upon the gabled typology established by the main house and garage/studio, yet sets itself apart with its unique palette. Crafted from a lighter, weathered gray cypress rainscreen, the spa shed presents a harmonious blend of solidity and porosity. The building's mass is artfully sculpted and punctuated with portals and thresholds, inviting captivating views of the surrounding tree canopies and the sky. Housing a hot tub sauna and an outdoor shower, the spa shed effortlessly combines aesthetic appeal with functional design, creating an oasis dedicated to domestic wellness.

Worrell Yeung's sculptural spa shed stands as a testament to their architectural prowess, seamlessly blending into the natural landscape while exuding a captivating allure of its own. With its combination of artistic ingenuity and dedication to harmonious integration, this spa shed epitomizes the epitome of modern architectural design.



