Elevating Urban Harmony: The Design Genius of SOSU ARCHITECTS' WAVE (dot wave) Mixed-Use BuildingElevating Urban Harmony: The Design Genius of SOSU ARCHITECTS' WAVE (dot wave) Mixed-Use Building

Elevating Urban Harmony: The Design Genius of SOSU ARCHITECTS' WAVE (dot wave) Mixed-Use Building

UNI EditorialUNI Editorial
UNI Editorial published Blog under Architecture on

SOSU ARCHITECTS' WAVE (dot wave) in Yangcheon-gu, South Korea, stands as a testament to innovative urban design, seamlessly integrating a mixed-use building into a densely populated residential area. This architectural masterpiece redefines the cityscape, creating a harmonious relationship between the existing urban fabric and the new construction.

Harmonizing Scale and Community Living

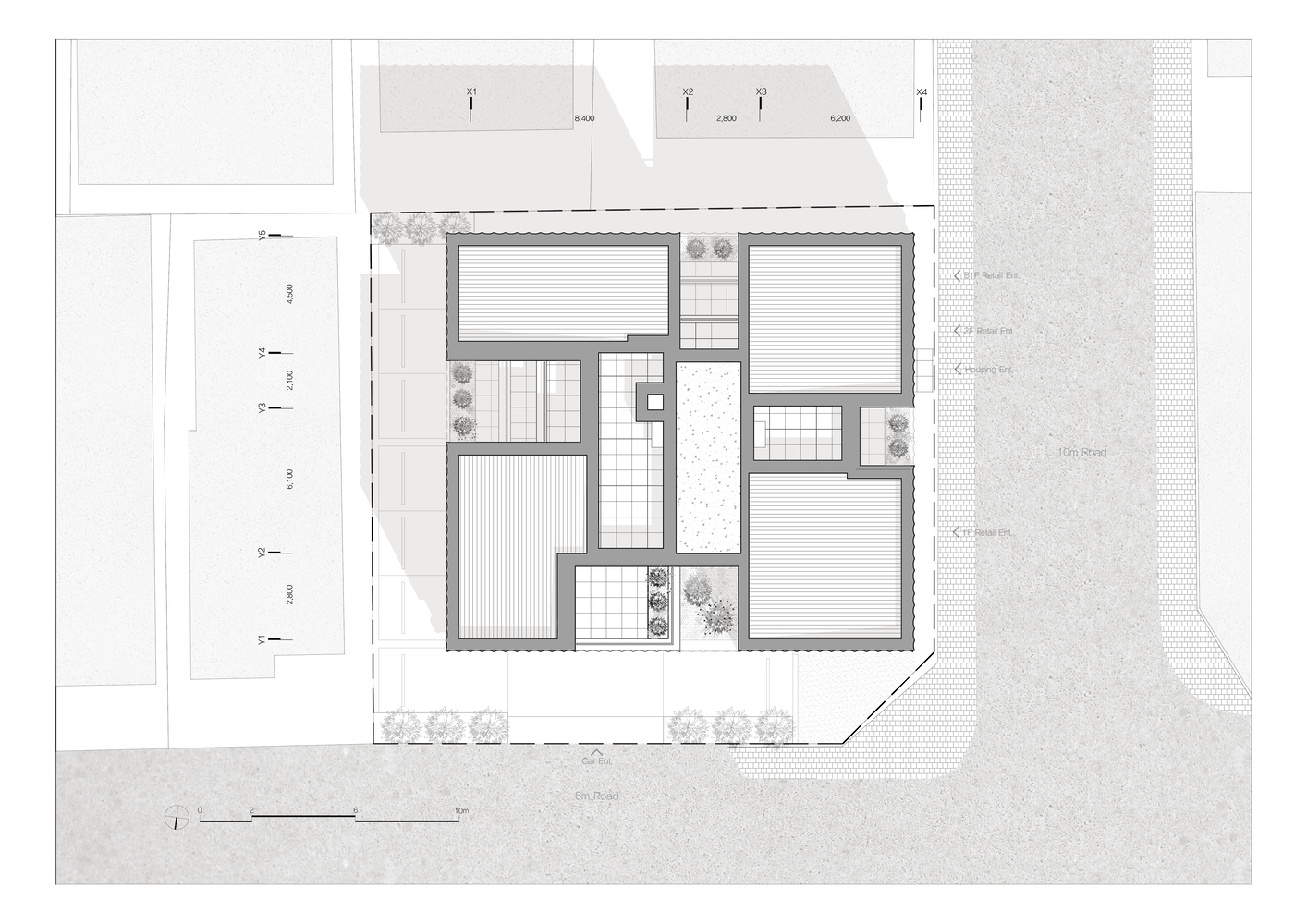
WAVE (dot wave) addresses the challenge of maximizing floor area ratio in a residential area, ensuring a delicate balance between neighborhood living and commercial spaces. With a 51:49% ratio and a commitment to a zero vacancy rate, the architects crafted a design that not only complements the surrounding scale but also establishes new connections with the community.

Article image
Article image
Article image
Article image
Article image
Article image

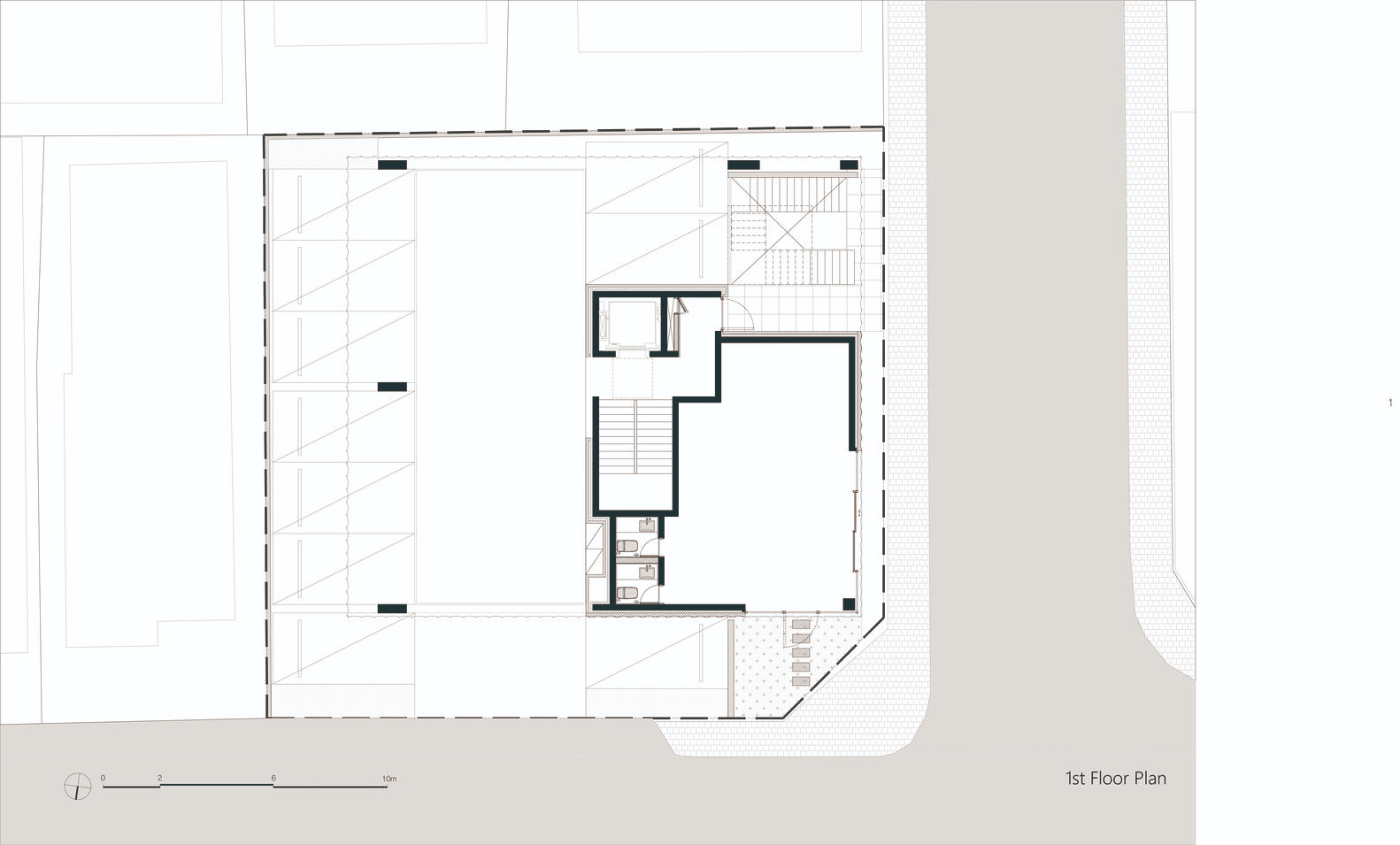
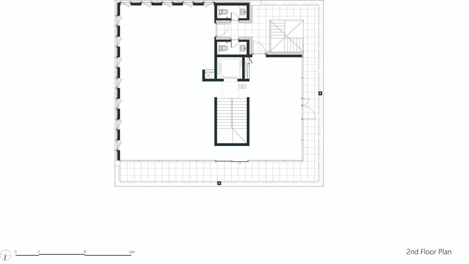
Bridging Gaps for Connectivity

Central to WAVE's design philosophy are the two types of gaps – horizontal and vertical. The horizontal gap employs external stairs and balconies, enhancing accessibility and connecting urban streets with neighborhood living facilities. Meanwhile, the vertical gap acts as an environmental conduit for upper-level residential spaces, offering small yards and unobstructed views.

Article image
Article image
Article image

Vertical and Horizontal Harmony

The vertical gap, strategically positioned to improve relations with adjacent lands, provides small yards for each household. Unaffected by visual interference, the windows act as conduits for natural light, fostering a seamless integration of interior and exterior spaces. This thoughtful design enhances residents' quality of life, offering a serene oasis in the heart of the city.

Article image
Article image
Article image
Article image
Article image

Simplicity in Complexity

Recognizing the disorderly nature of the surrounding residential area, SOSU ARCHITECTS opted for simplicity to create open spaces. The use of bricks, uniform in color, contrasts with the concrete mass and emphasizes the rhythmic curves that define the facade. The design choice not only simplifies the visual landscape but also contributes to the urban street experience.

Article image

Precision in Construction

WAVE showcases precision and homogeneity in construction through the use of Glass Fiber Reinforced Concrete (GFRC) panels. The undulating panels, coupled with strategically placed bricks, introduce variations in texture and shadow, offering a dynamic visual experience that evolves with time and perspective.

Article image

SOSU ARCHITECTS' WAVE (dot wave) stands as a beacon of innovative urban design, seamlessly merging architectural excellence with a commitment to community living. This mixed-use building not only elevates the cityscape but also fosters a sense of harmony between modern construction and existing neighborhoods. In its thoughtful integration of gaps, simplicity, and precision, WAVE sets a new standard for contemporary urban architecture.

Article image
Article image
Article image
Article image
Article image
Article image
Article image

All Photographs are the work of  Park Yeongchae

UNI EditorialUNI Editorial

UNI Editorial

Where architecture meets innovation, through curated news, insights, and reviews from around the globe.

UNI EditorialUNI Editorial
Search in