From Oats to Abodes: JSPA Design Gives New Life to an Old Oatmeal Factory!
Can an Abandoned Oatmeal Factory be Transformed into Stunning Living Spaces? JSPA Design Says Yes!

Ningwu, Shanxi province is home to a unique architectural project that embraces its surroundings, transforming an oatmeal factory into a stunning masterpiece that merges with the landscape and creates its own natural environment. The project was brought to life by a team of architects who wanted to create an introverted building that stimulates the human senses and offers a surprising experience to visitors.
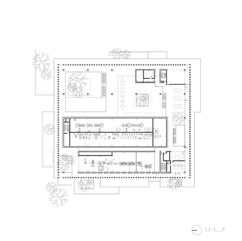
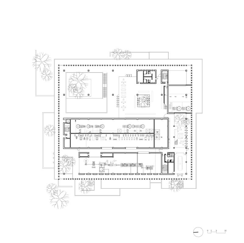
The factory consists of two production lines with high-volume machinery and spaces that are open to the public, including a shop, café, and office spaces. The production process is mostly automated, and the architects needed to find a way to hide the various technical spaces of the factory and set up a simple concrete volume on top of it to host all the public spaces.
The solution was to use a system of brick walls to enclose and hide the technical spaces of the factory into an opaque ground floor. The walls also form the property fence of the factory and later become the façade of the whole building. This system starts from the front of the factory, where a landscape area is voluntarily left open to the use of the local community with benches and water pools for kids to play.
The shape of the brick walls defines the different entrances of the factory, each with a specific function: the raw materials delivery, the products loading, the staff, and the visitor entry. Separated into distinct paths, staff and visitors never crossways inside the factory. While workers enjoy functional organization, visitors go through a planned spatial experience. For one moment only, the production line is showcased to the visitor in an elevated corridor overlooking the workshop.
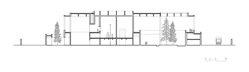
The architects also took into consideration the natural light, which plays a significant role in the design. Patios and large gardens pierce the whole building, providing natural light while creating impressive spatial dilatations within the factory. Central production spaces also get natural light from concrete sheds, opening the roof to the north light.
The dormitory for employees is set up in the back of the factory and conceived as an invisible architecture. The brick fence wall was thickened to host the building, and patios were created to bring light to the rooms while preserving their intimacy. The space between the factory and the dorm becomes a garden in which a concrete table and square seats were set up.
Overall, the project is a beautiful example of how architecture can merge with the surrounding landscape and create a natural environment. The architects managed to transform an industrial space into a stunning masterpiece that offers a unique experience to visitors while providing all the necessary functionalities for the oatmeal factory.
In today's world, sustainability is becoming an increasingly important aspect of architecture. And this project by JSPA Design, an old oatmeal factory converted into stunning living spaces, is a perfect example of how architecture and nature can coexist in harmony.
The choice of materials used in this project reflects the designer's intention to create a strong relationship with the site while emphasizing the building's modernity. The use of grey brick, a local construction material, creates a connection between the building and its surroundings. On the other hand, exposed concrete binds the structure and architecture together, adding a touch of modernity to the overall design.
One of the most impressive aspects of this project is how the landscape design is fully integrated into the design process. Rainwater collected on the roof is redirected to water pools on different levels, creating a natural circulation of rainwater that is part of the experience of the space. This feature is not only aesthetically pleasing but also environmentally sustainable, reducing the amount of water wasted and enhancing the natural environment.
The entrance of the factory features a stunning twelve-meter cantilever concrete logo wall combined with a waterfall, which invites visitors to enter the building. The overall effect is breathtaking and reinforces the project's commitment to integrating architecture with nature.
Throughout the design process, the JSPA Design team was careful to resolve regulatory issues creatively. For example, fire-fighting regulations required a water container on the roof. Rather than an eyesore, the team turned this into a cantilevered stainless-steel box, which looks like a sculpture on the roof.
Overall, JSPA Design's transformation of an old oatmeal factory into stunning living spaces is an impressive example of how architecture can coexist in harmony with nature. The project's attention to detail, from the choice of construction materials to the landscape design, reinforces the idea that architecture can be both beautiful and sustainable.


















Architects: JSPA Design
Area: 9400 m²
Year: 2021
Photographs: Schran Images
Structural Engineering: Jiangjie Design
MEP Engineering: Jiangjie Design
Popular Articles
Popular articles from the community
Atelier Macri Concept Store Interior Design by CASE-REAL
Atelier Macri store features a "ko" counter, walnut wood details, cork displays, blending retail, gallery, and seamless customer experiences.
Louis Malle Cinema: A Limestone Cultural Landmark Revitalizing Community Life in Prayssac
Limestone cinema extension with public forecourt, blending heritage and modern design to create flexible cultural spaces and strengthen community interaction.
A Contemporary Take on Iranian Residential Architecture
A modern interior design in Mashhad that reinterprets brick, light, and spatial flow to create a warm, contemporary residential architecture.
On the Brooks House by Monsoon Collective – A Contemporary Kerala Home Rooted in Tradition
Kerala home blending tradition and modernity with water-inspired design, brick architecture, courtyard planning, and sustainable rainwater harvesting strategies.
Similar Reads
You might also enjoy these articles
Zhuxi Wonderland: Reimagining Traditional Chinese Gardens by Doarchi Architects
Zhuxi Wonderland by Doarchi Architects reinterprets traditional Yangzhou gardens, integrating courtyards, pavilions, and tea houses in modern cultural design.
Doble Soga House: A Contemporary Brick Residence Rooted in Landscape in Quito, Ecuador
Brick house in Quito integrating nature, flexible living spaces, exposed materials, and rooftop terrace, creating warm contemporary architecture for modern family life.
Al Gharra Mosque in Medina Redefining Contemporary Islamic Architecture
Minimalist Medina mosque using concrete, light, and landscape to reinterpret Islamic worship spaces through symbolic spiritual transitions and contemporary architecture.
Viczonecode Villa by DDconcept – Tropical Family Living in Ho Chi Minh City
Tropical family villa in Ho Chi Minh City featuring courtyards, skylights, natural ventilation, elevated flooring, and seamless indoor–outdoor living surrounded by greenery.
Explore Architecture Competitions
Discover active competitions in this discipline
The International Standard for Design Portfolios
The Global Benchmark for Architecture Dissertation Awards
The Global Benchmark for Graduation Excellence
Challenge to reimagine the Iron Throne
Comments (0)
Please login or sign up to add comments
No comments yet. Be the first to comment!